Помещение на Вятской, 91 м², лот - 12540

Продажа | Лот 12540

Image 0
Image 1
Image 2
Image 3
Image 4
Image 5
Image 6
Image 7
Image 8
Image 9
10
Image 0 Image 1 Image 2 Image 3 Image 4 Image 5 Image 6 Image 7 Image 8 Image 9
650000 RUB

650 000 ₽ в месяц

86 000 ₽ за м² в год

Метро:
Савёловская :
pedestrian  7 минут пешком
Район/округ: Савёловский / САО
Адрес: Вятская, 27с3
Площадь: 91 м²
Назначение: магазин свободное банк салон красоты шоурум спортзал фотостудия бижутерия бизнес парикмахерская сувениры
Высота потолков: 3.5 метра
Отделка: С отделкой
Парковка: платная городская перед зданием, наземный и подземный паркинг на 537 машин
Электрическая мощность (кВт): 5
Линия: Первая
Тип входа: Общий со двора
Витрины есть

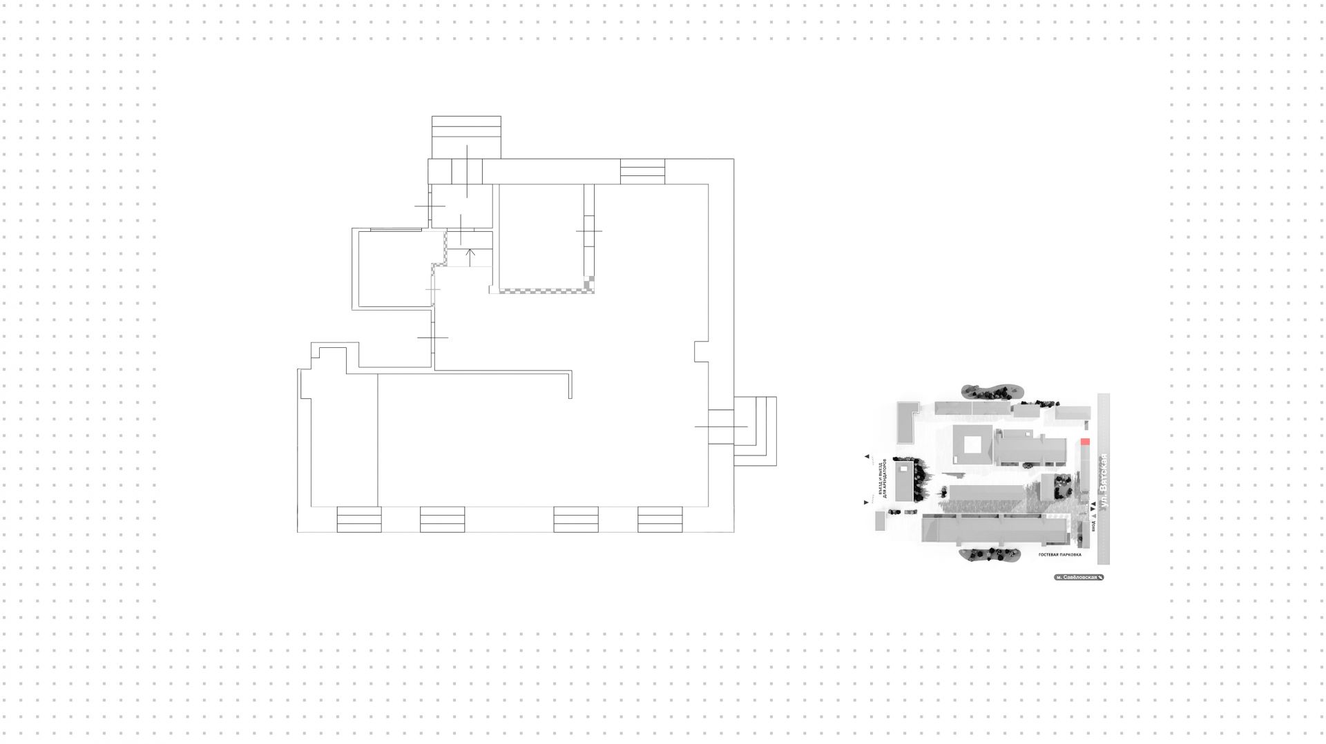
Коммерческое помещение на 1-й линии Вятской улицы в Савёловском районе. Оживлённый поток пешеходного и автомобильного трафика, рядом остановка общественного транспорта. Окружение — кафе Prime и «МА Ми», кофейня Bloom-n-Brew. За 7 минут пешком можно дойти до станции метро «Савёловская».

Объект с открытой планировкой площадью 91 м² расположен на 1-м этаже в бизнес-квартале «Фактория». Выполнена отделка за выездом арендатора — салона красоты Paul Mitchell. Предусмотрены отдельный вход с улицы и общий со двора, витринное остекление, место для рекламы на фасаде. Платная городская парковка находится перед зданием.

«Фактория» — проект из 17 строений с офисами класса B+, организованы 2 сквера, столовая, фитнес-клуб со скалодромом и коворкинг. На территории спланирован наземный и подземный паркинг на 537 машин.

650 000 ₽ в месяц

86 000 ₽ за м² в год

Метро:
Савёловская :
pedestrian  7 минут пешком
Район/округ: Савёловский / САО
Адрес: Вятская, 27с3
Площадь: 91 м²
Назначение: магазин свободное банк салон красоты шоурум спортзал фотостудия бижутерия бизнес парикмахерская сувениры
Высота потолков: 3.5 метра
Отделка: С отделкой
Парковка: платная городская перед зданием, наземный и подземный паркинг на 537 машин
Электрическая мощность (кВт): 5
Линия: Первая
Тип входа: Общий со двора
Витрины есть
expert

Павел

Эксперт

Для уточнения и фиксирования цены можно связаться напрямую с брокером

+7 (495) 106-19-99

Расположение на карте

Похожие лоты

Мы включили в наш каталог лучшие предложения по коммерческой недвижимости в Москве.

Новинка
lot-10397
lot-10397
2
Помещение под сувениры, 32 м²

Продажа | Лот 11970

Москва поселение Сосенское

Площадь: 32 м²

10 210 000 ₽

319 000 ₽ за м²

Новинка
lot-11498
lot-11498
2
Помещение под сувениры, 38 м²

Продажа | Лот 11161

Москва Скотопрогонная, 31А

Площадь: 38 м²

12 573 000 ₽

331 000 ₽ за м²

Новинка
lot-11502
lot-11502
2
Помещение под сувениры, 39 м²

Продажа | Лот 11198

Москва Скотопрогонная, 31А

Площадь: 39 м²

13 002 000 ₽

333 000 ₽ за м²

Новинка
lot-11326
lot-11326
lot-11326
lot-11326
4
Помещение под сувениры, 91 м²

Аренда | Лот 13640

Москва Волоколамское шоссе, 71/13с2

Коммерческое угловое помещение на 1-й линии Чкаловского бульвара в Покровском-Стрешнево. Жилой развивающийся район, строится комплекс...

375 000 ₽ / месяц

49 000 ₽ за м² / год

Новинка
lot-16681
lot-16681
2
Помещение под сувениры, 91 м²

Аренда | Лот 18196

Москва Барклая, 6Ас7

Коммерческое помещение на улице Барклая в районе Филёвский парк. Начальная школа с детским садом напротив объекта обеспечивают интенсивный...

525 000 ₽ / месяц

69 000 ₽ за м² / год

Новинка
lot-16487
lot-16487
2
Помещение под сувениры, 90 м²

Продажа | Лот 15562

Перово 2 мин

Москва Зелёный проспект, 19

Площадь: 90 м²

Назначение: Торговое помещение под  магазин банк бижутерия сувениры

Арендаторы: ⁠Совкомбанк. 90м2. ДА 11 месяцев (этот банк не заключает долгосрочные, политика банка). Арендная ставка 670 000 рублей, кп отдельно. Цена: 96 млн

Доходность: 8%, 723 000 ₽/мес

Окупаемость: 12 лет

Готовый арендный бизнес на 1-й линии Зелёного проспекта в Перово. Жилой район, большой поток пешеходного и автомобильного трафика,...

104 101 000 ₽

1 157 000 ₽ за м²

Позвонить эксперту max whatsapp telegram
Каширская
Академический
ЦАО
Академический