Арендный бизнес на Волгоградском проспекте, 510 м², лот - 49059

Продажа | Лот 49059

Image 0
Image 1
Image 2
Image 3
Image 4
5
Image 0 Image 1 Image 2 Image 3 Image 4
108000000 RUB

108 000 000 ₽

212 000 ₽ за м²

Арендаторы: магнолия
МАП: 1 000 000 ₽
ГАП: 12 000 000 ₽
Окупаемость:
9 лет
Доходность:
11%
Метро:
Кузьминки :
pedestrian  6 минут пешком
Адрес: Волгоградский проспект, 105
Площадь: 510 м²
Назначение: магазин супермаркет бижутерия сувениры
Высота потолков: 4.4 метра
Отделка: С отделкой
Парковка: городская платная перед фасадом
Электрическая мощность (кВт): 38
Зона разгрузки: Есть
Линия: Первая
Тип входа: Отдельный со двора
Витрины есть

Готовый арендный бизнес на первой линии Волгоградского проспекта в Кузьминках. Жилой район, близость остановки общественного транспорта обеспечивает большой пешеходный и автомобильный трафик. Окружение — ресторан «Плов центр», алкомаркет «Винлаб», супермаркет «Пятёрочка», магазин Fix Price, аптека «Здравсити». За 6 минут можно пешком дойти до станции метро «Кузьминки».

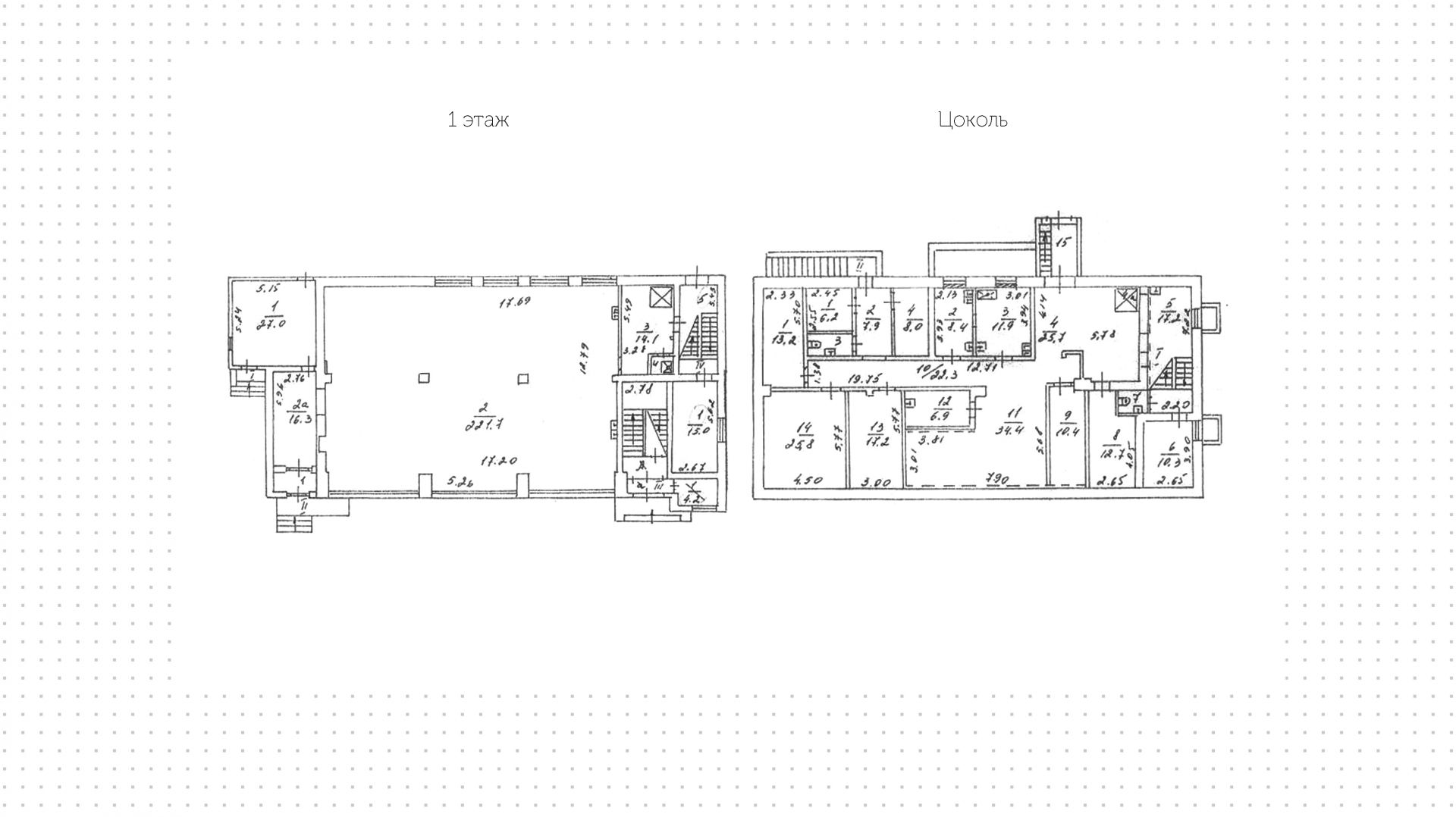
Помещение с комбинированной планировкой площадью 510 м² расположено на первом и цокольном этажах в нежилом здании. Первый этаж площадью 250 м² и цоколь 221 м² занимает супермаркет «Магнолия». Отдельные входы с улицы и со двора, витринное остекление. Спланированы зона разгрузки и место для рекламы на фасаде. У здания предусмотрена городская платная парковка.

108 000 000 ₽

212 000 ₽ за м²

Арендаторы: магнолия
МАП: 1 000 000 ₽
ГАП: 12 000 000 ₽
Окупаемость:
9 лет
Доходность:
11%
Метро:
Кузьминки :
pedestrian  6 минут пешком
Адрес: Волгоградский проспект, 105
Площадь: 510 м²
Назначение: магазин супермаркет бижутерия сувениры
Высота потолков: 4.4 метра
Отделка: С отделкой
Парковка: городская платная перед фасадом
Электрическая мощность (кВт): 38
Зона разгрузки: Есть
Линия: Первая
Тип входа: Отдельный со двора
Витрины есть
expert

Александр

Руководитель проекта

Для уточнения и фиксирования цены можно связаться напрямую с брокером

+7 (495) 106-19-99

Расположение на карте

Назначения
Похожие лоты

Мы включили в наш каталог лучшие предложения по коммерческой недвижимости в Москве.

Новинка
lot-14552
lot-14552
lot-14552
lot-14552
4
Помещение под сувениры, 159 м²

Продажа | Лот 29309

Зорге 2 мин

Москва Куусинена, 21

Коммерческое помещение на 1-й линии улицы Зорге в Хорошёвском районе. Развивающийся район, рядом строится жилой комплекс «Дом на Зорге»....

108 287 000 ₽

681 000 ₽ за м²

Новинка
lot-14285
lot-14285
lot-14285
3
Помещение под сувениры, 144 м²

Продажа | Лот 19158

Селигерская 2 мин

Москва Дмитровское шоссе, 89

Коммерческое помещение на 1-й линии Селигерской улицы в Бескудниковском районе. Объект находится возле парка имени Святослава Фёдорова...

108 300 000 ₽

752 000 ₽ за м²

Новинка
lot-13703
lot-13703
2
Помещение под сувениры, 113 м²

Продажа | Лот 17446

Воронцовская 2 мин Калужская 6 мин

Москва Старокалужское шоссе, 64/1

Ритейл в комплексе Stone Калужская. Ритейл площадью 113 м² расположен на 1 этаже из 20, без отделки. Окна: панорамные, возможность естественного...

107 880 000 ₽

955 000 ₽ за м²

Новинка
lot-12897
lot-12897
lot-12897
3
Помещение под сувениры, 510 м²

Аренда | Лот 15671

Тестовская 5 мин Шелепиха 5 мин

Москва Шмитовский проезд, 37с1

Коммерческое помещение в Шмитовском проезде в Пресненском районе. Интенсивный пешеходный и автомобильный трафик, рядом деловой центр...

2 760 000 ₽ / месяц

65 000 ₽ за м² / год

Новинка
lot-16410
lot-16410
2
Помещение под сувениры, 508 м²

Продажа | Лот 50319

Москва Пресненский Вал, 27

Площадь: 508 м²

318 336 000 ₽

627 000 ₽ за м²

Позвонить эксперту max whatsapp telegram
Каширская
Академический
ЦАО
Академический