Помещение на Сколковском шоссе, 144 м², лот - 19130

Продажа | Лот 19130

Image 0
Image 1
Image 2
3
Image 0 Image 1 Image 2
69120000 RUB

69 120 000 ₽

480 000 ₽ за м²

Район/округ: Можайский / ЗАО
Адрес: Сколковское шоссе, 40с4
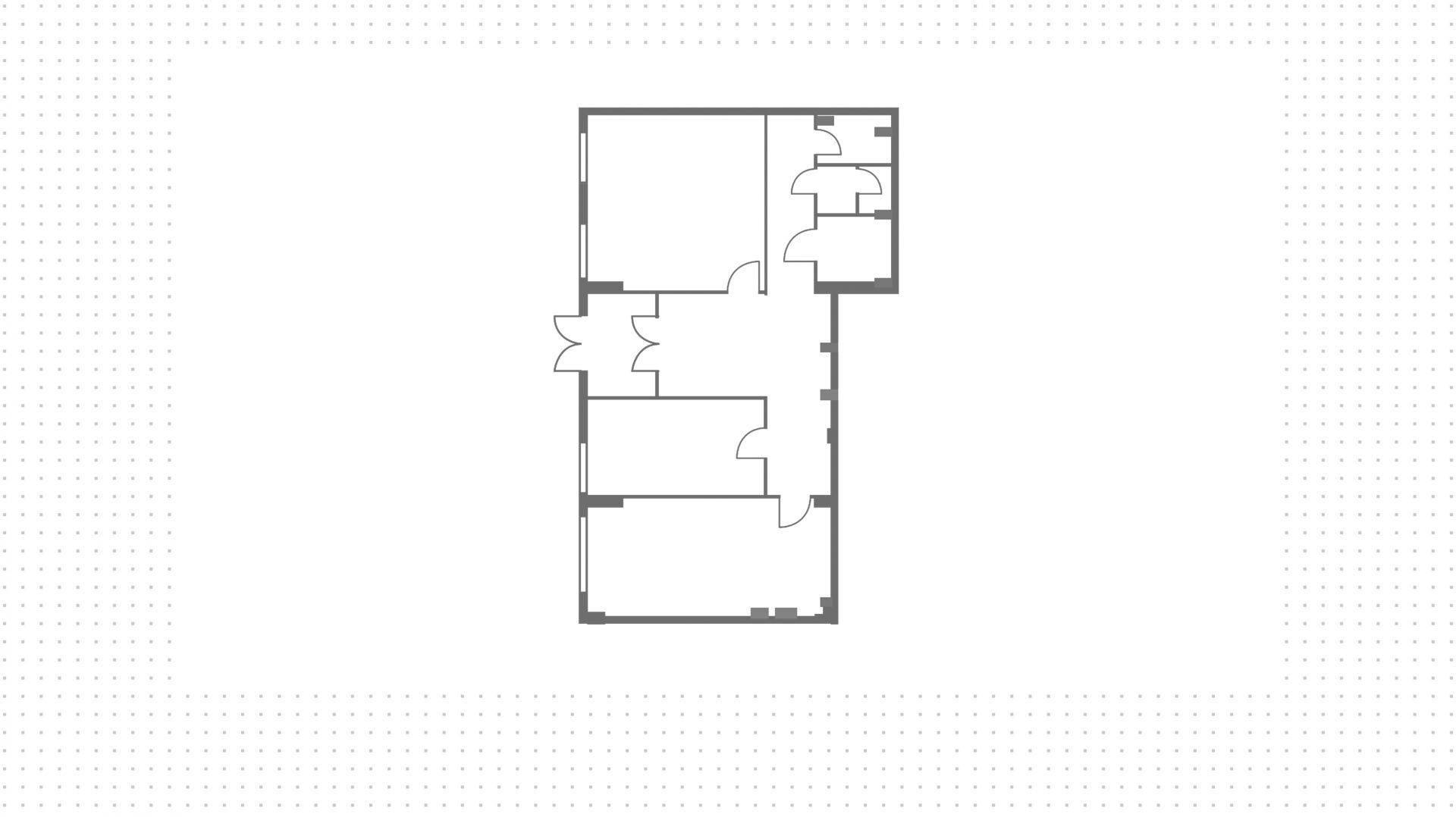
Площадь: 144 м²
Назначение: магазин свободное салон красоты спортзал кафе продуктовый магазин бижутерия бизнес парикмахерская продукты сувениры
Высота потолков: 4 метра
Отделка: Без отделки
Парковка: бесплатная парковка перед зданием, подземный паркинг на -1-м и -2-м этажах на 538 машин
Тип входа: Отдельный с улицы
Витрины есть

Коммерческое помещение в Можайском районе. Жилой развивающийся район, обеспечен интенсивный автомобильный и пешеходный трафик. Окружение — пункт выдачи «Яндекс Маркет», кафе For Post, супермаркеты «Пятёрочка» и «Магнит». Организован выезд на Сколковское шоссе и МКАД,

Объект с открытой планировкой площадью 144 м² расположен на 1-м этаже в жилом комплексе STELLAR CITY. Ритейл подойдет под размещение продуктового магазина, салона красоты или кафе. В помещении с витринным остеклением организован отдельный вход с улицы. Перед зданием находится бесплатная парковка, на -1-м и -2-м этажах предусмотрен подземный паркинг на 538 мест.

При необходимости мы поможем с поиском арендатора для вашего помещения.

69 120 000 ₽

480 000 ₽ за м²

Район/округ: Можайский / ЗАО
Адрес: Сколковское шоссе, 40с4
Площадь: 144 м²
Назначение: магазин свободное салон красоты спортзал кафе продуктовый магазин бижутерия бизнес парикмахерская продукты сувениры
Высота потолков: 4 метра
Отделка: Без отделки
Парковка: бесплатная парковка перед зданием, подземный паркинг на -1-м и -2-м этажах на 538 машин
Тип входа: Отдельный с улицы
Витрины есть
expert

Наталья

Эксперт проекта

Для уточнения и фиксирования цены можно связаться напрямую с брокером

+7 (495) 106-19-99

Расположение на карте

Похожие лоты

Мы включили в наш каталог лучшие предложения по коммерческой недвижимости в Москве.

Новинка
lot-13403
lot-13403
2
Помещение под сувениры, 140 м²

Продажа | Лот 13753

Площадь Ильича 9 мин Римская 9 мин

Москва Золоторожский Вал, 11/1

Площадь: 140 м²

Назначение: Торговое помещение под  офис рабочее место

Офис в комплексе Stone Римская. Офис площадью 143 м² расположен на 7 этаже из 18, без отделки. Окна: панорамные, возможность естественного...

69 259 000 ₽

495 000 ₽ за м²

Новинка
lot-13251
lot-13251
2
Помещение под сувениры, 119 м²

Продажа | Лот 15901

Бауманская 6 мин

Москва Бауманская, 11

Площадь: 119 м²

Назначение: Торговое помещение под  офис рабочее место

Офис в комплексе K-City. Офис площадью 119 м² расположен на 7 этаже из 18, без отделки. Окна: панорамные, наличие форточек для естественного...

69 352 000 ₽

583 000 ₽ за м²

Новинка
lot-13313
lot-13313
2
Помещение под сувениры, 135 м²

Продажа | Лот 15460

Площадь Ильича 9 мин Римская 9 мин

Москва Золоторожский Вал, 11/1

Площадь: 135 м²

Назначение: Торговое помещение под  офис рабочее место

Офис в комплексе Stone Римская. Офис площадью 135 м² расположен на 18 этаже из 18, без отделки. Окна: панорамные, возможность естественного...

69 054 000 ₽

512 000 ₽ за м²

Новинка
lot-14287
lot-14287
lot-14287
lot-14287
lot-14287
5
Помещение под сувениры, 144 м²

Аренда | Лот 19159

Москва Коровинское шоссе, 29

Коммерческое помещение в Западном Дегунино. Объект располагается на 1-й линии Коровинского шоссе, обеспечен интенсивный автомобильный...

700 000 ₽ / месяц

58 000 ₽ за м² / год

Новинка
lot-14679
lot-14679
lot-14679
lot-14679
lot-14679
lot-14679
6
Помещение под сувениры, 144 м²

Аренда | Лот 30650

Марьина Роща 3 мин

Москва Шереметьевская ул., 5к1

Коммерческое торцевое помещение на 1-й линии Шереметьевской улицы в Марьиной Роще. Выезд на ТТК и близость торгового центра «Райкин...

750 000 ₽ / месяц

62 000 ₽ за м² / год

Новинка
lot-15153
lot-15153
lot-15153
3
Помещение под сувениры, 144 м²

Аренда | Лот 7053

Павелецкая 1 мин

Москва Новокузнецкая, 39

Коммерческое помещение на первой линии Новокузнецкой улицы в Замоскворечье. Большой поток пешеходного и автомобильного трафика,...

1 950 000 ₽ / месяц

163 000 ₽ за м² / год

Позвонить эксперту whatsapp telegram
Каширская
Академический
ЦАО
Академический