Арендный бизнес в Посланниковом переулке, 101 м², лот - 7888

Продажа | Лот 7888

Image 0
Image 1
Image 2
Image 3
Image 4
5
Image 0 Image 1 Image 2 Image 3 Image 4
44000000 RUB

44 000 000 ₽

436 000 ₽ за м²

Арендаторы: пункт выдачи Wildberries
МАП: 270 000 ₽
ГАП: 3 240 000 ₽
Окупаемость:
14 лет
Доходность:
7%
Метро:
Бауманская :
pedestrian  5 минут пешком
Район/округ: Басманный / ЦАО
Адрес: Посланников переулок, 3с2
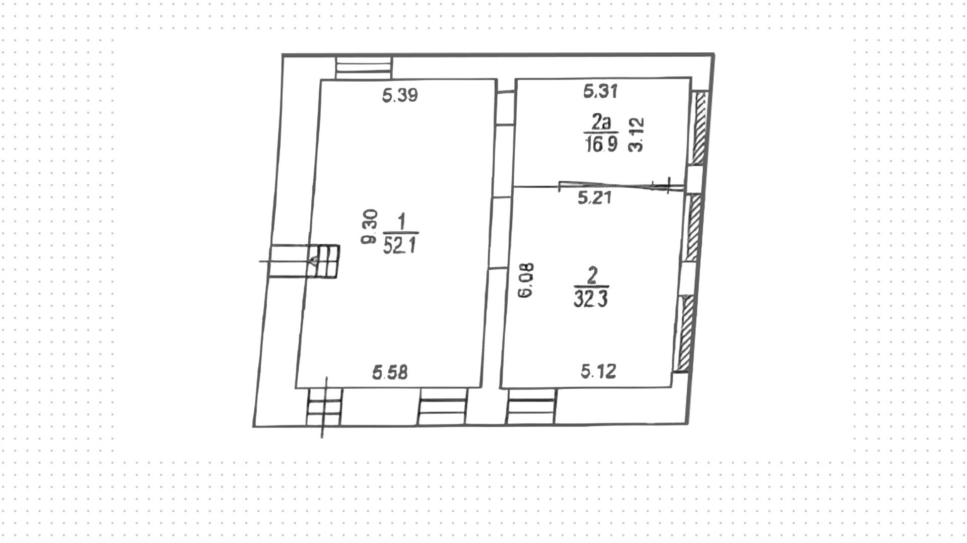
Площадь: 101 м²
Назначение: пункт выдачи
Высота потолков: 3.5 метра
Отделка: С отделкой
Парковка: перед фасадом
Зона разгрузки: Есть
Линия: Первая
Тип входа: Отдельный со двора
Витрины есть

Готовый арендный бизнес на 1-й линии Посланникова переулка в Басманном районе. Большой поток пешеходного и автомобильного трафика. Окружение — салон красоты Je Beauty, пункт выдачи «Ситилинк мини», фотостудия «ВауПаспорт», барбершоп Rats, ярмарка. За 5 минут можно пешком дойти до станции метро «Бауманская».

Помещение с открытой планировкой площадью 101 м² расположено на 1-м этаже в жилом трёхэтажном доме. Арендатор — пункт выдачи Wildberries. Отдельные входы с улицы и со двора с зоной разгрузки. Предусмотрены место для размещения рекламы на фасаде, свободная парковка перед домом.

44 000 000 ₽

436 000 ₽ за м²

Арендаторы: пункт выдачи Wildberries
МАП: 270 000 ₽
ГАП: 3 240 000 ₽
Окупаемость:
14 лет
Доходность:
7%
Метро:
Бауманская :
pedestrian  5 минут пешком
Район/округ: Басманный / ЦАО
Адрес: Посланников переулок, 3с2
Площадь: 101 м²
Назначение: пункт выдачи
Высота потолков: 3.5 метра
Отделка: С отделкой
Парковка: перед фасадом
Зона разгрузки: Есть
Линия: Первая
Тип входа: Отдельный со двора
Витрины есть
expert

Алина

Брокер лота

Для уточнения и фиксирования цены можно связаться напрямую с брокером

+7 (495) 106-19-99

Расположение на карте

Назначения
Пункт выдачи
Похожие лоты

Мы включили в наш каталог лучшие предложения по коммерческой недвижимости в Москве.

Новинка
lot-11990
lot-11990
lot-11990
lot-11990
lot-11990
lot-11990
lot-11990
7
Помещение под пункт выдачи, 116 м²

Продажа | Лот 15031

Москва Сходненская, 12с1

Площадь: 116 м²

Назначение: Торговое помещение под  магазин бижутерия сувениры

Арендаторы: строймаркет

Доходность: 8%, 282 000 ₽/мес

Окупаемость: 13 лет

Готовый арендный бизнес на Сходненской улице в районе Южное Тушино. Близость остановки общественного транспорта обеспечивает большой...

44 000 000 ₽

379 000 ₽ за м²

Новинка
lot-12962
lot-12962
lot-12962
lot-12962
4
Помещение под пункт выдачи, 30 м²

Продажа | Лот 9315

Орехово 1 мин

Москва Шипиловский проезд, 39с3

Площадь: 30 м²

Назначение: Торговое помещение под  банк

Доходность: 10%, 333 000 ₽/мес

Окупаемость: 11 лет

Готовый арендный бизнес в Шипиловском проезде в Северном Орехово-Борисово. Интенсивный поток пешеходного и автомобильного трафика,...

44 000 000 ₽

1 467 000 ₽ за м²

Новинка
lot-11619
lot-11619
lot-11619
lot-11619
lot-11619
lot-11619
lot-11619
lot-11619
8
Помещение под пункт выдачи, 134 м²

Продажа | Лот 14092

Москва Погонный проезд, 14

Площадь: 134 м²

Назначение: Торговое помещение под  магазин пункт выдачи алко-маркет бижутерия сувениры

Арендаторы: винлаб, маркетплейс

Доходность: 8%, 282 000 ₽/мес

Окупаемость: 13 лет

Готовый арендный бизнес в Погонном проезде в Богородском районе. Близость остановок общественного транспорта обеспечивает большой...

44 000 000 ₽

328 000 ₽ за м²

Новинка
lot-14104
lot-14104
lot-14104
lot-14104
lot-14104
lot-14104
lot-14104
lot-14104
lot-14104
9
Помещение под пункт выдачи, 101 м²

Аренда | Лот 18676

Алексеевская 9 мин

Москва Новоалексеевская, 16с5

Коммерческое помещение на Новоалексеевской улице в Алексеевском районе. Ритейл находится в центре жилого комплекса «Серебряный...

325 000 ₽ / месяц

39 000 ₽ за м² / год

Новинка
lot-14503
lot-14503
lot-14503
3
Помещение под пункт выдачи, 101 м²

Продажа | Лот 28807

Москва посёлок Развилка, 52с2

Коммерческое помещение в посёлке Развилка. Объект находится в жилом комплексе комфорт-класса «Миловидное» на 2 100 жителей, в проекте...

25 000 000 ₽

248 000 ₽ за м²

Позвонить эксперту whatsapp telegram
Каширская
Академический
ЦАО
Академический