Помещение на Петровке, 90 м², лот - 29384

Продажа | Лот 29384

Image 0
Image 1
Image 2
Image 3
Image 4
5
Image 0 Image 1 Image 2 Image 3 Image 4
490000 RUB

490 000 ₽ в месяц

65 000 ₽ за м² в год

Метро:
Кузнецкий Мост :
pedestrian  9 минут пешком
Пушкинская :
pedestrian  8 минут пешком
Тверская :
pedestrian  9 минут пешком
Трубная :
pedestrian  9 минут пешком
Чеховская :
pedestrian  8 минут пешком
Район/округ: Тверской / ЦАО
Адрес: Петровка, 17с5
Площадь: 90 м²
Назначение: ресторан магазин свободное пекарня бар кафе общепит бижутерия бизнес сувениры
Высота потолков: 3.5 метра
Отделка: С отделкой
Парковка: городская платная парковка на соседней улице
Электрическая мощность (кВт): 305
Тип входа: Отдельный с улицы
Витрины есть

Коммерческое помещение в Тверском районе. Обеспечен интенсивный пешеходный трафик. Окружение — товары для интерьера Kolosok Flowers, антикварный магазин «3 Сороки», барбершоп Démarche Studio, бар «Вода». За 8 минут пешком можно дойти до станций метро «Чеховская» и «Пушкинская», а за 9 минут — до станций «Тверская», «Трубная» и «Кузнецкий мост».

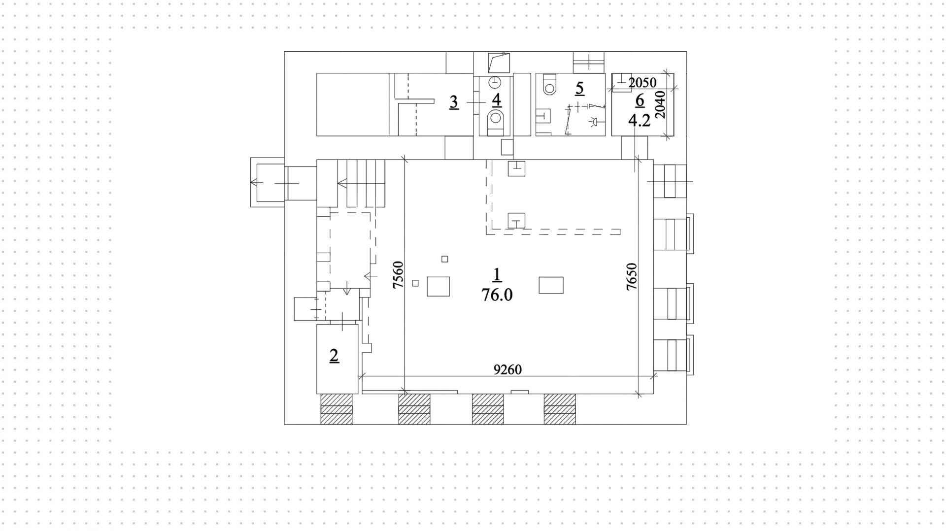
Объект с комбинированной планировкой площадью 90 м² расположен на цокольном этаже в жилом доме. Выполнена отделка за выездом ресторана «Валлетта», установлена вытяжка. В помещении с витринным остеклением организован отдельный входы с улицы. На соседней улице находится городская платная парковка.

490 000 ₽ в месяц

65 000 ₽ за м² в год

Метро:
Кузнецкий Мост :
pedestrian  9 минут пешком
Пушкинская :
pedestrian  8 минут пешком
Тверская :
pedestrian  9 минут пешком
Трубная :
pedestrian  9 минут пешком
Чеховская :
pedestrian  8 минут пешком
Район/округ: Тверской / ЦАО
Адрес: Петровка, 17с5
Площадь: 90 м²
Назначение: ресторан магазин свободное пекарня бар кафе общепит бижутерия бизнес сувениры
Высота потолков: 3.5 метра
Отделка: С отделкой
Парковка: городская платная парковка на соседней улице
Электрическая мощность (кВт): 305
Тип входа: Отдельный с улицы
Витрины есть
expert

Александр

Эксперт проекта

Для уточнения и фиксирования цены можно связаться напрямую с брокером

+7 (495) 106-19-99

Расположение на карте

Похожие лоты

Мы включили в наш каталог лучшие предложения по коммерческой недвижимости в Москве.

Новинка
lot-10397
lot-10397
2
Помещение под сувениры, 32 м²

Продажа | Лот 11970

Москва поселение Сосенское

Площадь: 32 м²

10 210 000 ₽

319 000 ₽ за м²

Новинка
lot-11498
lot-11498
2
Помещение под сувениры, 38 м²

Продажа | Лот 11161

Москва Скотопрогонная, 31А

Площадь: 38 м²

12 573 000 ₽

331 000 ₽ за м²

Новинка
lot-11502
lot-11502
2
Помещение под сувениры, 39 м²

Продажа | Лот 11198

Москва Скотопрогонная, 31А

Площадь: 39 м²

13 002 000 ₽

333 000 ₽ за м²

Новинка
lot-16260
lot-16260
lot-16260
lot-16260
lot-16260
5
Помещение под сувениры, 90 м²

Аренда | Лот 13471

Красные ворота 1 мин

Москва Хоромный тупик, 2/6

Коммерческое помещение на 1-й линии Хоромного тупика в Басманном районе. Близость Садового кольца и остановки общественного транспорта...

650 000 ₽ / месяц

87 000 ₽ за м² / год

Новинка
lot-16023
lot-16023
lot-16023
3
Помещение под сувениры, 90 м²

Аренда | Лот 46932

Китай-город 4 мин Кузнецкий Мост 7 мин Лубянка 2 мин Тургеневская 7 мин Чистые пруды 7 мин

Москва Мясницкая, 8/2

Коммерческое помещение на 1 линии Большого Златоустинского переулка в Басманном районе. Обеспечен интенсивный автомобильный и пешеходный...

1 500 000 ₽ / месяц

200 000 ₽ за м² / год

Новинка
lot-10608
lot-10608
lot-10608
3
Помещение под сувениры, 89 м²

Продажа | Лот 12682

Крылатское 1 мин

Москва Осенний бульвар, 5с1

Площадь: 89 м²

Назначение: Торговое помещение под  магазин продуктовый магазин бижутерия продукты сувениры

Доходность: 8%, 558 000 ₽/мес

Окупаемость: 13 лет

Готовый арендный бизнес на 1-й линии Осеннего бульвара в Крылатском. Жилой район, близость остановки общественного транспорта обеспечивает...

87 000 000 ₽

978 000 ₽ за м²

Позвонить эксперту max whatsapp telegram
Каширская
Академический
ЦАО
Академический