Помещение на Олеко Дундича, 136 м², лот - 31720

Продажа | Лот 31720

Image 0
Image 1
Image 2
Image 3
Image 4
Image 5
Image 6
Image 7
8
Image 0 Image 1 Image 2 Image 3 Image 4 Image 5 Image 6 Image 7
135700000 RUB

135 700 000 ₽

998 000 ₽ за м²

Метро:
Филевский парк :
pedestrian  4 минуты пешком
Район/округ: Фили-Давыдково / ЗАО
Адрес: Олеко Дундича, 29
Площадь: 136 м²
Назначение: магазин свободное салон красоты супермаркет шоурум спортзал бижутерия бизнес парикмахерская сувениры
Высота потолков: 4 метра
Отделка: Без отделки
Парковка: бесплатная парковка перед зданием, подходит для грузового транспорта
Электрическая мощность (кВт): 25
Зона разгрузки: Есть
Линия: Первая
Тип входа: Отдельный со двора
Витрины есть

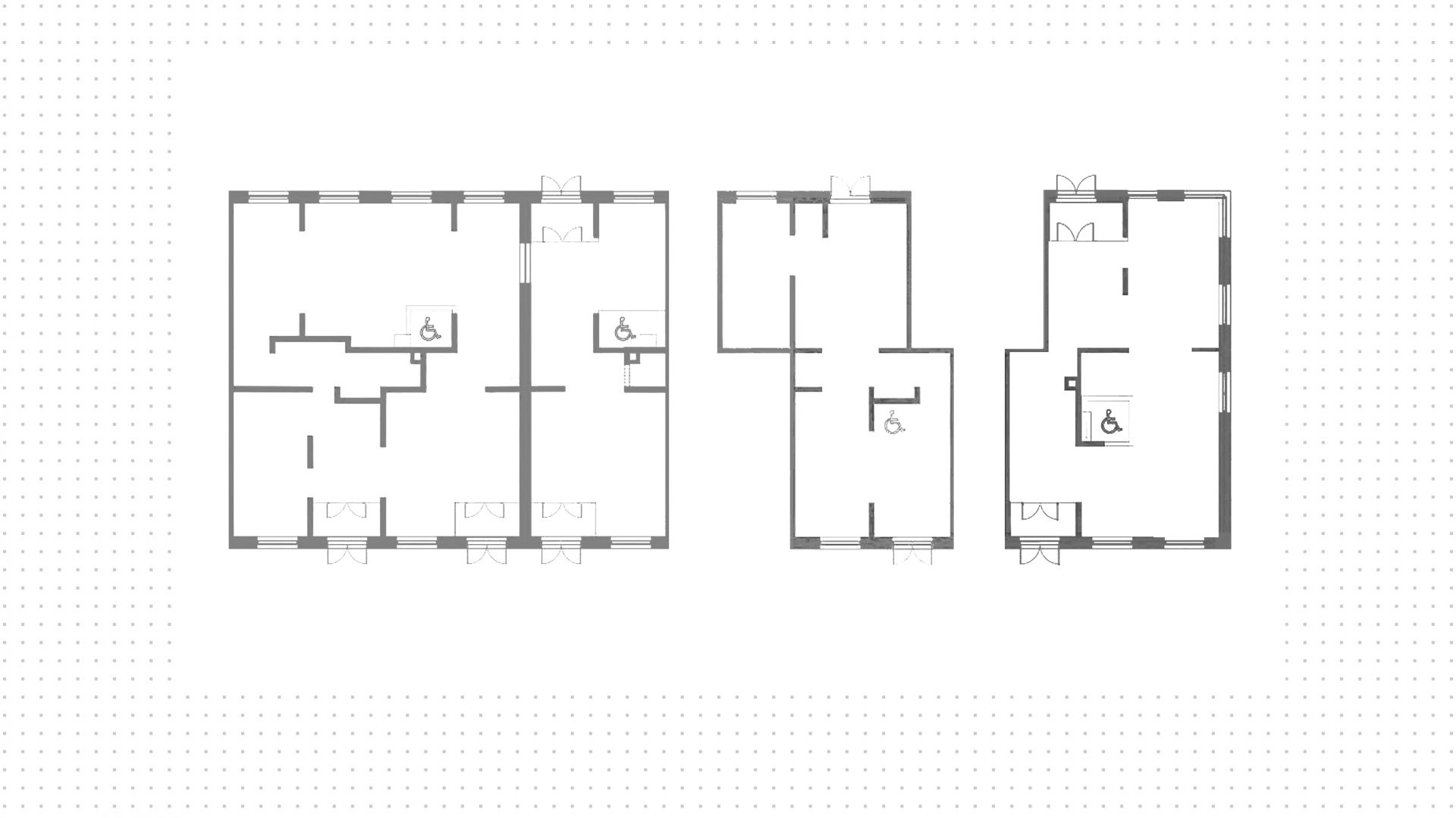
Коммерческое помещение на 1-й линии пересечения улиц Олеко Дундича и Минской в районе Фили-Давыдково. Благодаря близости к торговому центру «Мини Молл» вдоль ритейла обеспечен интенсивный автомобильный и пешеходный трафик. Окружение — пункт выдачи Wildberries, химчистка Qlean, аптека «Горфарма». За 4 минуты пешком можно дойти до станции метро «Филевский парк».

Угловой объект с открытой планировкой площадью 136 м² расположен на 1-м этаже в жилом доме. Помещение подойдёт под размещение супермаркета, салона красоты или фитнес-клуба. Предусмотрены отдельные входы с улицы и со двора, витринное остекление. Спланированы зона разгрузки и место для рекламы на фасаде. Бесплатная парковка находится перед зданием, подходит для грузового транспорта.

При необходимости мы поможем с поиском арендатора для вашего помещения.

135 700 000 ₽

998 000 ₽ за м²

Метро:
Филевский парк :
pedestrian  4 минуты пешком
Район/округ: Фили-Давыдково / ЗАО
Адрес: Олеко Дундича, 29
Площадь: 136 м²
Назначение: магазин свободное салон красоты супермаркет шоурум спортзал бижутерия бизнес парикмахерская сувениры
Высота потолков: 4 метра
Отделка: Без отделки
Парковка: бесплатная парковка перед зданием, подходит для грузового транспорта
Электрическая мощность (кВт): 25
Зона разгрузки: Есть
Линия: Первая
Тип входа: Отдельный со двора
Витрины есть
expert

Артём

Эксперт

Для уточнения и фиксирования цены можно связаться напрямую с брокером

+7 (495) 106-19-99

Расположение на карте

Похожие лоты

Мы включили в наш каталог лучшие предложения по коммерческой недвижимости в Москве.

Новинка
lot-13867
lot-13867
2
Помещение под сувениры, 324 м²

Продажа | Лот 12080

Воронцовская 2 мин Калужская 6 мин

Москва Старокалужское шоссе, 64/1

Площадь: 324 м²

Назначение: Торговое помещение под  офис рабочее место

Офис в комплексе Stone Калужская. Офис площадью 341 м² расположен на 14 этаже из 23, без отделки. Окна: панорамные, возможность естественного...

135 798 000 ₽

419 000 ₽ за м²

Новинка
lot-15748
lot-15748
2
Помещение под сувениры, 156 м²

Продажа | Лот 13570

Москва Дербеневская, 1

Площадь: 156 м²

135 951 000 ₽

871 000 ₽ за м²

Новинка
lot-12424
lot-12424
lot-12424
lot-12424
4
Помещение под сувениры, 1233 м²

Продажа | Лот 15734

Москва Вавилова, 69А

Коммерческое помещение на улице Вавилова в Ломоносовском районе. Объект находится на огороженной территории жилого комплекса бизнес-класса...

135 300 000 ₽

110 000 ₽ за м²

Новинка
lot-15922
lot-15922
lot-15922
lot-15922
lot-15922
5
Помещение под сувениры, 136 м²

Аренда | Лот 7051

Крестьянская застава 1 мин Пролетарская 1 мин

Москва Динамовская, 1А

Коммерческое помещение на первой линии домов, на пересечении улиц Динамовская и Воронцовская, в Таганском районе. Большой поток пешеходного...

600 000 ₽ / месяц

53 000 ₽ за м² / год

Новинка
lot-15183
lot-15183
lot-15183
lot-15183
lot-15183
lot-15183
6
Помещение под сувениры, 136 м²

Аренда | Лот 40787

Москва 1-й квартал, 15

Коммерческое помещение в 1-м квартале в Капотне. Жилой район, объект находится возле набережной реки-Москвы и Храма Рождества Богородицы....

612 000 ₽ / месяц

54 000 ₽ за м² / год

Новинка
lot-11808
lot-11808
lot-11808
lot-11808
lot-11808
lot-11808
lot-11808
lot-11808
lot-11808
lot-11808
lot-11808
lot-11808
lot-11808
lot-11808
lot-11808
lot-11808
lot-11808
lot-11808
lot-11808
lot-11808
lot-11808
lot-11808
lot-11808
lot-11808
lot-11808
lot-11808
26
Помещение под сувениры, 136 м²

Продажа | Лот 10200

Минская 7 мин

Москва Минская, 1А

Коммерческое помещение на Минской улице в Раменках. Жилой район, большой поток пешеходного и автомобильного трафика, рядом остановка...

45 000 000 ₽

331 000 ₽ за м²

Позвонить эксперту whatsapp telegram
Каширская
Академический
ЦАО
Академический