Арендный бизнес на нагатинской набережной, 399 м², лот - 14946

Продажа | Лот 14946

Image 0
Image 1
Image 2
Image 3
Image 4
5
Image 0 Image 1 Image 2 Image 3 Image 4
210000000 RUB

210 000 000 ₽

526 000 ₽ за м²

Арендаторы: Пятерочка
МАП: 1 500 000 ₽
ГАП: 18 000 000 ₽
Окупаемость:
12 лет
Доходность:
9%
Адрес: Нагатинская набережная, 10А
Площадь: 399 м²
Назначение: магазин супермаркет бижутерия сувениры
Высота потолков: 4.5 метра
Отделка: С отделкой
Парковка: наземная гостевая у дома, подземная парковка комплекса
Электрическая мощность (кВт): 80
Зона разгрузки: Есть
Линия: Первая
Тип входа: Общий со двора
Витрины есть

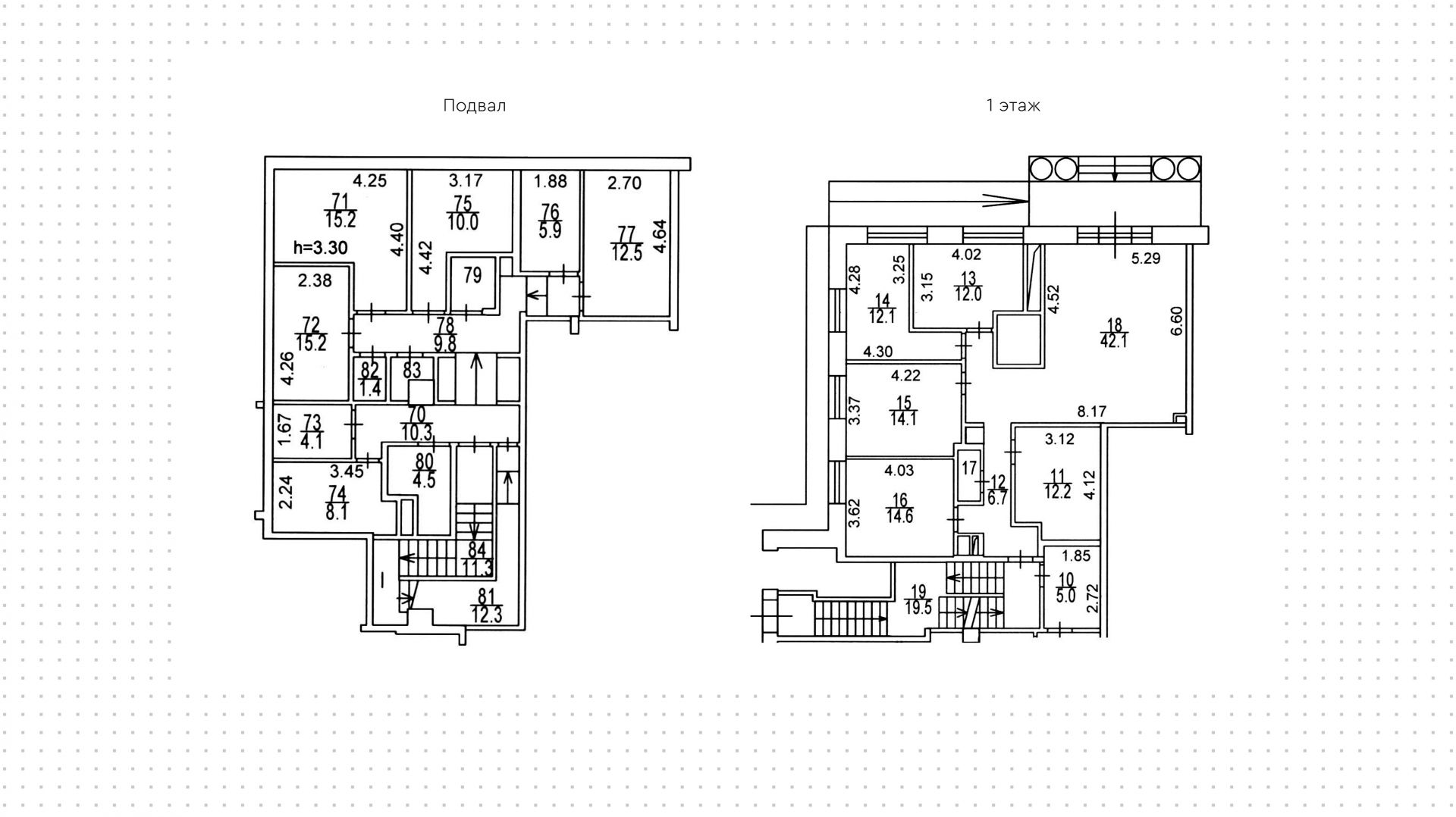
Готовый арендный бизнес на 1-й линии Нагатинской набережной в районе Нагатино-Садовники. Близость детских садов, школы и остановки общественного транспорта обеспечивает большой поток пешеходного и автомобильного трафика. Окружение — торговый центр «Конфетти», супермаркет «Пятёрочка», рестораны «Иверия», G. bakery8.

Помещение с открытой планировкой площадью 399 м² расположено на 1-м этаже в жилом комплексе «Level Нагатинская». Арендатор — супермаркет «Пятёрочка». Объект состоит из 2-х блоков, организованы 2 входа с улицы и 1 со двора, витринное остекление. Предусмотрены зона разгрузки, место для рекламы на фасаде. В комплексе спланированы подземная парковка для жителей и гостевая парковка у дома.

210 000 000 ₽

526 000 ₽ за м²

Арендаторы: Пятерочка
МАП: 1 500 000 ₽
ГАП: 18 000 000 ₽
Окупаемость:
12 лет
Доходность:
9%
Адрес: Нагатинская набережная, 10А
Площадь: 399 м²
Назначение: магазин супермаркет бижутерия сувениры
Высота потолков: 4.5 метра
Отделка: С отделкой
Парковка: наземная гостевая у дома, подземная парковка комплекса
Электрическая мощность (кВт): 80
Зона разгрузки: Есть
Линия: Первая
Тип входа: Общий со двора
Витрины есть
expert

Наталья

Эксперт проекта

Для уточнения и фиксирования цены можно связаться напрямую с брокером

+7 (495) 106-19-99

Расположение на карте

Назначения
Похожие лоты

Мы включили в наш каталог лучшие предложения по коммерческой недвижимости в Москве.

Новинка
lot-4999
lot-4999
lot-4999
lot-4999
4
Коммерческое помещение с сетевым арендатором «Магнолия»

Продажа | Лот 3921

Бауманская 3 мин

Москва Спартаковская, 18

Площадь: 372 м²

Назначение: Торговое помещение под  магазин супермаркет бижутерия сувениры

Арендаторы: супермаркет «Магнолия»

Доходность: 9%, 1 458 000 ₽/мес

Окупаемость: 12 лет

Готовый арендный бизнес в Басманном районе. Окружение — супермаркет «Дикси», магазин чая «ЧаоЧай», парикмахерская «ЦирюльникЪ», ювелирный...

210 000 000 ₽

565 000 ₽ за м²

Новинка
lot-5898
lot-5898
lot-5898
lot-5898
lot-5898
lot-5898
lot-5898
lot-5898
lot-5898
9
Помещение в жилом комплексе с арендатором «Пятёрочка»

Продажа | Лот 8082

Хорошево 10 мин

Москва Мнёвники, 5

Площадь: 478 м²

Назначение: Торговое помещение под  магазин супермаркет бижутерия сувениры

Арендаторы: супермаркет «Пятёрочка»

Доходность: 5%, 833 000 ₽/мес

Окупаемость: 21 год

Готовый арендный бизнес на 1-й линии 2-го Силикатного проезда в Хорошёво-Мнёвники. Большой поток пешеходного и автомобильного трафика,...

210 000 000 ₽

439 000 ₽ за м²

Новинка
lot-12969
lot-12969
lot-12969
lot-12969
lot-12969
5
Помещение под сувениры, 1024 м²

Продажа | Лот 17110

Красногвардейская 10 мин Шипиловская 6 мин

Москва Кустанайская, 8с3

Площадь: 1 024 м²

Назначение: Торговое помещение под  магазин супермаркет бижутерия сувениры

Арендаторы: Пятерочка Яндекс Лавка ОАО Вымпел-Коммуникации

Доходность: 12%, 1 930 000 ₽/мес

Окупаемость: 9 лет

Готовый арендный бизнес в Зябликово. Объект располагается в центре жилого массива рядом со школой и торговым центром «Столица», обеспечен...

208 437 000 ₽

204 000 ₽ за м²

Новинка
lot-11388
lot-11388
2
Помещение под сувениры, 399 м²

Продажа | Лот 1889

Москва Ефремова, 19к1

Площадь: 399 м²

Ритейл в клубном доме Knightsbridge Private Park. Ритейл площадью 399 м² расположен на 1 этаже из 7, без отделки. Окна: панорамные, панорамные окна,...

600 000 000 ₽

1 504 000 ₽ за м²

Новинка
lot-11868
lot-11868
lot-11868
3
Помещение под сувениры, 400 м²

Аренда | Лот 14615

Ломоносовский проспект 6 мин

Москва Мичуринский проспект, 7

Коммерческое помещение в Раменках. Жилой район, большой пешеходный трафик, рядом школа с детским садом. Окружение — кофейня «Даблби»,...

1 600 000 ₽ / месяц

48 000 ₽ за м² / год

Новинка
lot-6542
1
Офис на 20-м этаже современного бизнес-центра Stone Дмитровская

Продажа | Лот 8159

Дмитровская 5 мин

Москва Дмитровский проезд, 1Г

Площадь: 398 м²

Назначение: Торговое помещение под  офис рабочее место

174 455 000 ₽

438 000 ₽ за м²

Позвонить эксперту whatsapp telegram
Каширская
Академический
ЦАО
Академический