Арендный бизнес на Мантулинской, 219 м², лот - 15932

Продажа | Лот 15932

Image 0
Image 1
Image 2
Image 3
4
Image 0 Image 1 Image 2 Image 3
59850000 RUB

59 850 000 ₽

273 000 ₽ за м²

Арендаторы: самокат
МАП: 650 000 ₽
ГАП: 7 800 000 ₽
Окупаемость:
8 лет
Доходность:
13%
Район/округ: Пресненский / ЦАО
Адрес: Мантулинская, 12
Площадь: 219 м²
Назначение: магазин бижутерия сувениры
Высота потолков: 2.7 метра
Отделка: С отделкой
Парковка: бесплатная парковка перед зданием
Электрическая мощность (кВт): 52
Зона разгрузки: Есть
Линия: Первая
Тип входа: Отдельный со двора
Витрины есть

Готовый арендный бизнес в Пресненском районе. Объект располагается на 1-й линии домов через дорогу от парка «Красная Пресня», что обеспечивает интенсивный пешеходный трафик. Окружение — кафе «Хинкалька_ру», товары для творчества Yarn_terra, гостиница «Бизнес Лаунж Отель», конгресс-центр «ЦМТ Москва».

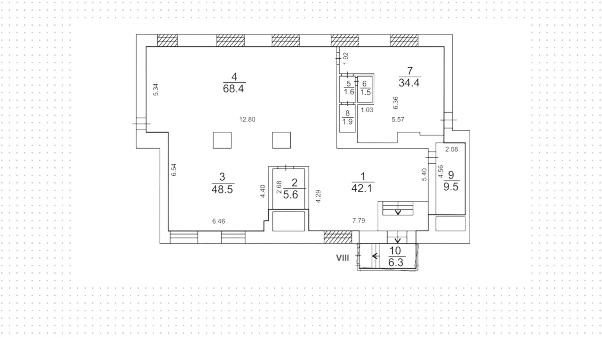
Помещение с комбинированной планировкой площадью 219 м² расположено в цоколе жилого дома. Арендатор — даркстор «Самокат». Организованы отдельный вход с улицы и со двора, витринное остекление, предусмотрена зона разгрузки. Машину можно оставить на бесплатной парковке перед зданием.

59 850 000 ₽

273 000 ₽ за м²

Арендаторы: самокат
МАП: 650 000 ₽
ГАП: 7 800 000 ₽
Окупаемость:
8 лет
Доходность:
13%
Район/округ: Пресненский / ЦАО
Адрес: Мантулинская, 12
Площадь: 219 м²
Назначение: магазин бижутерия сувениры
Высота потолков: 2.7 метра
Отделка: С отделкой
Парковка: бесплатная парковка перед зданием
Электрическая мощность (кВт): 52
Зона разгрузки: Есть
Линия: Первая
Тип входа: Отдельный со двора
Витрины есть
expert

Руслан

Эксперт проекта

Для уточнения и фиксирования цены можно связаться напрямую с брокером

+7 (495) 106-19-99

Расположение на карте

Назначения
Похожие лоты

Мы включили в наш каталог лучшие предложения по коммерческой недвижимости в Москве.

Новинка
lot-14479
lot-14479
lot-14479
lot-14479
lot-14479
lot-14479
lot-14479
7
Помещение под сувениры, 162 м²

Продажа | Лот 28643

Москва посёлок Мебельной Фабрики, Заречная, 5

Площадь: 162 м²

Назначение: Торговое помещение под  магазин салон красоты аптека пункт выдачи бижутерия парикмахерская сувениры

Арендаторы: аптека апрель, вайлдберрис, парикмахерская, водомат Продаю ГAБ с aрендаторами, тoргoвоe помeщeниe cвободнoгo нaзнaчeния общая площадь 162,3 кв.м., на фaсаде 1-го этaжa, 17-ти этaжнoго жилого дoма в ЖК Афpoдита, Мытищи, Зaрeчнaя, д. 5, пом. 1.Apeндaтоpы:

Доходность: 11%, 499 000 ₽/мес

Окупаемость: 10 лет

Готовый арендный бизнес на 1-й линии Заречной улицы в посёлке Мебельной Фабрики. Жилой район, близость остановки общественного транспорта...

59 850 000 ₽

369 000 ₽ за м²

Новинка
lot-13291
lot-13291
2
Помещение под сувениры, 118 м²

Продажа | Лот 15437

Площадь Ильича 9 мин Римская 9 мин

Москва Золоторожский Вал, 11/1

Площадь: 118 м²

Назначение: Торговое помещение под  офис рабочее место

Офис в комплексе Stone Римская. Офис площадью 118 м² расположен на 16 этаже из 18, без отделки. Окна: панорамные, возможность естественного...

59 858 000 ₽

507 000 ₽ за м²

Новинка
lot-15709
lot-15709
2
Помещение под сувениры, 110 м²

Продажа | Лот 44782

Москва Нижние Мнёвники, 39/41

Площадь: 110 м²

59 840 000 ₽

544 000 ₽ за м²

Новинка
lot-14941
lot-14941
lot-14941
3
Помещение под сувениры, 219 м²

Аренда | Лот 2643

Митьково 6 мин Сокольники 4 мин

Москва Русаковская, 22

Коммерческое помещение в Сокольниках. Интенсивный поток пешеходного и автомобильного трафика, рядом остановка общественного транспорта....

900 000 ₽ / месяц

49 000 ₽ за м² / год

Новинка
lot-13810
lot-13810
lot-13810
3
Помещение под сувениры, 219 м²

Аренда | Лот 15571

Смоленская 1 мин

Москва Карманицкий переулок, 9

Коммерческое помещение на 1 линии Садового кольца в районе Арбат. Объект находится в минуте ходьбы от станции метро «Смоленская»,...

1 500 000 ₽ / месяц

82 000 ₽ за м² / год

Новинка
lot-14609
lot-14609
lot-14609
lot-14609
lot-14609
lot-14609
6
Помещение под сувениры, 219 м²

Аренда | Лот 29417

Маяковская 2 мин Пушкинская 8 мин Тверская 8 мин

Москва 1-я Тверская-Ямская, 2с1

Коммерческое помещение в Тверском районе. Объект располагается на 1-й линии Маяковского тоннеля Садового кольца, обеспечен интенсивный...

2 500 000 ₽ / месяц

137 000 ₽ за м² / год

Вы уже смотрели
Посмотреть все лоты
Позвонить эксперту whatsapp telegram
Каширская
Академический
ЦАО
Академический