Арендный бизнес на Кулакова, 163 м², лот - 14909

Продажа | Лот 14909

Image 0
Image 1
Image 2
Image 3
Image 4
Image 5
Image 6
7
Image 0 Image 1 Image 2 Image 3 Image 4 Image 5 Image 6
65000000 RUB

65 000 000 ₽

399 000 ₽ за м²

Арендаторы: Самокат
МАП: 650 000 ₽
ГАП: 7 800 000 ₽
Окупаемость:
9 лет
Доходность:
12%
Адрес: Кулакова, 9с1
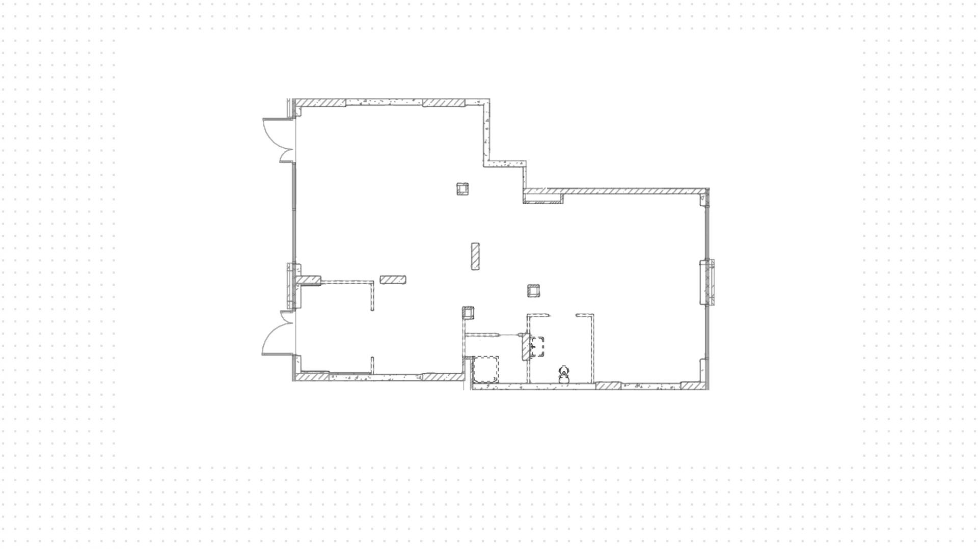
Площадь: 163 м²
Назначение: магазин бижутерия сувениры
Отделка: С отделкой
Парковка: перед фасадом
Зона разгрузки: Есть
Линия: Первая
Тип входа: Отдельный со двора

Готовый арендный бизнес на 1-й линии улицы Кулакова в Строгино. Жилой район, в зоне охвата около 66 000 людей, рядом перекрёсток с интенсивным автомобильным трафиком, пешеходный переход и остановки общественного транспорта. Окружение — пиццерия «Додо Пицца», пункт выдачи Wildberries, ветеринарная клиника «Вега».

Помещение с открытой планировкой площадью 163 м² расположено на 1-м этаже в нежилом здании 1983 года постройки. Арендатор — даркстор «Самокат». Отдельные входы с улицы и со двора, предусмотрены зона разгрузки, место для рекламы на фасаде. У здания организована парковка.

65 000 000 ₽

399 000 ₽ за м²

Арендаторы: Самокат
МАП: 650 000 ₽
ГАП: 7 800 000 ₽
Окупаемость:
9 лет
Доходность:
12%
Адрес: Кулакова, 9с1
Площадь: 163 м²
Назначение: магазин бижутерия сувениры
Отделка: С отделкой
Парковка: перед фасадом
Зона разгрузки: Есть
Линия: Первая
Тип входа: Отдельный со двора
expert

Павел

Эксперт

Для уточнения и фиксирования цены можно связаться напрямую с брокером

+7 (495) 106-19-99

Расположение на карте

Назначения
Похожие лоты

Мы включили в наш каталог лучшие предложения по коммерческой недвижимости в Москве.

Новинка
lot-14633
lot-14633
lot-14633
lot-14633
lot-14633
lot-14633
lot-14633
7
Помещение под сувениры, 106 м²

Продажа | Лот 29997

Москва Генерала Белова, 9

Площадь: 106 м²

Назначение: Торговое помещение под  магазин пекарня пункт выдачи бижутерия сувениры

Арендаторы: Озон Табак Пекарня

Доходность: 10%, 542 000 ₽/мес

Окупаемость: 10 лет

Готовый арендный бизнес на 1-й линии улицы Генерала Белова в Северном Орехово-Борисово. Близость Московского финансово-юридического...

65 000 000 ₽

613 000 ₽ за м²

Новинка
lot-13827
lot-13827
lot-13827
lot-13827
4
Помещение под сувениры, 261 м²

Продажа | Лот 18022

Москва Мытищи, Новомытищинский проспект, 62с1

Площадь: 261 м²

Назначение: Торговое помещение под  магазин бижутерия сувениры аптека

Доходность: 3%, 175 000 ₽/мес

Окупаемость: 31 год

Готовый арендный бизнес на Новомытищинском проспекте в городе Мытищи. Ритейл находится в жилом комплексе «Атлантис», близость остановок...

65 000 000 ₽

249 000 ₽ за м²

Новинка
lot-15505
lot-15505
lot-15505
3
Помещение под сувениры, 103 м²

Продажа | Лот 43125

Площадь Ильича 10 мин Римская 10 мин

Москва Крузенштерна, 4

Коммерческое помещение в районе Лефортово. Развивающийся квартал, обеспечен оживлённый автомобильный и пешеходный трафик. Окружение...

65 000 000 ₽

631 000 ₽ за м²

Новинка
lot-10619
lot-10619
lot-10619
lot-10619
4
Помещение под сувениры, 163 м²

Продажа | Лот 12691

Аэропорт 2 мин

Москва Ленинградский проспект, 47с2

Площадь: 163 м²

Назначение: Торговое помещение под  магазин бижутерия бижутерия сувениры сувениры алко-маркет

Доходность: 8%, 506 000 ₽/мес

Окупаемость: 13 лет

Готовый арендный бизнес на 1-й линии Ленинградского проспекта в Хорошёвском районе. Большой поток пешеходного и автомобильного трафика,...

79 000 000 ₽

485 000 ₽ за м²

Новинка
lot-10667
lot-10667
lot-10667
lot-10667
4
Помещение под сувениры, 163 м²

Продажа | Лот 12772

Москва Архитектора Щусева, 2с2

Площадь: 163 м²

Назначение: Торговое помещение под  офис рабочее место

Доходность: 8%, 476 000 ₽/мес

Окупаемость: 14 лет

Готовый арендный бизнес на улице Архитектора Щусева в Даниловском районе. Близость детского сада и набережной обеспечивает большой...

80 000 000 ₽

491 000 ₽ за м²

Новинка
lot-14969
lot-14969
lot-14969
lot-14969
lot-14969
5
Помещение под сувениры, 162 м²

Продажа | Лот 34520

Новослободская 2 мин

Москва Долгоруковская, 40

Коммерческое помещение на первой линии Долгоруковской улицы в Тверском районе. Интенсивный пешеходный и автомобильный трафик, рядом...

171 600 000 ₽

1 059 000 ₽ за м²

Позвонить эксперту max whatsapp telegram
Каширская
Академический
ЦАО
Академический