Арендный бизнес на Большой Полянке, 235 м², лот - 11628

Продажа | Лот 11628

Image 0
Image 1
Image 2
Image 3
Image 4
Image 5
Image 6
Image 7
8
Image 0 Image 1 Image 2 Image 3 Image 4 Image 5 Image 6 Image 7
260000000 RUB

260 000 000 ₽

1 106 000 ₽ за м²

Арендаторы: «Кулинарная лавка братьев Караваевых»
МАП: 1 050 000 ₽
ГАП: 12 600 000 ₽
Окупаемость:
21 год
Доходность:
5%
Метро:
Полянка :
pedestrian  3 минуты пешком
Район/округ: Якиманка / ЦАО
Адрес: Большая Полянка, 30
Площадь: 235 м²
Назначение: кафе общепит
Высота потолков: 3.4 метра
Отделка: С отделкой
Парковка: платная городская перед зданием
Электрическая мощность (кВт): 95
Зона разгрузки: Есть
Линия: Первая
Тип входа: Отдельный с улицы
Витрины есть

Готовый арендный бизнес на 1-й линии улицы Большая Полянка в районе Якиманка. Интенсивный поток пешеходного и автомобильного трафика, рядом остановка общественного транспорта. Окружение — банк «ВТБ», салон красоты «Персона Lab», пиццерия «Додо Пицца», ресторан «Сиеста». В 3-х минутах ходьбы находится станция метро «Полянка».

Объект с зальной планировкой площадью 235 м² расположен на 1-м этаже во встроенно-пристроенном к жилому дому здании. Арендатор — «Кулинарная лавка братьев Караваевых». Установлена вытяжка, предусмотрены 3 отдельных входа с улицы и витринное остекление. Спланированы место для рекламы на фасаде и зона разгрузки. Вдоль дома организована городская платная парковка.

260 000 000 ₽

1 106 000 ₽ за м²

Арендаторы: «Кулинарная лавка братьев Караваевых»
МАП: 1 050 000 ₽
ГАП: 12 600 000 ₽
Окупаемость:
21 год
Доходность:
5%
Метро:
Полянка :
pedestrian  3 минуты пешком
Район/округ: Якиманка / ЦАО
Адрес: Большая Полянка, 30
Площадь: 235 м²
Назначение: кафе общепит
Высота потолков: 3.4 метра
Отделка: С отделкой
Парковка: платная городская перед зданием
Электрическая мощность (кВт): 95
Зона разгрузки: Есть
Линия: Первая
Тип входа: Отдельный с улицы
Витрины есть
expert

Александр

Эксперт проекта

Для уточнения и фиксирования цены можно связаться напрямую с брокером

+7 (495) 106-19-99

Расположение на карте

Назначения
Похожие лоты

Мы включили в наш каталог лучшие предложения по коммерческой недвижимости в Москве.

lot-1859
lot-1859
lot-1859
lot-1859
lot-1859
5
Готовый арендный бизнес в 6 минутах от метро «Сухаревская»

Продажа | Лот 3556

Сретенский бульвар 6 мин Сухаревская 6 мин

Москва Сретенка, 9

Площадь: 240 м²

Этаж: 1 этаж

Назначение: Торговое помещение под  магазин продуктовый магазин бижутерия продукты сувениры

Арендаторы: магазин «Мясновъ и Отдохни»

Доходность: 8%, 1 548 000 ₽/мес

Окупаемость: 14 лет

Готовый арендный бизнес на 1-й линии улицы Сретенка в Мещанском районе. Большой поток пешеходного и автомобильного трафика. Окружение...

260 000 000 ₽

1 083 000 ₽ за м²

Новинка
lot-12025
lot-12025
lot-12025
lot-12025
lot-12025
lot-12025
lot-12025
lot-12025
8
Помещение под общепит, 358 м²

Продажа | Лот 15075

Китай-город 4 мин

Москва Маросейка, 15

Площадь: 358 м²

Назначение: Торговое помещение под  ресторан магазин кофейня шоурум продуктовый магазин бижутерия продукты сувениры

Арендаторы: караоке, кулирная школа, бижутерия, правда кофе, у палыча

Доходность: 8%, 1 667 000 ₽/мес

Окупаемость: 13 лет

Готовый арендный бизнес на 1-й линии улицы Маросейка в Басманном районе. Большое количество кафе и ресторанов обеспечивает интенсивный...

260 000 000 ₽

726 000 ₽ за м²

Новинка
lot-12391
lot-12391
lot-12391
lot-12391
4
Помещение под общепит, 67 м²

Продажа | Лот 15667

Лубянка 1 мин Охотный ряд 7 мин

Москва Никольская, 25

Площадь: 67 м²

Назначение: Торговое помещение под  магазин кофейня бижутерия сувениры

Арендаторы: кофейня one price coffee

Доходность: 7%, 1 543 000 ₽/мес

Окупаемость: 14 лет

Готовый арендный бизнес в Тверском районе. Объект находится на 1-й линии Никольской улицы в минуте ходьбы от метро «Лубянка». Рядом...

259 200 000 ₽

3 869 000 ₽ за м²

Новинка
lot-14654
lot-14654
2
Помещение под общепит, 235 м²

Аренда | Лот 30195

Москва бульвар Маршала Рокоссовского, 30

Коммерческое помещение на 1-й линии бульвара Маршала Рокоссовского в Богородском районе. Большой пешеходный и автомобильный трафик,...

650 000 ₽ / месяц

33 000 ₽ за м² / год

Новинка
lot-9689
lot-9689
lot-9689
lot-9689
lot-9689
lot-9689
lot-9689
lot-9689
lot-9689
lot-9689
lot-9689
lot-9689
12
Помещение под общепит, 236 м²

Продажа | Лот 11355

Тульская 3 мин

Москва Холодильный переулок, 3к1с3

Площадь: 236 м²

Назначение: Торговое помещение под  офис рабочее место

Арендаторы: рекламное агентство

Доходность: 8%, 667 000 ₽/мес

Окупаемость: 13 лет

Готовый арендный бизнес в Даниловском районе. Помещение находится в бизнес-квартале «Товарищество Рябовской Мануфактуры». Окружение...

104 016 000 ₽

441 000 ₽ за м²

Новинка
lot-12569
lot-12569
2
Помещение под общепит, 233 м²

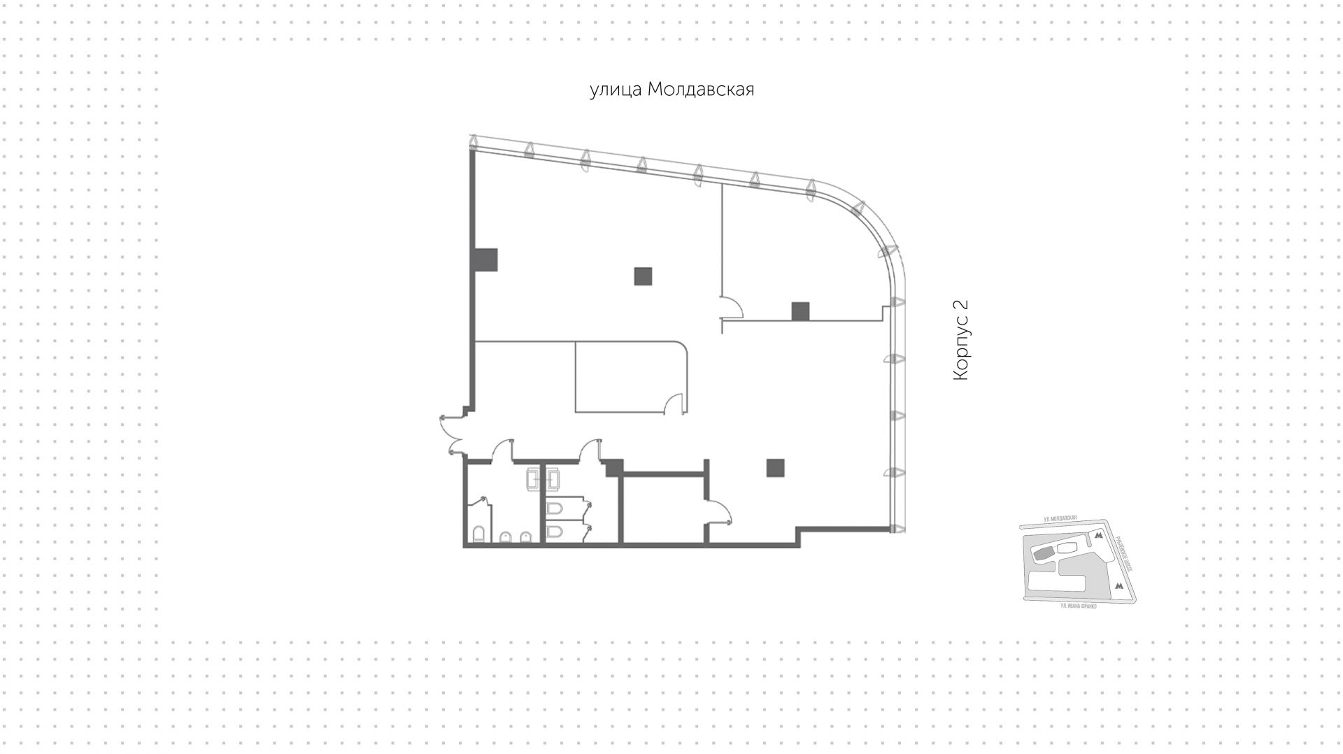
Продажа | Лот 13153

Москва Молдавская, 1

Площадь: 233 м²

119 142 000 ₽

511 000 ₽ за м²

Позвонить эксперту whatsapp telegram
Каширская
Академический
ЦАО
Академический