Арендный бизнес на Большой Бронной, 176 м², лот - 16235

Продажа | Лот 16235

Image 0
Image 1
Image 2
Image 3
Image 4
Image 5
6
Image 0 Image 1 Image 2 Image 3 Image 4 Image 5
171600000 RUB

171 600 000 ₽

975 000 ₽ за м²

МАП: 1 100 000 ₽
ГАП: 13 200 000 ₽
Окупаемость:
13 лет
Доходность:
8%
Метро:
Пушкинская :
pedestrian  5 минут пешком
Тверская :
pedestrian  6 минут пешком
Район/округ: Пресненский / ЦАО
Адрес: Большая Бронная, 23с2
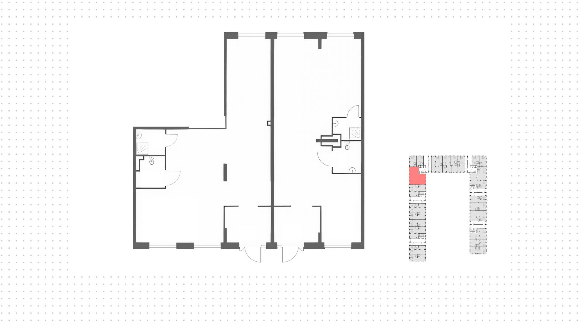
Площадь: 176 м²
Назначение: магазин салон красоты бижутерия парикмахерская сувениры клиника
Отделка: С отделкой
Парковка: собственная парковка перед зданием
Тип входа: Отдельный со двора
Витрины есть

Готовый арендный бизнес в Пресненском районе. Окружение — ​торгово-деловой центр «Большая Бронная», гостиницы «Де Пари» и «Софит», супермаркет «ВкусВилл». За 5 минут пешком можно дойти до станции метро «Пушкинская», а за 6 минут — до станции «Тверская».

Объект с открытой планировкой площадью 176 м² расположен на 1-м этаже в жилом доме. Арендатор — клиника косметологии EVOLUTION. В помещении с витринным остеклением организован отдельный вход со двора. Перед зданием находится собственная парковка.

171 600 000 ₽

975 000 ₽ за м²

МАП: 1 100 000 ₽
ГАП: 13 200 000 ₽
Окупаемость:
13 лет
Доходность:
8%
Метро:
Пушкинская :
pedestrian  5 минут пешком
Тверская :
pedestrian  6 минут пешком
Район/округ: Пресненский / ЦАО
Адрес: Большая Бронная, 23с2
Площадь: 176 м²
Назначение: магазин салон красоты бижутерия парикмахерская сувениры клиника
Отделка: С отделкой
Парковка: собственная парковка перед зданием
Тип входа: Отдельный со двора
Витрины есть
expert

Александр

Руководитель проекта

Для уточнения и фиксирования цены можно связаться напрямую с брокером

+7 (495) 106-19-99

Расположение на карте

Назначения
Похожие лоты

Мы включили в наш каталог лучшие предложения по коммерческой недвижимости в Москве.

Новинка
lot-14969
lot-14969
lot-14969
lot-14969
lot-14969
5
Помещение под медицинский центр, 162 м²

Продажа | Лот 34520

Новослободская 2 мин

Москва Долгоруковская, 40

Коммерческое помещение на первой линии Долгоруковской улицы в Тверском районе. Интенсивный пешеходный и автомобильный трафик, рядом...

171 600 000 ₽

1 059 000 ₽ за м²

Новинка
lot-9809
lot-9809
lot-9809
lot-9809
4
Помещение под медицинский центр, 280 м²

Продажа | Лот 12240

Багратионовская 9 мин

Москва Барклая, 6Ас1

Площадь: 280 м²

Назначение: Торговое помещение под  магазин супермаркет бижутерия сувениры

Доходность: 9%, 1 194 000 ₽/мес

Окупаемость: 12 лет

Готовый арендный бизнес на улице Барклая в районе Филёвский парк. Близость торгового центра «Горбушкин Двор» и начальной школы с детским...

172 000 000 ₽

614 000 ₽ за м²

Новинка
lot-11691
lot-11691
lot-11691
lot-11691
lot-11691
lot-11691
6
Помещение под медицинский центр, 591 м²

Продажа | Лот 14302

Авиамоторная 7 мин

Москва Авиамоторная, 28/6

Площадь: 591 м²

Назначение: Торговое помещение под  магазин продуктовый магазин бижутерия продукты сувениры супермаркет

Арендаторы: Магнолия

Доходность: 11%, 1 425 000 ₽/мес

Окупаемость: 10 лет

Готовый арендный бизнес на 1-й линии Авиамоторной улицы в районе Лефортово. Окружение — алкомаркет «Винлаб», магазин кулинарии «Милти»,...

170 999 000 ₽

289 000 ₽ за м²

Новинка
lot-13000
lot-13000
lot-13000
lot-13000
lot-13000
lot-13000
6
Помещение под медицинский центр, 176 м²

Аренда | Лот 4898

Белорусская 3 мин

Москва Лесная, 9

Коммерческое угловое помещение на 1-й линии 3-го Лесного переулка в Тверском районе. Интенсивный пешеходный и автомобильный трафик,...

1 500 000 ₽ / месяц

102 000 ₽ за м² / год

Новинка
lot-14955
lot-14955
lot-14955
lot-14955
4
Помещение под медицинский центр, 176 м²

Продажа | Лот 34203

Москва Лайково, микрорайон Город-Событие, 55

Коммерческое помещение в микрорайоне Город-Событие в Лайково. Ритейл находится у въезда в жилой комплекс «Рублёвский Квартал», в радиусе...

47 000 000 ₽

267 000 ₽ за м²

Новинка
lot-13470
1
Помещение под медицинский центр, 176 м²

Продажа | Лот 14692

Бауманская 15 мин Электрозаводская 15 мин

Москва Большая Почтовая, 18

Площадь: 176 м²

Назначение: Торговое помещение под  офис рабочее место

69 573 000 ₽

395 000 ₽ за м²

Позвонить эксперту whatsapp telegram
Каширская
Академический
ЦАО
Академический