Здание на Авиаконструктора Миля, 2886 м², лот - 13981

Продажа | Лот 13981

Image 0
Image 1
Image 2
Image 3
Image 4
Image 5
6
Image 0 Image 1 Image 2 Image 3 Image 4 Image 5
500000000 RUB

500 000 000 ₽

173 000 ₽ за м²

Метро:
Жулебино :
pedestrian  6 минут пешком
Котельники :
pedestrian  5 минут пешком
Адрес: Авиаконструктора Миля, 22
Площадь: 2886 м²
Назначение: магазин супермаркет аптека фаст-фуд продуктовый магазин бижутерия продукты сувениры
Высота потолков: 3 метра
Отделка: С отделкой
Парковка: городская бесплатная перед фасадом
Зона разгрузки: Есть
Линия: Первая
Тип входа: Отдельный со двора
Витрины есть

Двухэтажное здание на 1-й линии улицы Авиаконструктора Миля в Выхино-Жулебино. Жилой район, большой пешеходный и автомобильный трафик, рядом остановка общественного транспорта. Окружение — алкомаркет «Красное&Белое», пункты выдачи Ozon, «Яндекс Маркет», стоматология «СитиДент». За 5 минут можно пешком дойти до станции метро «Котельники», за 6 минут — до «Жулебино».

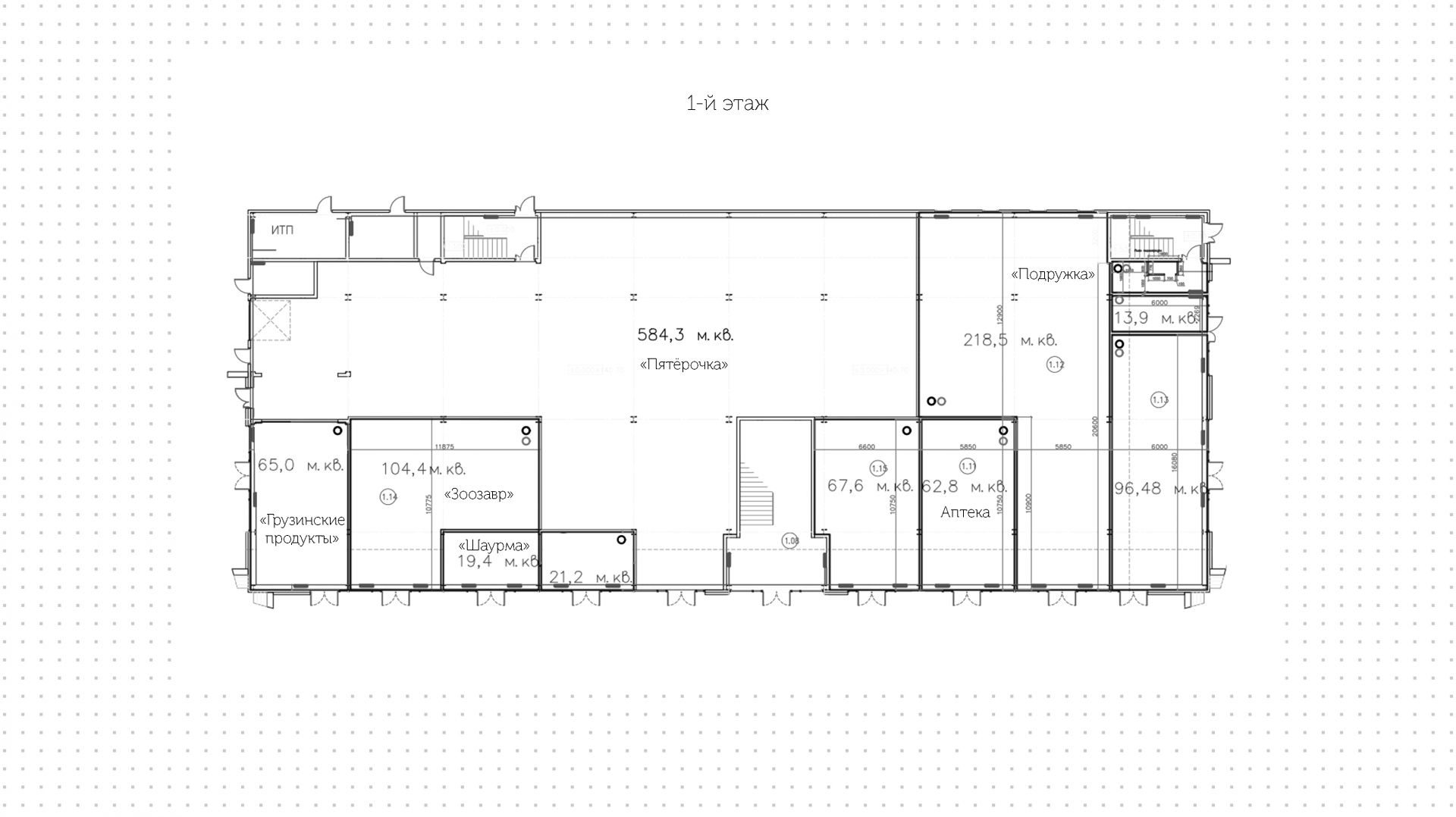
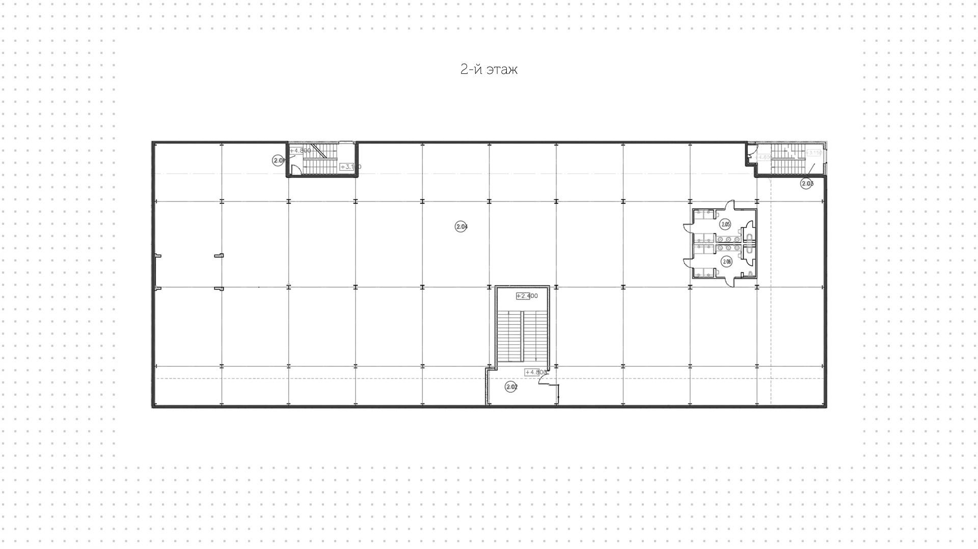
Объект с открытой планировкой площадью 2 886 м² был построен в 2022 году. Первый этаж занимают аптека «Ригла», зоомагазин «Зоозавр», магазин косметики «Подружка», медицинская клиника «МЕДСИ», супермаркет «Пятёрочка», фаст-фуд «Шаурма», грузинский продуктовый магазин, второй этаж вакантен. Отдельные входы с улицы и со двора, витринное остекление. Предусмотрены зона разгрузки, место для рекламы на фасаде. Возле здания организована городская бесплатная парковка.

500 000 000 ₽

173 000 ₽ за м²

Метро:
Жулебино :
pedestrian  6 минут пешком
Котельники :
pedestrian  5 минут пешком
Адрес: Авиаконструктора Миля, 22
Площадь: 2886 м²
Назначение: магазин супермаркет аптека фаст-фуд продуктовый магазин бижутерия продукты сувениры
Высота потолков: 3 метра
Отделка: С отделкой
Парковка: городская бесплатная перед фасадом
Зона разгрузки: Есть
Линия: Первая
Тип входа: Отдельный со двора
Витрины есть
expert

Павел

Эксперт

Для уточнения и фиксирования цены можно связаться напрямую с брокером

+7 (495) 106-19-99

Расположение на карте

Похожие лоты

Мы включили в наш каталог лучшие предложения по коммерческой недвижимости в Москве.

lot-3626
lot-3626
lot-3626
lot-3626
lot-3626
lot-3626
lot-3626
7
Двухэтажное здание с арендатором «Корчма Тарас Бульба»

Продажа | Лот 5161

Добрынинская 1 мин

Москва Люсиновская, 7/8с1

Площадь: 381 м²

Назначение: Торговое помещение под  ресторан

Готовый арендный бизнес на 1-й линии Люсиновской улицы в районе Замоскворечье. Остановка общественного транспорта обеспечивает интенсивный...

500 000 000 ₽

1 312 000 ₽ за м²

lot-3072
lot-3072
2
Готовый арендный бизнес из 4-х нежилых зданий

Продажа | Лот 4428

Москва Большая Косинская, 18Г

Площадь: 3 136 м²

Назначение: Торговое помещение под  супермаркет магазин свободное бижутерия бизнес сувениры пункт выдачи

Арендаторы: пункт выдачи Wildberries, супермаркет «Пятерочка», магазины «Мясо», «Хлеб», «Пиво», «Табак», «Смешные цены», аптека

Доходность: 10%, 3 788 000 ₽/мес

Окупаемость: 11 лет

Готовый арендный бизнес на 1-й линии Большой Косинской улицы в районе Косино-Ухтомский. Остановка общественного транспорта обеспечивает...

500 000 000 ₽

159 000 ₽ за м²

lot-3620
lot-3620
lot-3620
lot-3620
lot-3620
lot-3620
lot-3620
7
Трёхуровневое коммерческое помещение в 5 минутах от метро Смоленская

Продажа | Лот 5149

Смоленская 5 мин

Москва Смоленская, 3

Коммерческое помещение на 1-й линии Смоленской улицы в районе Хамовники. Интенсивный пешеходный и автомобильный трафик, рядом остановка...

494 860 000 ₽

974 000 ₽ за м²

lot-2979
lot-2979
lot-2979
3
Готовый арендный бизнес на 1-й линии Зеленого проспекта в Перово

Продажа | Лот 4198

Москва Зеленый проспект, 1А

Готовый арендный бизнес на 1-й линии Зеленого проспекта в Перово. Интенсивный поток пешеходного и автомобильного трафика, рядом остановка...

300 000 000 ₽

102 000 ₽ за м²

Новинка
lot-14877
lot-14877
lot-14877
lot-14877
lot-14877
lot-14877
6
Помещение под сувениры, 3032 м²

Продажа | Лот 12893

Москва деревня Лапино, с70

Готовый арендный бизнес на 1-й линии домов в деревне Лапино. Близость к коттеджным посёлкам «Лапино-Град» и «Алеко» обеспечивает интенсивный...

800 000 000 ₽

264 000 ₽ за м²

lot-2978
lot-2978
2
Комплекс из 4-х зданий с автотехцентром в Реутове

Продажа | Лот 4199

Москва Реутов, Носовихинское шоссе, 33А

Площадь: 2 874 м²

Назначение: Торговое помещение под  магазин автосалон бижутерия сувениры

Готовый арендный бизнес в Реутове. Окружение — супермаркет «ВкусВилл», фитнес-клуб XS Body, паб «Кран и Вентиль», кальян-бар «Нирвана...

750 000 000 ₽

261 000 ₽ за м²

Позвонить эксперту whatsapp telegram
Каширская
Академический
ЦАО
Академический