Арендный бизнес на 2-й Хуторской, 90 м², лот - 36003

Продажа | Лот 36003

Image 0
Image 1
Image 2
Image 3
4
Image 0 Image 1 Image 2 Image 3
77000000 RUB

77 000 000 ₽

856 000 ₽ за м²

Арендаторы: ozon и яндекс маркет
МАП: 513 000 ₽
ГАП: 6 156 000 ₽
Окупаемость:
13 лет
Доходность:
8%
Метро:
Дмитровская :
pedestrian  6 минут пешком
Район/округ: Савёловский / САО
Адрес: 2-я Хуторская, 34
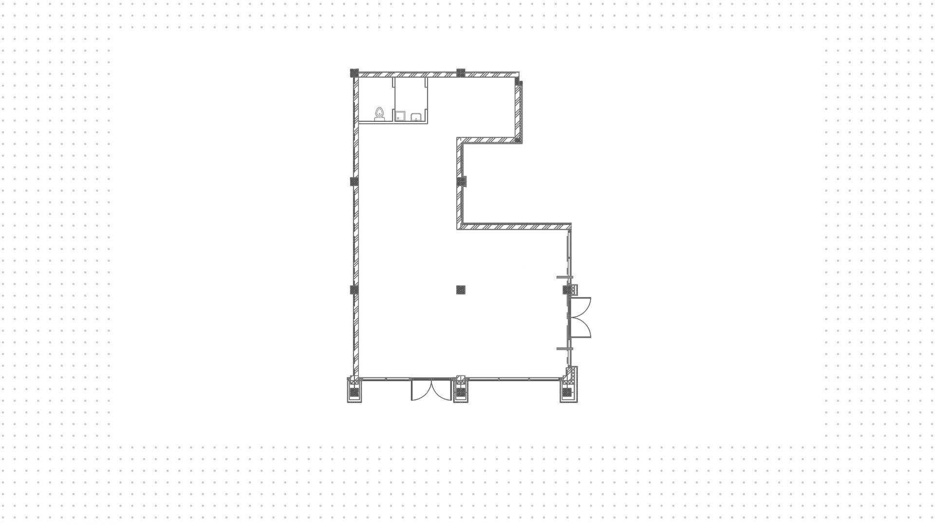
Площадь: 90 м²
Назначение: магазин пункт выдачи бижутерия сувениры
Высота потолков: 4.85 метра
Отделка: С отделкой
Парковка: городская платная у дороги
Электрическая мощность (кВт): 22
Зона разгрузки: Есть
Линия: Первая
Тип входа: Отдельный с улицы
Витрины есть

Готовый арендный бизнес на первой линии 2-й Хуторской улицы в Савёловском районе. Объект находится в жилом комплексе премиум-класса Symphony 34 на 4 500 жителей. Близость бизнес-центров обеспечивает интенсивный пешеходный и автомобильный трафик. За 5 минут можно пешком дойти до станции метро и МЦД-2 «Дмитровская».

Помещение с открытой планировкой площадью 90 м² расположено на первом этаже в жилом доме. Арендаторы — пункты выдачи OZON и «Яндекс Маркет». Два отдельных входа с улицы, витринное остекление. Спланированы зона разгрузки и место для рекламы на фасаде. У дороги организована городская платная парковка.

77 000 000 ₽

856 000 ₽ за м²

Арендаторы: ozon и яндекс маркет
МАП: 513 000 ₽
ГАП: 6 156 000 ₽
Окупаемость:
13 лет
Доходность:
8%
Метро:
Дмитровская :
pedestrian  6 минут пешком
Район/округ: Савёловский / САО
Адрес: 2-я Хуторская, 34
Площадь: 90 м²
Назначение: магазин пункт выдачи бижутерия сувениры
Высота потолков: 4.85 метра
Отделка: С отделкой
Парковка: городская платная у дороги
Электрическая мощность (кВт): 22
Зона разгрузки: Есть
Линия: Первая
Тип входа: Отдельный с улицы
Витрины есть
expert

Павел

Эксперт

Для уточнения и фиксирования цены можно связаться напрямую с брокером

+7 (495) 106-19-99

Расположение на карте

Назначения
Похожие лоты

Мы включили в наш каталог лучшие предложения по коммерческой недвижимости в Москве.

Новинка
lot-14633
lot-14633
lot-14633
lot-14633
lot-14633
lot-14633
lot-14633
lot-14633
8
Помещение под сувениры, 106 м²

Продажа | Лот 29997

Москва Генерала Белова, 9

Площадь: 106 м²

Назначение: Торговое помещение под  магазин пекарня пункт выдачи бижутерия сувениры

Арендаторы: Озон Табак Пекарня

Доходность: 8%, 535 000 ₽/мес

Окупаемость: 12 лет

Готовый арендный бизнес на 1-й линии улицы Генерала Белова в Северном Орехово-Борисово. Близость Московского финансово-юридического...

77 000 000 ₽

726 000 ₽ за м²

Новинка
lot-14002
lot-14002
lot-14002
lot-14002
lot-14002
5
Помещение под сувениры, 156 м²

Продажа | Лот 11242

Автозаводская 9 мин

Москва Восточная, 9

Площадь: 156 м²

Назначение: Торговое помещение под  офис магазин кафе общепит бижутерия рабочее место сувениры

Арендаторы: кафе «Конструктор», оптовый офис

Доходность: 7%, 428 000 ₽/мес

Окупаемость: 15 лет

Готовый арендный бизнес на 1-й линии 1-го Восточного переулка в Даниловском районе. Благодаря близости к торговому центру Roomer вдоль...

77 000 000 ₽

494 000 ₽ за м²

Новинка
lot-12819
lot-12819
lot-12819
3
Помещение под сувениры, 123 м²

Продажа | Лот 16426

Москва деревня Сапроново, Калиновая, 1с1

Коммерческое помещение на 1-й линии домов в деревне Сапроново. Жилой развивающийся район, обеспечен интенсивный автомобильный и пешеходный...

76 900 000 ₽

625 000 ₽ за м²

Новинка
lot-15579
lot-15579
lot-15579
lot-15579
lot-15579
lot-15579
lot-15579
7
Помещение под сувениры, 90 м²

Аренда | Лот 43546

Сокол 1 мин

Москва Ленинградский проспект, 74c1

Коммерческое помещение на 1 линии Ленинградского проспекта в районе Аэропорт. Интенсивный поток пешеходного и автомобильного трафика,...

990 000 ₽ / месяц

132 000 ₽ за м² / год

Новинка
lot-15628
lot-15628
2
Помещение под сувениры, 90 м²

Продажа | Лот 44429

Москва поселение Сосенское

Площадь: 90 м²

29 891 000 ₽

332 000 ₽ за м²

lot-15631
lot-15631
2
Помещение под сувениры, 90 м²

Продажа | Лот 316417

Площадь: 90 м²

Этаж: 1 этаж

29 891 000 ₽

332 000 ₽ за м²

Позвонить эксперту whatsapp telegram
Каширская
Академический
ЦАО
Академический