Арендный бизнес на Неглинной, 212 м², лот - 5666

Продажа | Лот 5666

Image 0
Image 1
Image 2
Image 3
Image 4
Image 5
Image 6
Image 7
8
Image 0 Image 1 Image 2 Image 3 Image 4 Image 5 Image 6 Image 7
458600000 RUB

458 600 000 ₽

2 163 000 ₽ за м²

Арендаторы: ресторан Champ Bistro & Wine bar
МАП: 2 381 000 ₽
ГАП: 28 571 000 ₽
Окупаемость:
17 лет
Доходность:
6%
Метро:
Трубная :
pedestrian  6 минут пешком
Район/округ: Мещанский / ЦАО
Адрес: Неглинная, 14с1А
Площадь: 212 м²
Назначение: ресторан общепит
Высота потолков: 4.5 метра
Отделка: С отделкой
Парковка: городская платная перед фасадом
Электрическая мощность (кВт): 100
Зона разгрузки: Есть
Линия: Первая
Тип входа: Отдельный со двора
Витрины есть

Готовый арендный бизнес на 1-й линии Неглинной улицы в Мещанском районе. Большой поток пешеходного и автомобильного трафика, городская платная парковка перед зданием. Окружение — банк «ВТБ», кафе Prime, салон красоты «Аэстетика», магазин парфюмерии Molecule, рестораны «Романов», «Сандуны». За 6 минут можно пешком дойти до станции метро «Трубная».

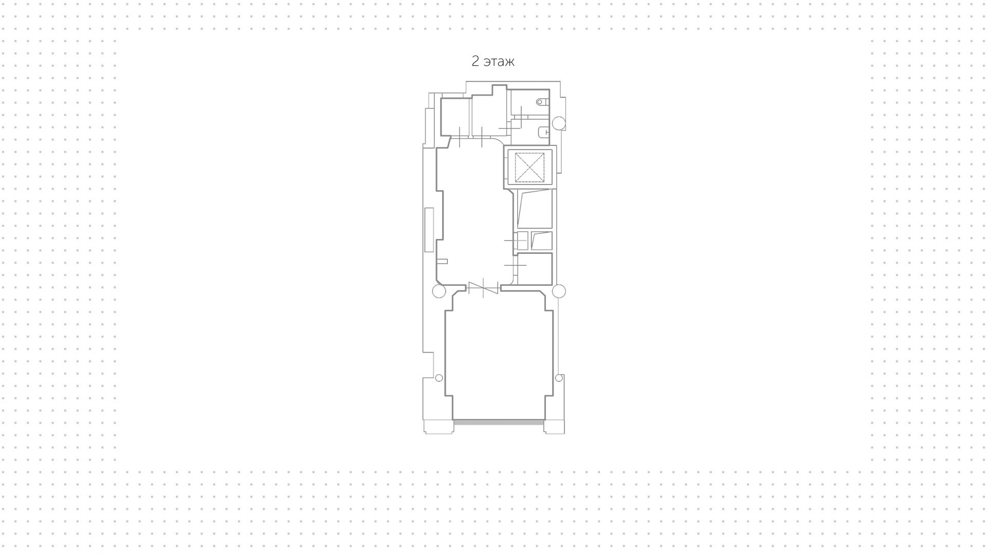
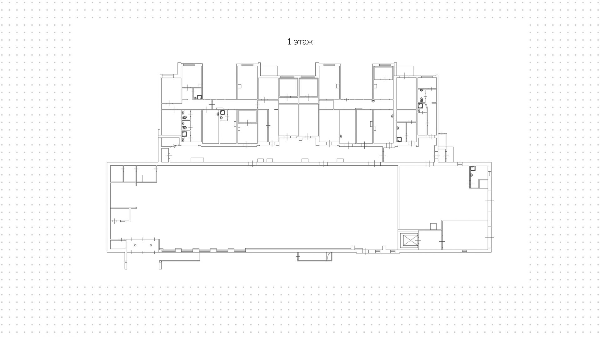
Угловое помещение с комбинированной планировкой площадью 212 м² расположено на 1-м этаже с антресолью в нежилом здании. Арендатор — ресторан Bruno. Отдельные входы с улицы и со двора, витринное остекление. Предусмотрены зона разгрузки, место для рекламы на фасаде. У дороги организована городская платная парковка.

458 600 000 ₽

2 163 000 ₽ за м²

Арендаторы: ресторан Champ Bistro & Wine bar
МАП: 2 381 000 ₽
ГАП: 28 571 000 ₽
Окупаемость:
17 лет
Доходность:
6%
Метро:
Трубная :
pedestrian  6 минут пешком
Район/округ: Мещанский / ЦАО
Адрес: Неглинная, 14с1А
Площадь: 212 м²
Назначение: ресторан общепит
Высота потолков: 4.5 метра
Отделка: С отделкой
Парковка: городская платная перед фасадом
Электрическая мощность (кВт): 100
Зона разгрузки: Есть
Линия: Первая
Тип входа: Отдельный со двора
Витрины есть
expert

Алина

Брокер лота

Для уточнения и фиксирования цены можно связаться напрямую с брокером

+7 (495) 106-19-99

Расположение на карте

Назначения
Похожие лоты

Мы включили в наш каталог лучшие предложения по коммерческой недвижимости в Москве.

Новинка
lot-14428
lot-14428
lot-14428
lot-14428
lot-14428
lot-14428
lot-14428
lot-14428
8
Помещение под общепит, 2471 м²

Продажа | Лот 19474

Москва 3-й Павелецкий проезд, 3

Площадь: 2 471 м²

Назначение: Торговое помещение под  магазин спортзал бижутерия сувениры

Арендаторы: фитнес клуб облака

Доходность: 9%, 3 561 000 ₽/мес

Окупаемость: 11 лет

Готовый арендный бизнес в Даниловском районе. Жилой развивающийся район, обеспечен интенсивный автомобильный и пешеходный трафик....

470 000 000 ₽

190 000 ₽ за м²

Новинка
lot-14273
lot-14273
lot-14273
lot-14273
lot-14273
lot-14273
lot-14273
lot-14273
lot-14273
lot-14273
lot-14273
lot-14273
lot-14273
lot-14273
lot-14273
lot-14273
lot-14273
lot-14273
lot-14273
lot-14273
20
Помещение под общепит, 1062 м²

Продажа | Лот 16328

Москва Погодинская, 2

Коммерческое помещение на Погодинской улице в Хамовниках. Развитый район, объект находится в в жилом комплексе делюкс-класса «Жизнь...

473 000 000 ₽

445 000 ₽ за м²

Новинка
lot-12967
lot-12967
lot-12967
3
Помещение под общепит, 2462 м²

Продажа | Лот 9242

Волоколамская 8 мин

Москва Пятницкое шоссе, 8

Площадь: 2 462 м²

Назначение: Торговое помещение под  магазин супермаркет бижутерия сувениры

Арендаторы: супермаркет «Виктория»

Доходность: 7%, 2 370 000 ₽/мес

Окупаемость: 16 лет

Готовый арендный бизнес на 1-й линии Пятницкого шоссе в Митино. Жилой район, большой поток пешеходного и автомобильного трафика, рядом...

455 000 000 ₽

185 000 ₽ за м²

Новинка
lot-9634
lot-9634
lot-9634
lot-9634
lot-9634
lot-9634
lot-9634
7
Помещение под общепит, 212 м²

Продажа | Лот 10917

Москва Балашиха, Бояринова, 36

Площадь: 212 м²

Назначение: Торговое помещение под  магазин аптека бижутерия сувениры пункт выдачи

Арендаторы: супермаркет «ВкусВилл», магазин «Строительный двор», аптека «Ригла», магазин табака «Не Дым»

Доходность: 9%, 439 000 ₽/мес

Окупаемость: 11 лет

Готовый арендный бизнес на первой линии улицы Бояринова в Балашихе. Благодаря близости к въезду в жилой комплекс вдоль помещения...

58 000 000 ₽

274 000 ₽ за м²

Новинка
lot-14293
lot-14293
lot-14293
3
Помещение под общепит, 212 м²

Продажа | Лот 19253

Бульвар Рокоссовского 5 мин

Москва Открытое шоссе, 18Ас1

Площадь: 212 м²

Назначение: Торговое помещение под  магазин кофейня кофе с собой продуктовый магазин бижутерия продукты сувениры

Арендаторы: ▪️Сеть Ермолино 50.5 кв ▪️Сеть ОnеРriсе 98 кв(не Франшиза) ▪️Табак 13кв (Раrаdох tоbассо) ▪️Кофе с собой 9 кв (НЯМ НЯМ) ▪️Овощи/Фрукты 18 кв ▪️Автомат с игрушками 1 кв

Доходность: 10%, 750 000 ₽/мес

Окупаемость: 10 лет

Готовый арендный бизнес в Метрогородке. Жилой развивающийся район, обеспечен интенсивный автомобильный и пешеходный трафик. Окружение...

90 000 000 ₽

425 000 ₽ за м²

lot-3642
lot-3642
lot-3642
lot-3642
lot-3642
lot-3642
lot-3642
lot-3642
lot-3642
lot-3642
lot-3642
11
Помещение с арендатором «Север» рядом с метро «Тверская»

Продажа | Лот 5164

Тверская 2 мин

Москва Страстной бульвар, 4с3

Площадь: 212 м²

Назначение: Торговое помещение под  ресторан магазин бар кафе бижутерия сувениры

Арендаторы: бар «Север»

Доходность: 5%, 913 000 ₽/мес

Окупаемость: 21 год

Готовый арендный бизнес в Тверском районе. Окружение — бары «Онегин», «Бирмаркет», Dukh, Beer & Fries, Fest Bar, рестораны «Траттория Венеция»,...

230 000 000 ₽

1 085 000 ₽ за м²

Позвонить эксперту whatsapp telegram
Каширская
Академический
ЦАО
Академический