Помещение на Смоленской-Сенной площади, 546 м², лот - 5777

Продажа | Лот 5777

Image 0
Image 1
Image 2
Image 3
Image 4
5
Image 0 Image 1 Image 2 Image 3 Image 4

Продажа

Аренда

505302000 RUB

505 302 000 ₽

925 000 ₽ за м²

Метро:
Смоленская :
pedestrian  7 минут пешком
Район/округ: Хамовники / ЦАО
Адрес: Смоленская-Сенная площадь, 27с1
Площадь: 546 м²
Назначение: магазин свободное банк салон красоты спортзал бижутерия бизнес парикмахерская сувениры супермаркет
Высота потолков: 3 метра
Отделка: С отделкой
Парковка: рядом городская платная парковка
Электрическая мощность (кВт): 100
Зона разгрузки: Есть
Линия: Первая
Тип входа: Отдельный со двора
Витрины есть

Коммерческое помещение в районе Хамовники. Большой поток пешеходного и автомобильного трафика, рядом остановка общественного транспорта. Удобный подъезд с дублера Садового кольца, возможен въезд со двора. Окружение — «Альфа-банк», супермаркет «Азбука daily». За 7 минут можно пешком дойти до станции метро «Смоленская».

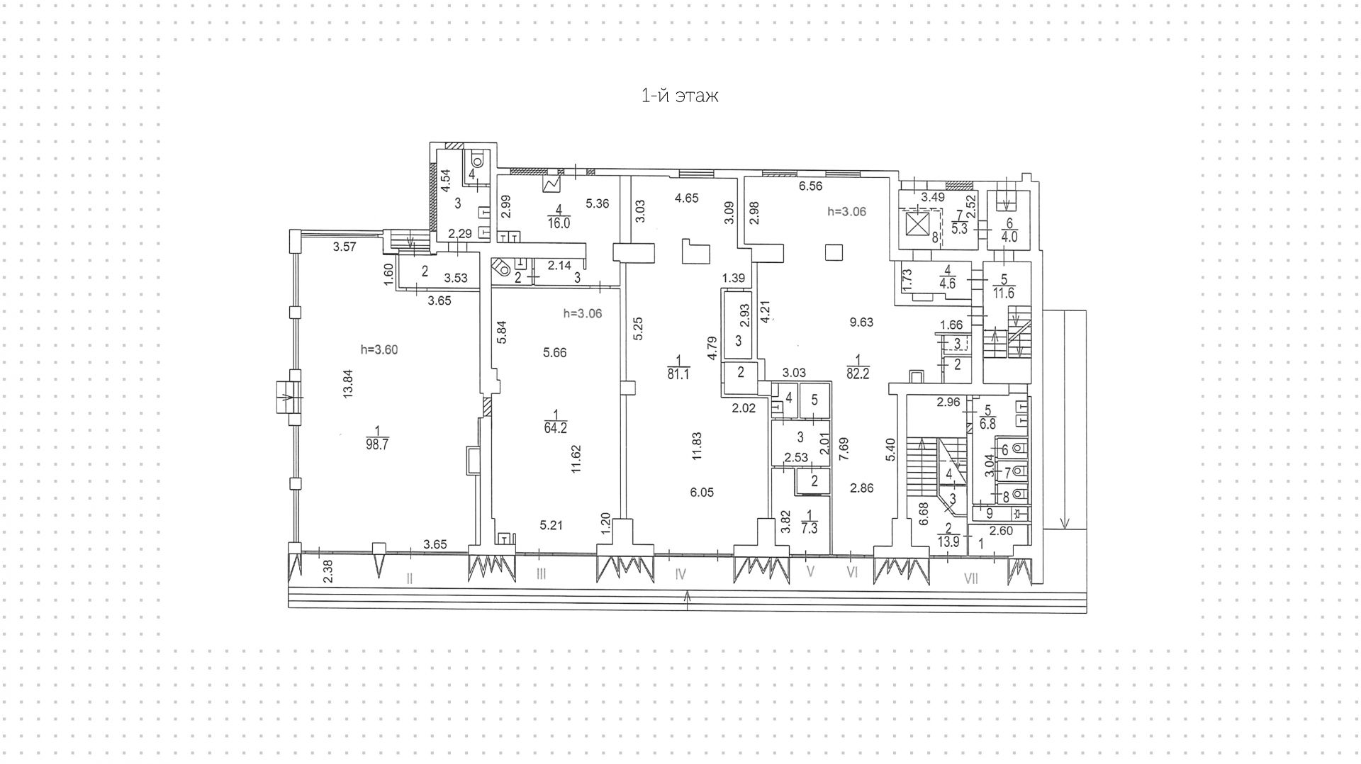
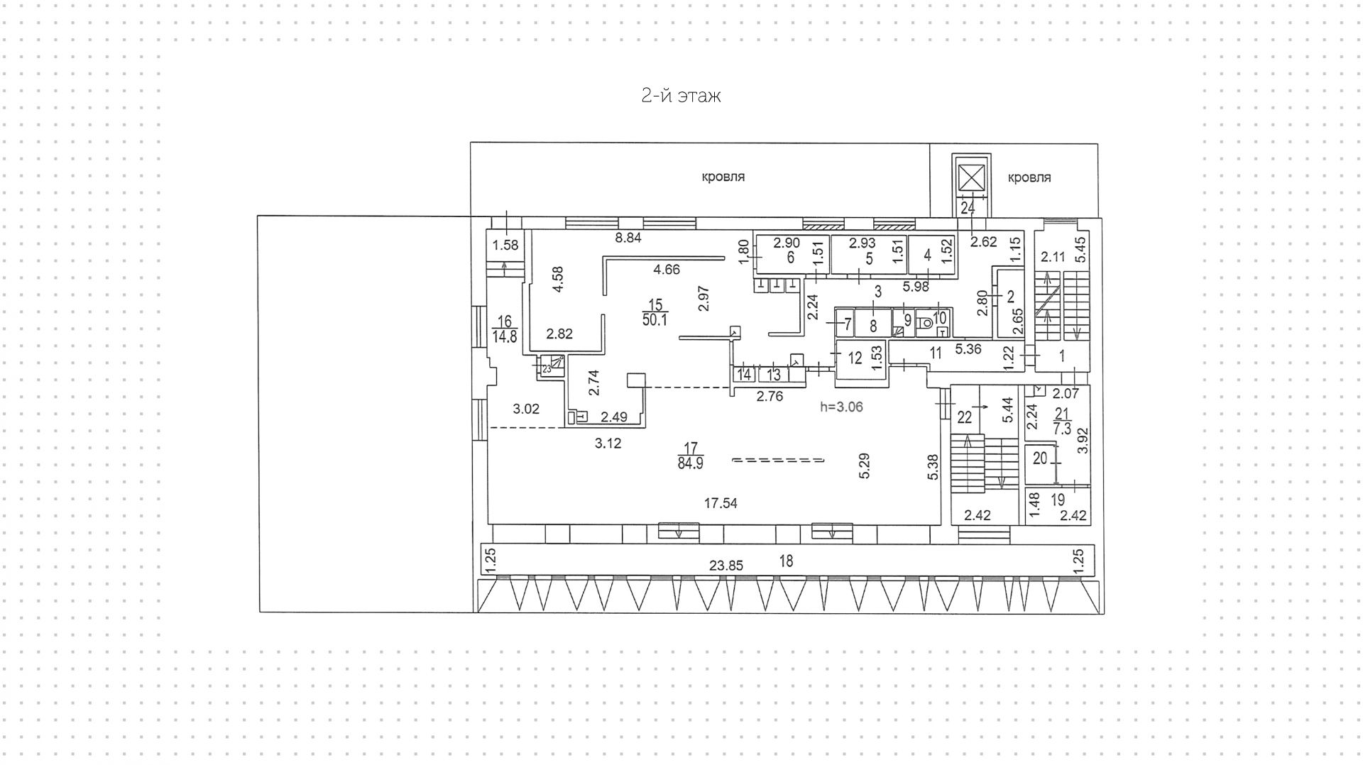
Помещение с комбинированной планировкой площадью 546 м² расположено на первом этаже и в подвале жилого дома. Первый этаж площадью 248 м², подвал — 298 м². Выполнена отделка за выездом арендаторов — банка «Открытие» и кофейни Starbucks. Отдельные входы с улицы и со двора, витринное остекление. Предусмотрены зона разгрузки и возможность размещения рекламы на фасаде. Возле дома находится городская платная парковка.

Продажа

Аренда

505 302 000 ₽

925 000 ₽ за м²

Метро:
Смоленская :
pedestrian  7 минут пешком
Район/округ: Хамовники / ЦАО
Адрес: Смоленская-Сенная площадь, 27с1
Площадь: 546 м²
Назначение: магазин свободное банк салон красоты спортзал бижутерия бизнес парикмахерская сувениры супермаркет
Высота потолков: 3 метра
Отделка: С отделкой
Парковка: рядом городская платная парковка
Электрическая мощность (кВт): 100
Зона разгрузки: Есть
Линия: Первая
Тип входа: Отдельный со двора
Витрины есть
expert

Алина

Брокер лота

Для уточнения и фиксирования цены можно связаться напрямую с брокером

+7 (495) 106-19-99

Расположение на карте

Похожие лоты

Мы включили в наш каталог лучшие предложения по коммерческой недвижимости в Москве.

Новинка
lot-15580
lot-15580
lot-15580
lot-15580
lot-15580
lot-15580
6
Помещение под магазин, 848 м²

Продажа | Лот 43511

Москва Складочная, 6

Коммерческое помещение в Марьиной роще. Объект располагается на 1-й линии домов в развивающимся районе, обеспечен интенсивный автомобильный...

508 800 000 ₽

600 000 ₽ за м²

Новинка
lot-14765
lot-14765
lot-14765
lot-14765
4
Помещение под магазин, 599 м²

Продажа | Лот 31665

Белорусская 10 мин Маяковская 2 мин

Москва 1-я Тверская-Ямская, 10

Площадь: 599 м²

Назначение: Торговое помещение под  магазин бижутерия сувениры

Арендаторы: Магазин пальто Кашемир и другие мелкие арендаторы

Доходность: 6%, 2 361 000 ₽/мес

Окупаемость: 18 лет

Готовый арендный бизнес на 1-й линии 1-й Тверской-Ямской улицы в Тверском районе. Обеспечен интенсивный автомобильный и пешеходный...

510 000 000 ₽

851 000 ₽ за м²

Новинка
lot-14456
lot-14456
lot-14456
lot-14456
lot-14456
lot-14456
lot-14456
lot-14456
lot-14456
lot-14456
10
Помещение под магазин, 1039 м²

Продажа | Лот 10091

Перово 1 мин

Москва Зелёный проспект, 19

Площадь: 1 039 м²

Назначение: Торговое помещение под  магазин банк пекарня кафе фаст-фуд бижутерия сувениры

Двухэтажное здание с цоколем на 1-й линии Зелёного проспекта в Перово. Жилой район, большой поток пешеходного и автомобильного трафика,...

500 000 000 ₽

481 000 ₽ за м²

Новинка
lot-15583
lot-15583
2
Помещение под магазин, 548 м²

Продажа | Лот 43759

Вавиловская 7 мин

Москва Ленинский проспект, 82/2

Коммерческое помещение на 1 линии Ленинского проспекта в Ломоносовском районе. Близость сквера, колледжа и остановки общественного...

230 000 000 ₽

420 000 ₽ за м²

Новинка
lot-15563
lot-15563
lot-15563
lot-15563
lot-15563
lot-15563
6
Помещение под магазин, 549 м²

Аренда | Лот 43514

Деловой центр 1 мин Международная 3 мин

Москва Пресненская набережная, 8с1

Коммерческое помещение в Пресненском районе. Деловой центр «Москва-Сити» обеспечивает интенсивный поток пешеходного трафика. Окружение...

5 750 000 ₽ / месяц

126 000 ₽ за м² / год

Новинка
lot-16213
lot-16213
2
Помещение под магазин, 545 м²

Продажа | Лот 48468

Митино 7 мин

Москва Дубравная, 51с1

Площадь: 545 м²

Назначение: Торговое помещение под  ресторан магазин бижутерия сувениры

Арендаторы: сыроварня

Доходность: 7%, 1 444 000 ₽/мес

Окупаемость: 15 лет

Готовый арендный бизнес на 1 линии Дубравной улицы в Митино. Обеспечен интенсивный автомобильный и пешеходный трафик. Окружение —...

260 000 000 ₽

477 000 ₽ за м²

Позвонить эксперту max whatsapp telegram
Каширская
Академический
ЦАО
Академический