Помещение в Перхушково, 105 м², лот - 11056

Продажа | Лот 11056

Image 0
Image 1
Image 2
Image 3
Image 4
Image 5
Image 6
Image 7
8
Image 0 Image 1 Image 2 Image 3 Image 4 Image 5 Image 6 Image 7
26000000 RUB

26 000 000 ₽

248 000 ₽ за м²

Адрес: Перхушково, микрорайон Равновесие, 6
Площадь: 105 м²
Назначение: магазин супермаркет бижутерия сувениры банк салон красоты спортзал кафе продуктовый магазин парикмахерская продукты
Высота потолков: 4 метра
Отделка: Без отделки
Парковка: бесплатная перед фасадом здания
Электрическая мощность (кВт): 30
Тип входа: Отдельный с улицы
Витрины есть

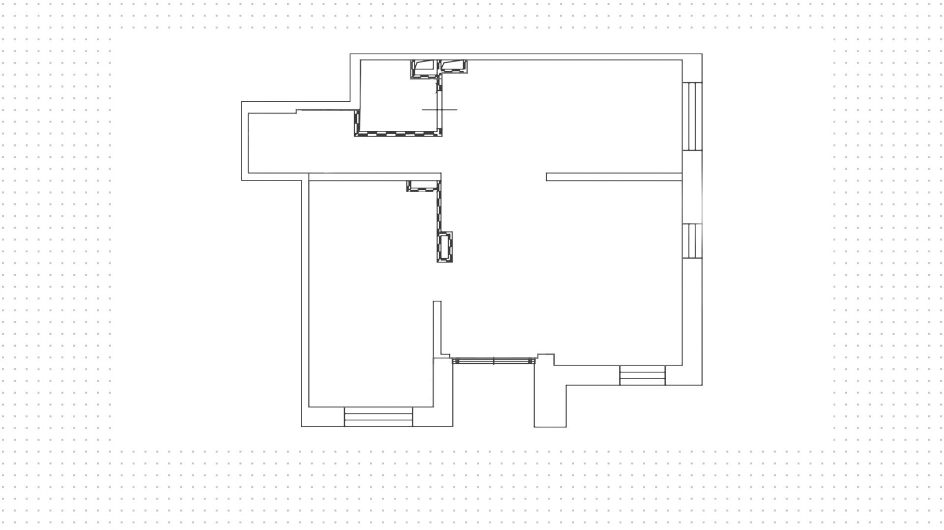
Коммерческое помещение в микрорайоне Равновесие в селе Перхушково. Объект находится у въезда в развивающийся жилой комплекс «Равновесие», большой поток пешеходного и автомобильного трафика. Окружение — супермаркет «Пятёрочка», алкомаркет «Винлаб», пункты выдачи Ozon, Wildberries, магазин «Строительный двор».

Объект с открытой планировкой площадью 105 м² расположен на 1-м этаже жилого дома. Ритейл подойдёт под размещение супермаркета, салона красоты или фитнес-клуба. Электрическая мощность 30 кВт с возможностью увеличения. Предусмотрены отдельный вход с улицы, витринное остекление и место для размещения рекламы на фасаде. Парковка находится перед домом.

При необходимости мы поможем с поиском арендатора для вашего помещения.

26 000 000 ₽

248 000 ₽ за м²

Адрес: Перхушково, микрорайон Равновесие, 6
Площадь: 105 м²
Назначение: магазин супермаркет бижутерия сувениры банк салон красоты спортзал кафе продуктовый магазин парикмахерская продукты
Высота потолков: 4 метра
Отделка: Без отделки
Парковка: бесплатная перед фасадом здания
Электрическая мощность (кВт): 30
Тип входа: Отдельный с улицы
Витрины есть
expert

Алина

Брокер лота

Для уточнения и фиксирования цены можно связаться напрямую с брокером

+7 (495) 106-19-99

Расположение на карте

Похожие лоты

Мы включили в наш каталог лучшие предложения по коммерческой недвижимости в Москве.

Новинка
lot-12124
lot-12124
lot-12124
lot-12124
4
Помещение под продукты, 113 м²

Продажа | Лот 15237

Москва деревня Богданиха, Ленина, с7.4

Площадь: 113 м²

Назначение: Торговое помещение под  магазин супермаркет бижутерия сувениры

Арендаторы: ВкусВилл

Доходность: 12%, 241 000 ₽/мес

Окупаемость: 9 лет

Готовый арендный бизнес в Богданихе. Объект находится в жилом развивающимся комплексе «Богдановский Лес», осуществляется быстрый...

26 000 000 ₽

230 000 ₽ за м²

Выбор эксперта
Новинка
lot-14938
lot-14938
lot-14938
lot-14938
lot-14938
lot-14938
6
Помещение под продукты, 56 м²

Продажа | Лот 15605

Москва Любучанская, с22

Площадь: 56 м²

Назначение: Торговое помещение под  магазин аптека бижутерия сувениры

Арендаторы: Ригла

Доходность: 10%, 197 000 ₽/мес

Окупаемость: 11 лет

Готовый арендный бизнес на первой линии домов в Щербинке. Объект находится в жилом комплексе «Остафьево», на пересечении двух бульваров...

26 000 000 ₽

464 000 ₽ за м²

Новинка
lot-15593
lot-15593
lot-15593
lot-15593
lot-15593
5
Помещение под продукты, 74 м²

Продажа | Лот 16160

Москва село Перхушково, микрорайон Равновесие, 5

Площадь: 74 м²

Назначение: Торговое помещение под  магазин аптека бижутерия сувениры

Арендаторы: аптека Здравсити, водомат «ЖиваяВода»

Доходность: 9%, 181 000 ₽/мес

Окупаемость: 12 лет

Готовый арендный бизнес в микрорайоне Равновесие в селе Перхушково. Объект находится у въезда в жилой комплекс комфорт-класса «Равновесие»...

26 000 000 ₽

351 000 ₽ за м²

Новинка
lot-12142
lot-12142
lot-12142
lot-12142
lot-12142
lot-12142
6
Помещение под продукты, 105 м²

Аренда | Лот 15339

Москва Мустая Карима, 12

Коммерческое помещение на улице Мустая Карима в Даниловском районе. Интенсивный пешеходный и автомобильный трафик, рядом строится...

280 000 ₽ / месяц

32 000 ₽ за м² / год

Новинка
lot-10830
lot-10830
lot-10830
3
Помещение под продукты, 105 м²

Аренда | Лот 12937

Москва Коммунарка, Александры Монаховой, 85с2

Коммерческое помещение на 1-й линии домов в посёлке Коммунарка. Развивающийся район, интенсивный поток пешеходного трафика. Окружение...

470 000 ₽ / месяц

54 000 ₽ за м² / год

Новинка
lot-15520
lot-15520
lot-15520
lot-15520
4
Помещение под продукты, 105 м²

Аренда | Лот 43195

Ботанический сад 9 мин Свиблово 9 мин

Москва проезд Серебрякова, 11с2

Угловое коммерческое помещение в районе Свиблово. Обеспечен интенсивный пешеходный и автомобильный трафик, рядом Капустинский парк....

683 000 ₽ / месяц

78 000 ₽ за м² / год

Позвонить эксперту whatsapp telegram
Каширская
Академический
ЦАО
Академический