Помещение на Волгоградском проспекте 9, 415 м², лот - 6503

Продажа | Лот 6503

Image 0
Image 1
Image 2
Image 3
Image 4
Image 5
Image 6
7
Image 0 Image 1 Image 2 Image 3 Image 4 Image 5 Image 6
969000 RUB

969 000 ₽ в месяц

28 000 ₽ за м² в год

Метро:
Пролетарская :
pedestrian  6 минут пешком
Район/округ: Таганский / ЦАО
Адрес: Волгоградский проспект, 9с1
Площадь: 415 м²
Назначение: магазин свободное супермаркет шоурум спортзал кафе бижутерия бизнес сувениры
Отделка: С отделкой
Парковка: перед фасадом
Электрическая мощность (кВт): 99
Зона разгрузки: Есть
Линия: Первая
Тип входа: Отдельный со двора
Витрины есть

Коммерческое помещение на первой линии Волгоградского проспекта в Таганском районе. Население — 150 000 человек, близость остановки общественного транспорта обеспечивает интенсивный трафик вдоль помещения. Окружение — магазин Togas, супермаркеты «Дикси», «ВкусВилл», ресторан «Якитория». За 6 минут пешком можно дойти до станции метро «Пролетарская».

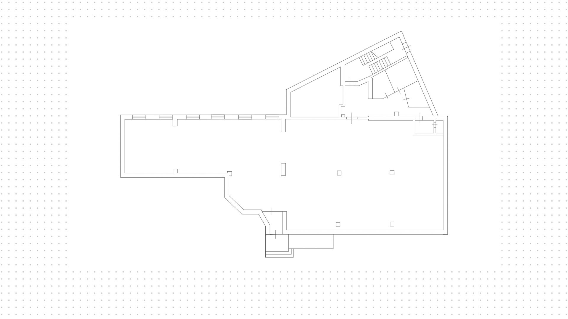
Объект с открытой планировкой площадью 415 м² расположен на 1 этаже во встроенно-пристроенном к жилому дому здании. Выполнена отделка за выездом арендатора — магазина KidMall. Проведены системы приточно-вытяжной вентиляции, кондиционирования, пожарной сигнализации и видеонаблюдения. Отдельные входы с улицы и со двора, витринное остекление. Спланированы зона разгрузки и место для рекламы на фасаде. Парковка находится возле здания.

969 000 ₽ в месяц

28 000 ₽ за м² в год

Метро:
Пролетарская :
pedestrian  6 минут пешком
Район/округ: Таганский / ЦАО
Адрес: Волгоградский проспект, 9с1
Площадь: 415 м²
Назначение: магазин свободное супермаркет шоурум спортзал кафе бижутерия бизнес сувениры
Отделка: С отделкой
Парковка: перед фасадом
Электрическая мощность (кВт): 99
Зона разгрузки: Есть
Линия: Первая
Тип входа: Отдельный со двора
Витрины есть
expert

Руслан

Эксперт проекта

Для уточнения и фиксирования цены можно связаться напрямую с брокером

+7 (495) 106-19-99

Расположение на карте

Похожие лоты

Мы включили в наш каталог лучшие предложения по коммерческой недвижимости в Москве.

Новинка
lot-10397
lot-10397
2
Помещение под сувениры, 32 м²

Продажа | Лот 11970

Москва поселение Сосенское

Площадь: 32 м²

10 210 000 ₽

319 000 ₽ за м²

Новинка
lot-11498
lot-11498
2
Помещение под сувениры, 38 м²

Продажа | Лот 11161

Москва Скотопрогонная, 31А

Площадь: 38 м²

12 573 000 ₽

331 000 ₽ за м²

Новинка
lot-11502
lot-11502
2
Помещение под сувениры, 39 м²

Продажа | Лот 11198

Москва Скотопрогонная, 31А

Площадь: 39 м²

13 002 000 ₽

333 000 ₽ за м²

Новинка
lot-15308
lot-15308
lot-15308
lot-15308
lot-15308
lot-15308
lot-15308
lot-15308
8
Помещение под сувениры, 416 м²

Продажа | Лот 33197

Электрозаводская 4 мин

Москва Малая Семёновская, 6

Одноэтажное здание с подвалом на 1-й линии Барабанного переулка в районе Соколиная Гора. Интенсивный пешеходный и автомобильный трафик....

195 000 000 ₽

469 000 ₽ за м²

Новинка
lot-13830
lot-13830
2
Помещение под сувениры, 416 м²

Продажа | Лот 18029

Фили 19 мин Шелепиха 18 мин

Москва Заречная, 6/1

Площадь: 416 м²

Назначение: Торговое помещение под  офис рабочее место

403 103 000 ₽

969 000 ₽ за м²

Новинка
lot-14818
lot-14818
lot-14818
lot-14818
lot-14818
lot-14818
lot-14818
lot-14818
lot-14818
9
Помещение под сувениры, 411 м²

Продажа | Лот 32059

Щелковская 10 мин

Москва Уральская, 12/21

Площадь: 411 м²

Назначение: Торговое помещение под  магазин аптека алко-маркет бижутерия сувениры

Арендаторы: алкомаркет Бристоль, ветклиника Биовет, аптека Апрель

Доходность: 9%, 652 000 ₽/мес

Окупаемость: 12 лет

Готовый арендный бизнес в Гольяново. Объект располагается на 1-й линии Уральской улицы, обеспечен интенсивный автомобильный и пешеходный...

93 900 000 ₽

228 000 ₽ за м²

Позвонить эксперту max whatsapp telegram
Каширская
Академический
ЦАО
Академический