Помещение на Снежной, 241 м², лот - 32987

Продажа | Лот 32987

Image 0
Image 1
Image 2
Image 3
Image 4
5
Image 0 Image 1 Image 2 Image 3 Image 4
95866650 RUB

95 867 000 ₽

398 000 ₽ за м²

Метро:
Свиблово :
pedestrian  6 минут пешком
Район/округ: Свиблово / СВАО
Адрес: Снежная, 20А
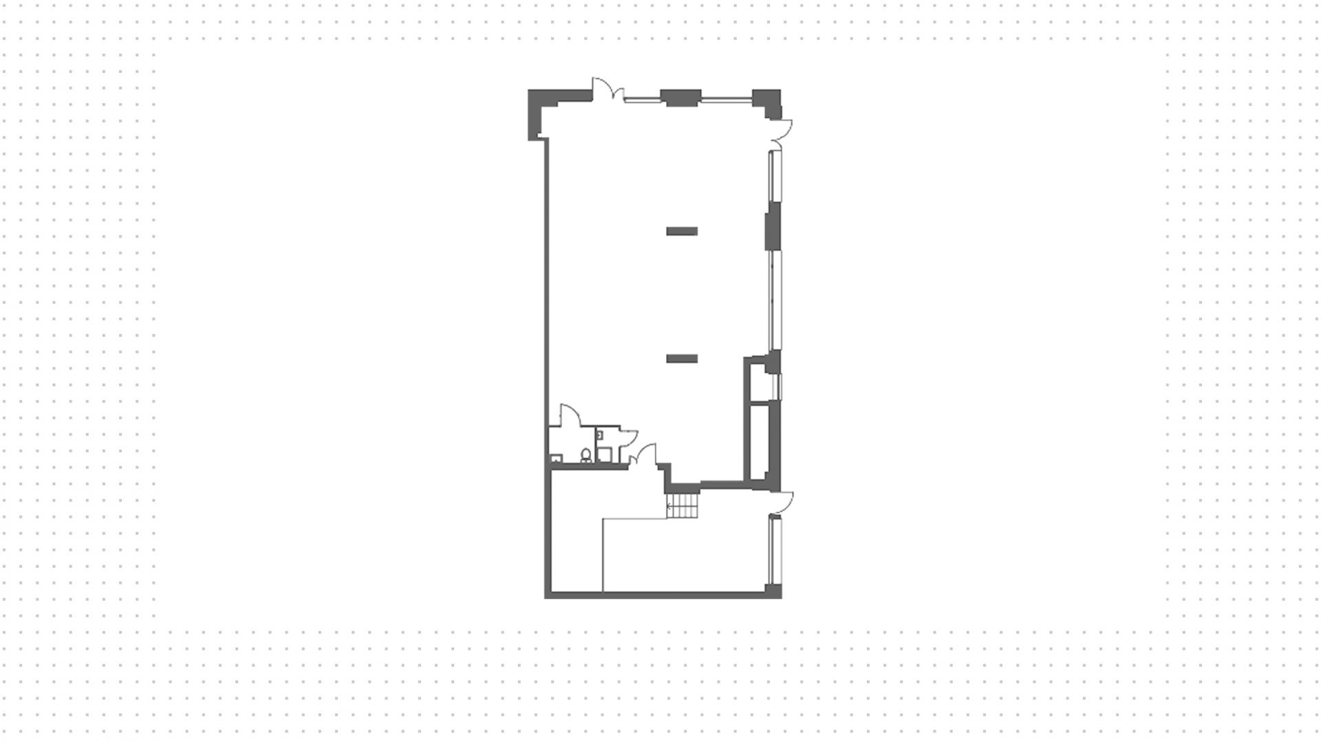
Площадь: 241 м²
Назначение: магазин свободное салон красоты супермаркет спортзал кафе бижутерия бизнес парикмахерская сувениры
Высота потолков: 6 метров
Отделка: Без отделки
Парковка: возле дома, подземная парковка комплекса
Электрическая мощность (кВт): 88
Зона разгрузки: Есть
Тип входа: Отдельный с улицы
Витрины есть

Коммерческое угловое помещение в районе Свиблово. Ритейл находится в жилом комплексе бизнес-класса The Lake на 118 квартир, возле Капустинского парка. Близость остановки общественного транспорта обеспечивает большой пешеходный трафик. Окружение — кинотеатр «Москино Сатурн», ресторан «Шеф-Рояль». За 6 минут можно пешком дойти до станции метро «Свиблово».

Объект с открытой планировкой площадью 241 м² расположен на 1-м этаже в жилом доме. Высота потолков варьируется от 4,5 до 6 метров. Три отдельных входа с улицы с зоной разгрузки, витринное остекление. Организовано место для рекламы на фасаде. В комплексе предусмотрены подземная парковка для жителей и места возле дома.

При необходимости мы поможем с поиском арендатора для вашего помещения.

95 867 000 ₽

398 000 ₽ за м²

Метро:
Свиблово :
pedestrian  6 минут пешком
Район/округ: Свиблово / СВАО
Адрес: Снежная, 20А
Площадь: 241 м²
Назначение: магазин свободное салон красоты супермаркет спортзал кафе бижутерия бизнес парикмахерская сувениры
Высота потолков: 6 метров
Отделка: Без отделки
Парковка: возле дома, подземная парковка комплекса
Электрическая мощность (кВт): 88
Зона разгрузки: Есть
Тип входа: Отдельный с улицы
Витрины есть
expert

Наталья

Эксперт проекта

Для уточнения и фиксирования цены можно связаться напрямую с брокером

+7 (495) 106-19-99

Расположение на карте

Похожие лоты

Мы включили в наш каталог лучшие предложения по коммерческой недвижимости в Москве.

Новинка
lot-15880
lot-15880
lot-15880
lot-15880
4
Помещение под сувениры, 177 м²

Продажа | Лот 46104

Москва Тагильская, 6/5

Коммерческое помещение на первой линии домов в Метрогородке. Развивающийся район, ритейл находится в жилом комплексе «Квартал Метроном»,...

96 478 000 ₽

545 000 ₽ за м²

Новинка
lot-12687
lot-12687
lot-12687
lot-12687
lot-12687
5
Помещение под сувениры, 77 м²

Продажа | Лот 16183

Киевская 6 мин

Москва Брянская, 12

Коммерческое помещение на 1 линии Брянской улицы в Дорогомилово. Интенсивный пешеходный и автомобильный трафик, рядом строятся бизнес-центр,...

96 600 000 ₽

1 255 000 ₽ за м²

Новинка
lot-13781
lot-13781
2
Помещение под сувениры, 160 м²

Продажа | Лот 17794

ЦСКА 5 мин

Москва Ходынский бульвар, 4/1

Площадь: 160 м²

Назначение: Торговое помещение под  офис рабочее место

Офис в комплексе AIR. Офис площадью 160 м² расположен на 4 этаже. Без отделки. Окна: панорамные с солнцезащитными свойствами, в каждом...

95 161 000 ₽

595 000 ₽ за м²

Новинка
lot-12676
lot-12676
lot-12676
lot-12676
lot-12676
lot-12676
lot-12676
lot-12676
8
Помещение под сувениры, 241 м²

Аренда | Лот 16165

Улица 1905 года 6 мин

Москва 1-й Земельный переулок, 1

Коммерческое помещение на 1-й линии 1-го Земельного переулка в Пресненском районе. Большой поток пешеходного и автомобильного трафика,...

1 204 000 ₽ / месяц

60 000 ₽ за м² / год

Новинка
lot-14383
lot-14383
lot-14383
lot-14383
4
Помещение под сувениры, 241 м²

Продажа | Лот 18689

Москва Мисайлово, имени Л.И. Гоман, 3

Площадь: 241 м²

Назначение: Торговое помещение под  магазин бижутерия сувениры

Арендаторы: самокат

Доходность: 10%, 558 000 ₽/мес

Окупаемость: 10 лет

Готовый арендный бизнес в Мисайлово. Жилой развивающийся район, обеспечен интенсивный автомобильный и пешеходный трафик. Окружение...

66 900 000 ₽

278 000 ₽ за м²

lot-1859
lot-1859
lot-1859
lot-1859
lot-1859
lot-1859
6
Готовый арендный бизнес в 6 минутах от метро «Сухаревская»

Продажа | Лот 3556

Сретенский бульвар 5 мин Сухаревская 6 мин

Москва Сретенка, 9

Площадь: 240 м²

Этаж: 1 этаж

Назначение: Торговое помещение под  магазин продуктовый магазин бижутерия продукты сувениры

Арендаторы: магазин «Мясновъ и Отдохни»

Доходность: 8%, 1 548 000 ₽/мес

Окупаемость: 14 лет

Готовый арендный бизнес на 1-й линии улицы Сретенка в Мещанском районе. Большой поток пешеходного и автомобильного трафика. Окружение...

260 000 000 ₽

1 083 000 ₽ за м²

Позвонить эксперту whatsapp telegram
Каширская
Академический
ЦАО
Академический