Арендный бизнес на проспекте Мира, 20 м², лот - 44844

Продажа | Лот 44844

Image 0
Image 1
Image 2
Image 3
Image 4
5
Image 0 Image 1 Image 2 Image 3 Image 4
69000000 RUB

69 000 000 ₽

3 450 000 ₽ за м²

МАП: 490 000 ₽
ГАП: 5 880 000 ₽
Окупаемость:
12 лет
Доходность:
9%
Метро:
Алексеевская :
pedestrian  3 минуты пешком
Район/округ: Останкинский / СВАО
Адрес: проспект Мира, 97
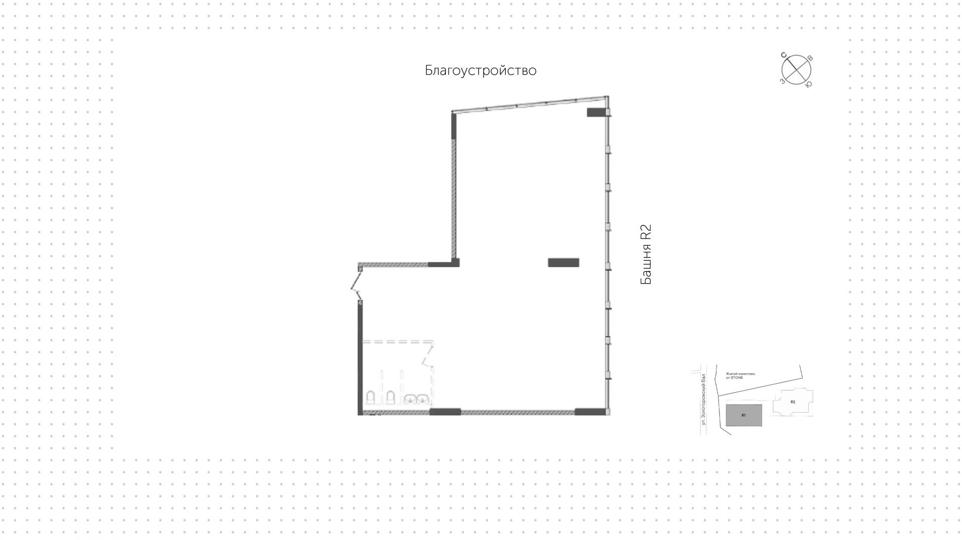
Площадь: 20 м²
Назначение: банк
Высота потолков: 3.7 метра
Отделка: Без отделки
Парковка: городская платная перед зданием
Линия: Первая
Тип входа: Отдельный с улицы
Витрины есть

Готовый арендный бизнес на 1 линии проспекта Мира в Останкинском районе. Интенсивный пешеходный и автомобильный трафик, рядом остановка общественного транспорта. Окружение — кафе «Шоколадница», «ЮниКредит Банк», магазин «Ортека», аптека «Ригла». За 3 минуты можно пешком дойти до станции метро «Алексеевская».

Объект с открытой планировкой площадью 20 м² расположен на 1 этаже в жилом доме. Арендатор — «Фора-Банк». Проведены центральные инженерные коммуникации, высота потолков — 3,7 метра. В помещении с витринным остеклением организован отдельный вход с улицы. Перед зданием находится городская платная парковка.

69 000 000 ₽

3 450 000 ₽ за м²

МАП: 490 000 ₽
ГАП: 5 880 000 ₽
Окупаемость:
12 лет
Доходность:
9%
Метро:
Алексеевская :
pedestrian  3 минуты пешком
Район/округ: Останкинский / СВАО
Адрес: проспект Мира, 97
Площадь: 20 м²
Назначение: банк
Высота потолков: 3.7 метра
Отделка: Без отделки
Парковка: городская платная перед зданием
Линия: Первая
Тип входа: Отдельный с улицы
Витрины есть
expert

Павел

Эксперт

Для уточнения и фиксирования цены можно связаться напрямую с брокером

+7 (495) 106-19-99

Расположение на карте

Назначения
Похожие лоты

Мы включили в наш каталог лучшие предложения по коммерческой недвижимости в Москве.

Новинка
lot-16175
lot-16175
lot-16175
lot-16175
4
Помещение под банк, 46 м²

Продажа | Лот 48032

Краснопресненская 4 мин Улица 1905 года 10 мин

Москва Красная Пресня, 12

Коммерческое помещение на первой линии улицы Красная Пресня в Пресненском районе. Интенсивный пешеходный и автомобильный трафик,...

69 000 000 ₽

1 500 000 ₽ за м²

Новинка
lot-12015
lot-12015
2
Помещение под банк, 140 м²

Продажа | Лот 15045

Москва Введенского, 13В

Площадь: 140 м²

Назначение: Торговое помещение под  магазин бижутерия сувениры пункт выдачи

Арендаторы: ВкусВилл

Доходность: 5%, 288 000 ₽/мес

Окупаемость: 20 лет

Готовый арендный бизнес в Коньково. Остановка общественного транспорта обеспечивает интенсивный трафик вдоль помещения, рядом строится...

69 000 000 ₽

493 000 ₽ за м²

Новинка
lot-15793
lot-15793
lot-15793
3
Помещение под банк, 106 м²

Продажа | Лот 45234

Ботанический сад 9 мин Свиблово 9 мин

Москва проезд Серебрякова, 11с2

Коммерческое помещение в районе Свиблово. Обеспечен интенсивный пешеходный и автомобильный трафик, рядом Капустинский парк. Окружение...

68 900 000 ₽

650 000 ₽ за м²

Новинка
lot-15570
lot-15570
lot-15570
lot-15570
4
Помещение под банк, 20 м²

Аренда | Лот 6008

Китай-город 9 мин

Москва Покровка, 8

Коммерческое помещение на 1 линии улицы Покровка в Басманном районе. Остановка общественного транспорта обеспечивает интенсивный...

312 000 ₽ / месяц

187 000 ₽ за м² / год

Новинка
lot-15281
lot-15281
lot-15281
lot-15281
4
Помещение под банк, 20 м²

Продажа | Лот 41578

Вавиловская 1 мин

Москва Ленинский проспект, 79

Коммерческое помещение в Гагаринском районе. Объект расположен на первой линии Ленинского проспекта, обеспечен интенсивный автомобильный...

36 000 000 ₽

1 800 000 ₽ за м²

Новинка
lot-12641
lot-12641
lot-12641
lot-12641
4
Помещение под банк, 20 м²

Продажа | Лот 16122

Улица 1905 года 5 мин

Москва Звенигородское шоссе, 3Ас1

Площадь: 20 м²

Назначение: Торговое помещение под  кафе общепит

Доходность: 9%, 300 000 ₽/мес

Окупаемость: 11 лет

Готовый арендный бизнес в Пресненском районе. Объект располагается на 1 линии Звенигородского шоссе, что обеспечивает интенсивный...

39 600 000 ₽

1 980 000 ₽ за м²

Позвонить эксперту max whatsapp telegram
Каширская
Академический
ЦАО
Академический