Помещение на Новослободской, 182 м², лот - 18849

Продажа | Лот 18849

Image 0
Image 1
Image 2
Image 3
Image 4
5
Image 0 Image 1 Image 2 Image 3 Image 4

Продажа

Аренда

220900000 RUB

220 900 000 ₽

1 214 000 ₽ за м²

Метро:
Менделеевская :
pedestrian  3 минуты пешком
Новослободская :
pedestrian  3 минуты пешком
Район/округ: Тверской / ЦАО
Адрес: Новослободская, 24с2
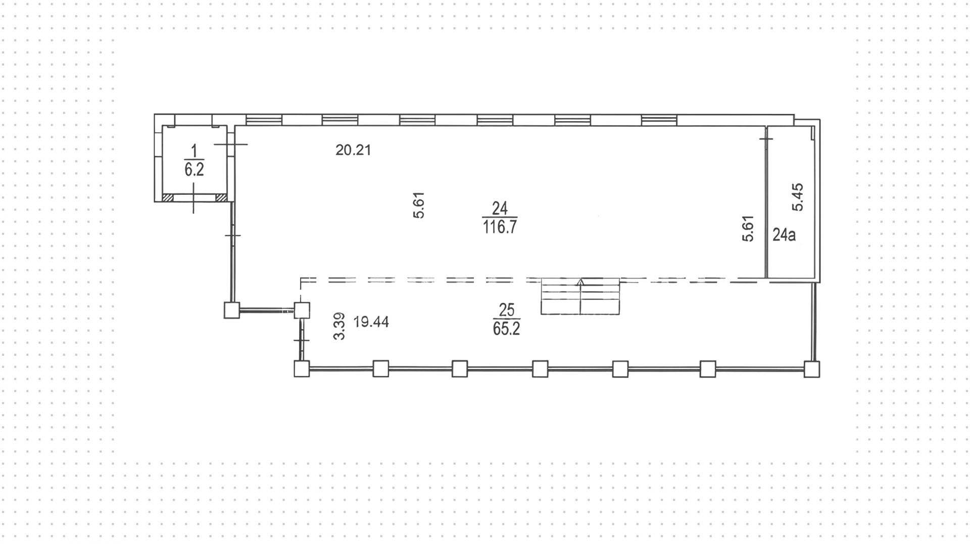
Площадь: 182 м²
Назначение: ресторан магазин свободное салон красоты спортзал кафе общепит бижутерия бизнес парикмахерская сувениры продуктовый магазин продукты
Высота потолков: 7 метров
Отделка: С отделкой
Парковка: бесплатная парковка для резидентов во дворе за шлагбаумом
Электрическая мощность (кВт): 64
Тип входа: Отдельный со двора
Витрины есть

Коммерческое угловое помещение на Новослободской улице в Тверском районе. Обеспечен интенсивный автомобильный и пешеходный трафик. Окружение — магазин одежды Kapsula, кафе Pho City, салон красоты FaceRoom. За 3 минуты пешком можно дойти до станций метро «Менделеевская» и «Новослободская».

Объект с открытой планировкой площадью 182 м² расположен на 1-м этаже с антресолью в жилом комплексе «Реномэ». В помещении выполнена отделка за выездом арендатора, установлена вытяжка. Организованы отдельный вход со двора и витринное остекление. Предусмотрена возможность размещения вывески на фасаде. Во дворе находится парковка для резидентов.

Продажа

Аренда

220 900 000 ₽

1 214 000 ₽ за м²

Метро:
Менделеевская :
pedestrian  3 минуты пешком
Новослободская :
pedestrian  3 минуты пешком
Район/округ: Тверской / ЦАО
Адрес: Новослободская, 24с2
Площадь: 182 м²
Назначение: ресторан магазин свободное салон красоты спортзал кафе общепит бижутерия бизнес парикмахерская сувениры продуктовый магазин продукты
Высота потолков: 7 метров
Отделка: С отделкой
Парковка: бесплатная парковка для резидентов во дворе за шлагбаумом
Электрическая мощность (кВт): 64
Тип входа: Отдельный со двора
Витрины есть
expert

Елена

Эксперт проекта

Для уточнения и фиксирования цены можно связаться напрямую с брокером

+7 (495) 106-19-99

Расположение на карте

Похожие лоты

Мы включили в наш каталог лучшие предложения по коммерческой недвижимости в Москве.

Новинка
lot-15704
lot-15704
2
Помещение под продукты, 430 м²

Продажа | Лот 44772

Москва Нижние Мнёвники, 39/41

Площадь: 430 м²

221 020 000 ₽

514 000 ₽ за м²

Новинка
lot-15691
lot-15691
2
Помещение под продукты, 441 м²

Продажа | Лот 44746

Москва Нижние Мнёвники, 39/41

Площадь: 441 м²

222 264 000 ₽

504 000 ₽ за м²

Новинка
lot-10670
lot-10670
lot-10670
lot-10670
4
Помещение под продукты, 433 м²

Продажа | Лот 12774

Москва Варшавское шоссе, 284с3

Площадь: 433 м²

Назначение: Торговое помещение под  магазин супермаркет бижутерия сувениры

Арендаторы: супермаркет «Пятёрочка»

Доходность: 9%, 1 533 000 ₽/мес

Окупаемость: 12 лет

Готовый арендный бизнес в Южном Бутово. Развивающийся район, объект находится у центрального бульвара, обеспечен интенсивный пешеходный...

220 800 000 ₽

510 000 ₽ за м²

Новинка
lot-15091
lot-15091
lot-15091
lot-15091
4
Помещение под продукты, 182 м²

Аренда | Лот 38937

Рязанский проспект 9 мин

Москва Академика Скрябина, 9к2с9

Коммерческое помещение на первой линии улицы Академика Скрябина в районе Выхино-Жулебино. Большой поток пешеходного и автомобильного...

400 000 ₽ / месяц

26 000 ₽ за м² / год

Новинка
lot-15427
lot-15427
lot-15427
lot-15427
lot-15427
lot-15427
6
Помещение под продукты, 182 м²

Продажа | Лот 42782

Москва Суздальская, 12с4

Площадь: 182 м²

Назначение: Торговое помещение под  клиника магазин бижутерия сувениры офис рабочее место

Арендаторы: мед центр

Доходность: 10%, 308 000 ₽/мес

Окупаемость: 10 лет

Готовый арендный бизнес на первой линии Суздальского проезда в Новокосино. Жилой район, близость остановки общественного транспорта...

37 000 000 ₽

203 000 ₽ за м²

Новинка
lot-13211
lot-13211
2
Помещение под продукты, 182 м²

Продажа | Лот 14734

ЦСКА 5 мин

Москва Ходынский бульвар

Площадь: 182 м²

Назначение: Торговое помещение под  офис рабочее место

110 723 000 ₽

608 000 ₽ за м²

Позвонить эксперту whatsapp telegram
Каширская
Академический
ЦАО
Академический