Арендный бизнес на Лобненской, 409 м², лот - 40786

Продажа | Лот 40786

Image 0
Image 1
Image 2
3
Image 0 Image 1 Image 2
94915169 RUB

94 915 000 ₽

232 000 ₽ за м²

Арендаторы: Янлекс Лавка
МАП: 989 000 ₽
ГАП: 11 866 000 ₽
Окупаемость:
8 лет
Доходность:
13%
Район/округ: Дмитровский / САО
Адрес: Лобненская, 14
Площадь: 409 м²
Назначение: магазин бижутерия сувениры
Высота потолков: 5 метров
Отделка: С отделкой
Парковка: перед фасадом на 22 места
Зона разгрузки: Есть
Линия: Первая
Тип входа: Отдельный с улицы
Витрины есть

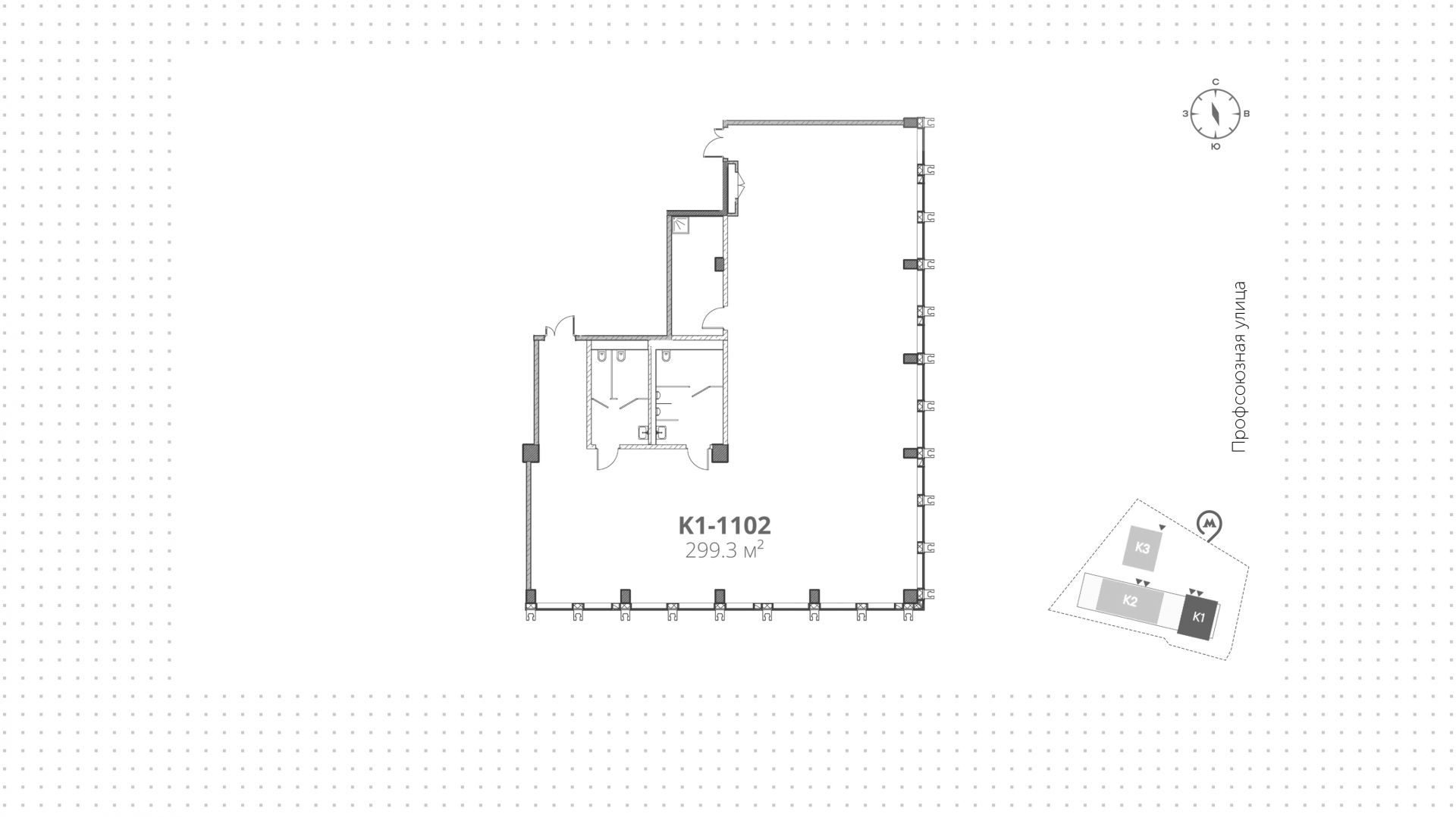
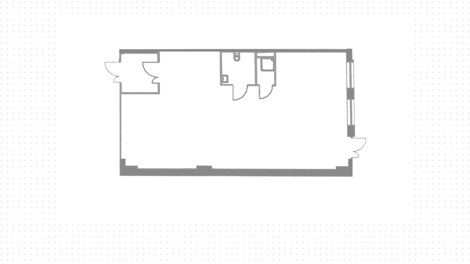
Готовый арендный бизнес на первой линии Лобненской улицы в Дмитровском районе. Большой поток пешеходного и автомобильного трафика, рядом остановка общественного транспорта и детские сады. Окружение — пиццерия «Папа Джонс», супермаркеты «Пятёрочка», «Магнит», пункты выдачи Wildberries и OZON, аптека «Горздрав».

Объект с открытой планировкой площадью 409 м² расположен на первом этаже в торговом центре «Зодиак». Арендатор — даркстор «Яндекс.Лавка». В помещении проведены центральные коммуникации. Два отдельных входа с улицы и один со стороны торговой зоны, предусмотрены зона разгрузки и место для рекламы на фасаде. Возле здания находится парковка на двадцать два места.

94 915 000 ₽

232 000 ₽ за м²

Арендаторы: Янлекс Лавка
МАП: 989 000 ₽
ГАП: 11 866 000 ₽
Окупаемость:
8 лет
Доходность:
13%
Район/округ: Дмитровский / САО
Адрес: Лобненская, 14
Площадь: 409 м²
Назначение: магазин бижутерия сувениры
Высота потолков: 5 метров
Отделка: С отделкой
Парковка: перед фасадом на 22 места
Зона разгрузки: Есть
Линия: Первая
Тип входа: Отдельный с улицы
Витрины есть
expert

Александр

Эксперт проекта

Для уточнения и фиксирования цены можно связаться напрямую с брокером

+7 (495) 106-19-99

Расположение на карте

Назначения
Похожие лоты

Мы включили в наш каталог лучшие предложения по коммерческой недвижимости в Москве.

Новинка
lot-14421
lot-14421
lot-14421
lot-14421
4
Помещение под сувениры, 194 м²

Продажа | Лот 13962

Москва поселение Мосрентген, квартал № 2, 5с1

Коммерческое помещение в поселении Мосрентген. Жилой развивающийся район, рядом прогулочная зона, деревня Дудкино с дачными товариществами,...

95 000 000 ₽

490 000 ₽ за м²

Новинка
lot-14267
lot-14267
lot-14267
3
Помещение под сувениры, 321 м²

Продажа | Лот 19100

Москва Вертолётчиков, 21с5

Площадь: 321 м²

Назначение: Торговое помещение под  магазин супермаркет бижутерия сувениры

Арендаторы: супермаркет «дикси»

Доходность: 6%, 495 000 ₽/мес

Окупаемость: 16 лет

Готовый арендный бизнес в Некрасовке. Жилой развивающийся район, обеспечен интенсивный автомобильный и пешеходный трафик. Окружение...

95 000 000 ₽

296 000 ₽ за м²

Новинка
lot-13934
lot-13934
lot-13934
lot-13934
lot-13934
lot-13934
6
Помещение под сувениры, 239 м²

Продажа | Лот 18219

Проспект мира 7 мин Рижская 7 мин

Москва Банный переулок, 2с2

Площадь: 239 м²

Назначение: Торговое помещение под  магазин бижутерия сувениры

Арендаторы: Самокат

Доходность: 9%, 717 000 ₽/мес

Окупаемость: 11 лет

Готовый арендный бизнес в Банном переулке в Мещанском районе. Вдоль проспекта Мира обеспечен интенсивный пешеходный и автомобильный...

94 700 000 ₽

396 000 ₽ за м²

Новинка
lot-14819
lot-14819
2
Помещение под сувениры, 409 м²

Продажа | Лот 31993

Москва Мытищи, 1-й Стрелковый переулок, с5

Площадь: 409 м²

Назначение: Торговое помещение под  магазин супермаркет бижутерия сувениры

Арендаторы: Пятерочка

Доходность: 11%, 1 125 000 ₽/мес

Окупаемость: 10 лет

Готовый арендный бизнес в Мытищах. Развивающийся жилой район, близость детского сада и прогулочного бульвара обеспечивает интенсивный...

135 000 000 ₽

330 000 ₽ за м²

Новинка
lot-14411
lot-14411
lot-14411
3
Помещение под сувениры, 409 м²

Продажа | Лот 19379

Москва посёлок Боброво, Новое шоссе, 24

Площадь: 409 м²

Назначение: Торговое помещение под  магазин супермаркет бижутерия сувениры

Арендаторы: МАП - 918 680 ДДА 10 лет 6% от ТО Индексация 2%

Доходность: 11%, 1 167 000 ₽/мес

Окупаемость: 10 лет

Готовый арендный бизнес в Боброво. Жилой развивающийся район, обеспечен интенсивный автомобильный и пешеходный трафик. Окружение...

140 000 000 ₽

342 000 ₽ за м²

Новинка
lot-15730
lot-15730
lot-15730
lot-15730
4
Помещение под сувениры, 408 м²

Продажа | Лот 44833

Москва-Товарная 6 мин Площадь Ильича 9 мин Римская 9 мин

Москва Международная, 38

Площадь: 408 м²

Назначение: Торговое помещение под  магазин супермаркет бижутерия сувениры

Арендаторы: пятерочка

Доходность: 10%, 1 458 000 ₽/мес

Окупаемость: 10 лет

Готовый арендный бизнес на первой линии Международной улицы в Таганском районе. В радиусе 1 км проживает более 45 000 человек. Объект...

175 000 000 ₽

429 000 ₽ за м²

Позвонить эксперту whatsapp telegram
Каширская
Академический
ЦАО
Академический