Арендный бизнес на Ленинском проспекте, 454 м², лот - 49095

Продажа | Лот 49095

Image 0
Image 1
Image 2
3
Image 0 Image 1 Image 2
145000000 RUB

145 000 000 ₽

319 000 ₽ за м²

Арендаторы: магнолия
МАП: 1 250 000 ₽
ГАП: 15 000 000 ₽
Окупаемость:
10 лет
Доходность:
10%
Метро:
Вавиловская :
pedestrian  9 минут пешком
Район/округ: Ломоносовский / ЮЗАО
Адрес: Ленинский проспект, 87
Площадь: 454 м²
Назначение: магазин супермаркет бижутерия сувениры
Высота потолков: 2.7 метра
Отделка: С отделкой
Парковка: городская платная перед фасадом
Электрическая мощность (кВт): 60
Зона разгрузки: Есть
Линия: Первая
Тип входа: Отдельный со двора
Витрины есть

Готовый арендный бизнес на первой линии улицы Гарибальди в Ломоносовском районе. Интенсивный пешеходный и автомобильный трафик, рядом остановка общественного транспорта и подземный переход. Окружение — магазин «Рыбная мануфактура № 1», ресторан «Наполеон», химчистка Nikko, аптека «Горздрав». За 9 минут можно пешком дойти до станции метро «Вавиловская».

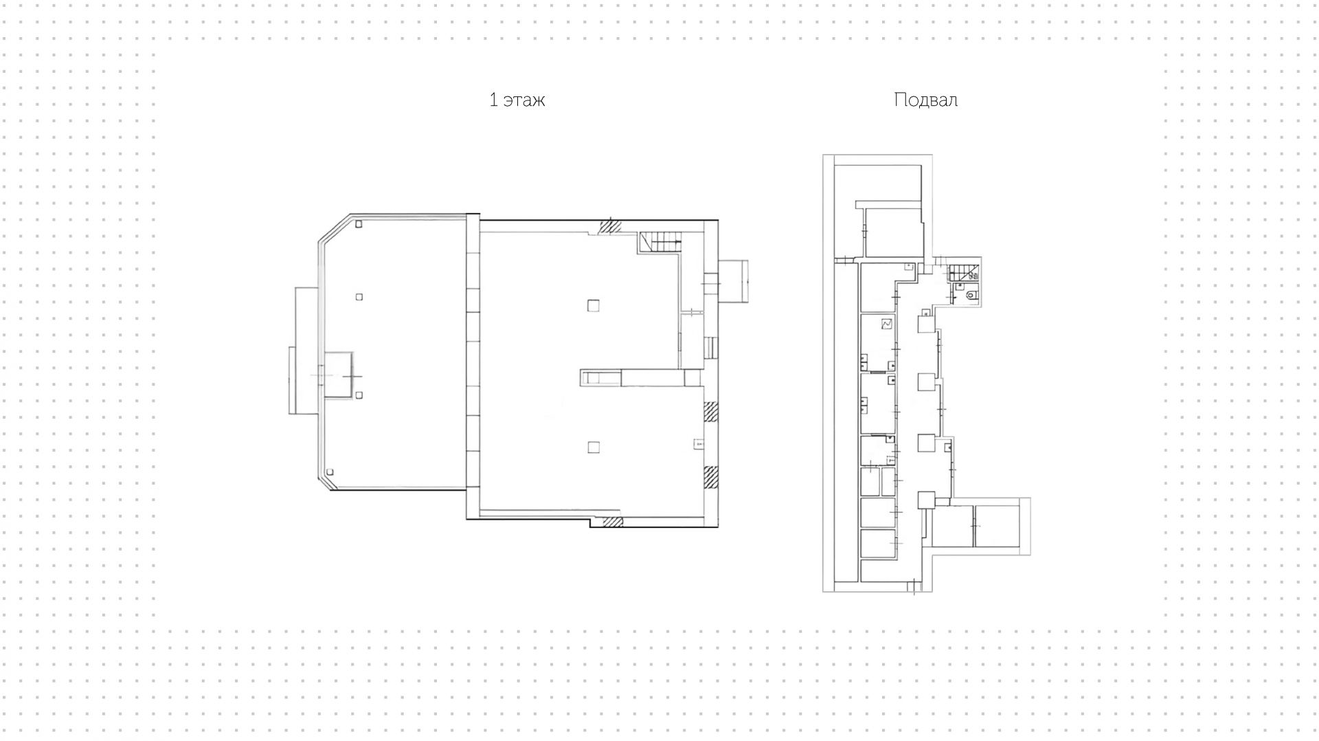
Помещение с комбинированный планировкой площадью 454 м² расположено на первом этаже и в подвале в жилом доме. Первый этаж площадью 249 м² и подвал — 205 м² занимает супермаркет «Магнолия». Высота потолков варьируется от 2,4 до 2,7 метров. Отдельный вход с улицы и со двора, витринное остекление. Предусмотрены зона разгрузки и место для рекламы на фасаде. У дома организована городская платная парковка.

145 000 000 ₽

319 000 ₽ за м²

Арендаторы: магнолия
МАП: 1 250 000 ₽
ГАП: 15 000 000 ₽
Окупаемость:
10 лет
Доходность:
10%
Метро:
Вавиловская :
pedestrian  9 минут пешком
Район/округ: Ломоносовский / ЮЗАО
Адрес: Ленинский проспект, 87
Площадь: 454 м²
Назначение: магазин супермаркет бижутерия сувениры
Высота потолков: 2.7 метра
Отделка: С отделкой
Парковка: городская платная перед фасадом
Электрическая мощность (кВт): 60
Зона разгрузки: Есть
Линия: Первая
Тип входа: Отдельный со двора
Витрины есть
expert

Александр

Эксперт проекта

Для уточнения и фиксирования цены можно связаться напрямую с брокером

+7 (495) 106-19-99

Расположение на карте

Назначения
Похожие лоты

Мы включили в наш каталог лучшие предложения по коммерческой недвижимости в Москве.

Новинка
lot-12950
lot-12950
lot-12950
3
Помещение под сувениры, 359 м²

Продажа | Лот 17021

Москва Алхимовская, с1

Площадь: 359 м²

Назначение: Торговое помещение под  магазин супермаркет бижутерия сувениры

Арендаторы: Сеть супермаркетов «Пятерочка»

Доходность: 11%, 1 343 000 ₽/мес

Окупаемость: 9 лет

Готовый арендный бизнес в Щербинке. Развивающийся район, рядом строится жилой комплекс «Алхимово», близость детского сада обеспечивает...

145 000 000 ₽

404 000 ₽ за м²

Новинка
lot-16113
lot-16113
lot-16113
3
Помещение под сувениры, 163 м²

Продажа | Лот 10207

Москва Академика Волгина, 2

Коммерческое помещение на 1 линии улицы Академика Волгина в Обручевском районе. Большой поток пешеходного и автомобильного трафика,...

145 000 000 ₽

890 000 ₽ за м²

Новинка
lot-16155
lot-16155
2
Помещение под сувениры, 458 м²

Продажа | Лот 47921

Москва Подольск, Садовая, 14

Площадь: 458 м²

Назначение: Торговое помещение под  магазин супермаркет бижутерия сувениры

Арендаторы: Пятерочка

Доходность: 9%, 1 098 000 ₽/мес

Окупаемость: 11 лет

Готовый арендный бизнес на Садовой улице в городе Подольск. Жилой развивающийся район, обеспечен большой пешеходный трафик. Окружение...

145 000 000 ₽

317 000 ₽ за м²

Новинка
lot-15595
lot-15595
lot-15595
lot-15595
lot-15595
lot-15595
6
Помещение под сувениры, 454 м²

Продажа | Лот 43895

Москва Шелепихинская набережная, 34к1с4

Коммерческое помещение на 1 линии Шелепихинской набережной в районе Хорошёво-Мнёвники. Интенсивный поток пешеходного трафика, рядом...

227 200 000 ₽

500 000 ₽ за м²

Новинка
lot-13767
lot-13767
2
Помещение под сувениры, 454 м²

Продажа | Лот 14533

Терехово 7 мин

Москва Нижние Мнёвники, 39/41

Площадь: 454 м²

Назначение: Торговое помещение под  офис рабочее место

Офис в комплексе STONE Мневники. Офис площадью 829 м² расположен на 4 этаже из 12, без отделки. Окна: панорамные. Вид из окон: улица нижние...

399 578 000 ₽

880 000 ₽ за м²

Новинка
lot-14130
lot-14130
lot-14130
lot-14130
lot-14130
5
Помещение под сувениры, 452 м²

Продажа | Лот 11211

Москва село Ям, Мезенцева, 22

Площадь: 452 м²

Назначение: Торговое помещение под  магазин супермаркет бижутерия сувениры

Арендаторы: супермаркет «Магнит»

Доходность: 9%, 1 146 000 ₽/мес

Окупаемость: 12 лет

Готовый арендный бизнес на улице Мезенцева в селе Ям. Ритейл находится в жилом комплексе комфорт-класса «Прибрежный Парк», в проекте...

165 000 000 ₽

365 000 ₽ за м²

Вы уже смотрели
Посмотреть все лоты
Позвонить эксперту max whatsapp telegram
Каширская
Академический
ЦАО
Академический