Арендный бизнес на Клязьминской, 252 м², лот - 42062

Продажа | Лот 42062

Image 0
Image 1
2
Image 0 Image 1
100000000 RUB

100 000 000 ₽

397 000 ₽ за м²

Арендаторы: Улыбка радуги мелодия здоровья
МАП: 800 000 ₽
ГАП: 9 600 000 ₽
Окупаемость:
11 лет
Доходность:
10%
Район/округ: Дмитровский / САО
Адрес: Клязьминская, 9с2
Площадь: 252 м²
Назначение: магазин аптека бижутерия сувениры
Высота потолков: 5 метров
Отделка: Без отделки
Парковка: перед фасадом
Электрическая мощность (кВт): 150
Зона разгрузки: Есть
Тип входа: Отдельный со двора
Витрины есть

Готовый арендный бизнес на Клязьминской улице в Дмитровском районе. Большой поток пешеходного и автомобильного трафика, рядом школа и остановка общественного транспорта. Окружение — супермаркет «Пятёрочка», магазин Fix Price, сауна «Клязьма», кафе «Чайхана» и «Хазри».

Помещение с открытой планировкой площадью 252 м² расположено на первом этаже во встроенно-пристроенном к жилому дому здании. Арендаторы — аптека «Мелодия здоровья», магазин косметики «Улыбка радуги», магазины табака и цветов. Отдельный вход с улицы и со двора, витринное остекление. Предусмотрены зона разгрузки и место для рекламы на фасаде. У здания организована парковка.

100 000 000 ₽

397 000 ₽ за м²

Арендаторы: Улыбка радуги мелодия здоровья
МАП: 800 000 ₽
ГАП: 9 600 000 ₽
Окупаемость:
11 лет
Доходность:
10%
Район/округ: Дмитровский / САО
Адрес: Клязьминская, 9с2
Площадь: 252 м²
Назначение: магазин аптека бижутерия сувениры
Высота потолков: 5 метров
Отделка: Без отделки
Парковка: перед фасадом
Электрическая мощность (кВт): 150
Зона разгрузки: Есть
Тип входа: Отдельный со двора
Витрины есть
expert

Евгений

Эксперт проекта

Для уточнения и фиксирования цены можно связаться напрямую с брокером

+7 (495) 106-19-99

Расположение на карте

Похожие лоты

Мы включили в наш каталог лучшие предложения по коммерческой недвижимости в Москве.

Новинка
lot-14813
lot-14813
lot-14813
lot-14813
4
Помещение под сувениры, 50 м²

Продажа | Лот 32055

Курская 2 мин Чкаловская 5 мин

Москва Земляной Вал, 25

Коммерческое помещение в Басманном районе. Объект расположен на первой линии Садового кольца, обеспечен интенсивный автомобильный...

100 000 000 ₽

2 000 000 ₽ за м²

Новинка
lot-15576
lot-15576
lot-15576
3
Помещение под сувениры, 181 м²

Продажа | Лот 43469

Бутырская 8 мин

Москва Добролюбова, 8с1

Площадь: 181 м²

Назначение: Торговое помещение под  магазин продуктовый магазин бижутерия продукты сувениры

Арендаторы: продуктовый магазин "На лету"

Доходность: 11%, 833 000 ₽/мес

Окупаемость: 10 лет

Готовый арендный бизнес на 1 линии улицы Добролюбова в Бутырском районе. Жилой развивающийся район, обеспечен интенсивный автомобильный...

100 000 000 ₽

552 000 ₽ за м²

Новинка
lot-15883
lot-15883
lot-15883
lot-15883
lot-15883
lot-15883
lot-15883
7
Помещение под сувениры, 240 м²

Продажа | Лот 46096

Парк Победы 1 мин Парк Победы 1 мин Поклонная 9 мин

Москва Площадь Победы, 2с2

Площадь: 240 м²

Назначение: Торговое помещение под  магазин салон красоты алко-маркет бижутерия парикмахерская сувениры

Арендаторы: винлаб, салон красоты

Доходность: 7%, 556 000 ₽/мес

Окупаемость: 15 лет

Готовый арендный бизнес на 1 линии домов в районе Дорогомилово. Обеспечен интенсивный автомобильный и пешеходный трафик. Окружение...

100 000 000 ₽

417 000 ₽ за м²

Новинка
lot-13190
lot-13190
lot-13190
lot-13190
lot-13190
lot-13190
lot-13190
lot-13190
lot-13190
9
Помещение под сувениры, 252 м²

Продажа | Лот 5304

Селигерская 7 мин

Москва Ильменский проезд, 17с4

Площадь: 252 м²

Назначение: Торговое помещение под  магазин пекарня салон красоты бижутерия парикмахерская сувениры

Арендаторы: пекарня French Bakery и салон тайского массажа

Доходность: 7%, 667 000 ₽/мес

Окупаемость: 15 лет

Готовый арендный бизнес на 1-й линии Ильменского проезда в Западном Дегунино. Развивающийся район, рядом строятся жилые комплексы...

120 000 000 ₽

476 000 ₽ за м²

Новинка
lot-15639
lot-15639
2
Помещение под сувениры, 252 м²

Продажа | Лот 16138

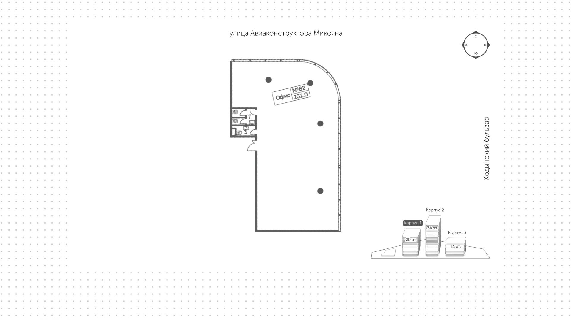
Москва Ходынский бульвар

Площадь: 252 м²

143 640 000 ₽

570 000 ₽ за м²

Новинка
lot-15707
lot-15707
2
Помещение под сувениры, 251 м²

Продажа | Лот 44778

Москва Нижние Мнёвники, 39/41

Площадь: 251 м²

128 763 000 ₽

513 000 ₽ за м²

Позвонить эксперту whatsapp telegram
Каширская
Академический
ЦАО
Академический