Арендный бизнес на Кастанаевской, 109 м², лот - 14028

Продажа | Лот 14028

Image 0
Image 1
Image 2
Image 3
Image 4
5
Image 0 Image 1 Image 2 Image 3 Image 4
40000000 RUB

40 000 000 ₽

367 000 ₽ за м²

МАП: 350 000 ₽
ГАП: 4 200 000 ₽
Окупаемость:
10 лет
Доходность:
11%
Метро:
Кунцевская :
pedestrian  7 минут пешком
Район/округ: Фили-Давыдково / ЗАО
Адрес: Кастанаевская, 65
Площадь: 109 м²
Назначение: магазин бижутерия сувениры пункт выдачи
Высота потолков: 4.5 метра
Отделка: С отделкой
Парковка: перед фасадом здания
Электрическая мощность (кВт): 22
Зона разгрузки: Есть
Линия: Первая
Тип входа: Отдельный с улицы
Витрины есть

Готовый арендный бизнес на 1-й линии Кастанаевской улицы в районе Фили-Давыдково. Интенсивный поток пешеходного трафика, рядом жилой комплекс Shome. Окружение — алкомаркеты «Бристоль» и «Винлаб», кофейня «Love Раф», салон красоты «Её дела». За 7 минут пешком можно дойти до станции метро «Кунцевская».

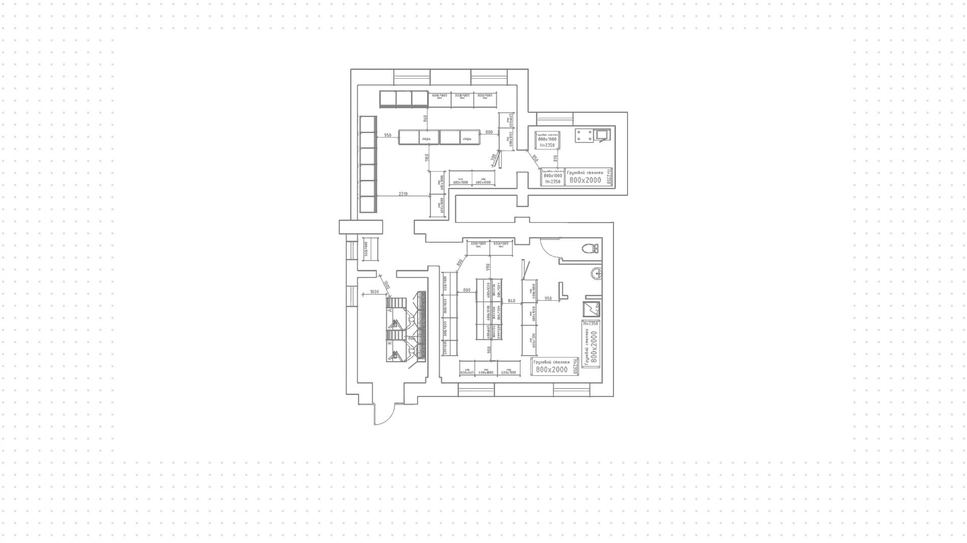
Угловой объект с открытой планировкой площадью 109 м² расположен на 1-м этаже в жилом доме. Помещение занимает пункт выдачи Wildberries. Предусмотрены два отдельных входа с улицы и витринное остекление. Спланированы зона разгрузки и место для рекламы на фасаде. Бесплатная парковка находится перед домом.

40 000 000 ₽

367 000 ₽ за м²

МАП: 350 000 ₽
ГАП: 4 200 000 ₽
Окупаемость:
10 лет
Доходность:
11%
Метро:
Кунцевская :
pedestrian  7 минут пешком
Район/округ: Фили-Давыдково / ЗАО
Адрес: Кастанаевская, 65
Площадь: 109 м²
Назначение: магазин бижутерия сувениры пункт выдачи
Высота потолков: 4.5 метра
Отделка: С отделкой
Парковка: перед фасадом здания
Электрическая мощность (кВт): 22
Зона разгрузки: Есть
Линия: Первая
Тип входа: Отдельный с улицы
Витрины есть
expert

Елена

Эксперт проекта

Для уточнения и фиксирования цены можно связаться напрямую с брокером

+7 (495) 106-19-99

Расположение на карте

Назначения
Похожие лоты

Мы включили в наш каталог лучшие предложения по коммерческой недвижимости в Москве.

Новинка
lot-7706
lot-7706
lot-7706
3
Помещение с арендаторами «Винлаб» и Wildberries в Мытищах

Продажа | Лот 9256

Москва Мытищи, Новомытищинский проспект, 26

Площадь: 222 м²

Назначение: Торговое помещение под  магазин пункт выдачи алко-маркет бижутерия сувениры

Арендаторы: алкомаркет «Винлаб», пункт выдачи Wildberries

Доходность: 9%, 278 000 ₽/мес

Окупаемость: 12 лет

Готовый арендный бизнес на 1-й линии Новомытищинского проспекта в центре города Мытищи. Жилой район, большой поток пешеходного и автомобильного...

40 000 000 ₽

180 000 ₽ за м²

Новинка
lot-14688
lot-14688
2
Помещение под пункт выдачи, 148 м²

Продажа | Лот 30657

Водный стадион 10 мин

Москва Конаковский проезд, 4с2

Площадь: 148 м²

Назначение: Торговое помещение под  магазин пункт выдачи бижутерия сувениры

Арендаторы: мульти пвз wildberries, ozon, яндекс

Доходность: 9%, 278 000 ₽/мес

Окупаемость: 12 лет

40 000 000 ₽

270 000 ₽ за м²

Новинка
lot-10451
lot-10451
lot-10451
lot-10451
lot-10451
lot-10451
lot-10451
lot-10451
lot-10451
lot-10451
lot-10451
lot-10451
lot-10451
lot-10451
lot-10451
lot-10451
lot-10451
17
Помещение под пункт выдачи, 123 м²

Продажа | Лот 12570

Москва Изумрудная, 34

Площадь: 123 м²

Назначение: Торговое помещение под  магазин бижутерия сувениры пункт выдачи

Доходность: 6%, 208 000 ₽/мес

Окупаемость: 16 лет

Коммерческое помещение на 1-й линии Изумрудной улицы в Лосиноостровском районе. Интенсивный поток пешеходного и автомобильного трафика....

40 000 000 ₽

325 000 ₽ за м²

Новинка
lot-14901
lot-14901
2
Помещение под пункт выдачи, 109 м²

Аренда | Лот 33696

Черкизовская 7 мин

Москва Амурская, 1/2/3

Коммерческое помещение в Гольяново. Жилой развивающийся район, обеспечен интенсивный автомобильный и пешеходный трафик. Окружение...

399 000 ₽ / месяц

44 000 ₽ за м² / год

Новинка
lot-14865
lot-14865
lot-14865
lot-14865
lot-14865
lot-14865
lot-14865
lot-14865
lot-14865
lot-14865
lot-14865
lot-14865
12
Помещение под пункт выдачи, 109 м²

Аренда | Лот 12164

Москва проспект Генерала Дорохова, 39с1

Коммерческое угловое помещение на проспекте Генерала Дорохова в Фили-Давыдково. Развивающийся район, рядом строится жилой комплекс...

480 000 ₽ / месяц

53 000 ₽ за м² / год

Новинка
lot-11217
lot-11217
lot-11217
lot-11217
4
Помещение под пункт выдачи, 109 м²

Продажа | Лот 14003

Москва деревня Коробово, Авиаторов, 6

Площадь: 109 м²

Назначение: Торговое помещение под  магазин алко-маркет бижутерия сувениры

Доходность: 9%, 243 000 ₽/мес

Окупаемость: 12 лет

Готовый арендный бизнес в деревне Коробово. Развивающийся район, близость к школе обеспечивает интенсивный трафик вдоль помещения....

35 000 000 ₽

321 000 ₽ за м²

Позвонить эксперту whatsapp telegram
Каширская
Академический
ЦАО
Академический