Помещение на Архитектора Щусева, 153 м², лот - 51881

Продажа | Лот 51881

Image 0
Image 1
Image 2
Image 3
Image 4
Image 5
Image 6
Image 7
8
Image 0 Image 1 Image 2 Image 3 Image 4 Image 5 Image 6 Image 7
130000000 RUB

130 000 000 ₽

850 000 ₽ за м²

Метро:
ЗИЛ :
pedestrian  8 минут пешком
Район/округ: Даниловский / ЮАО
Адрес: Архитектора Щусева, 5с2
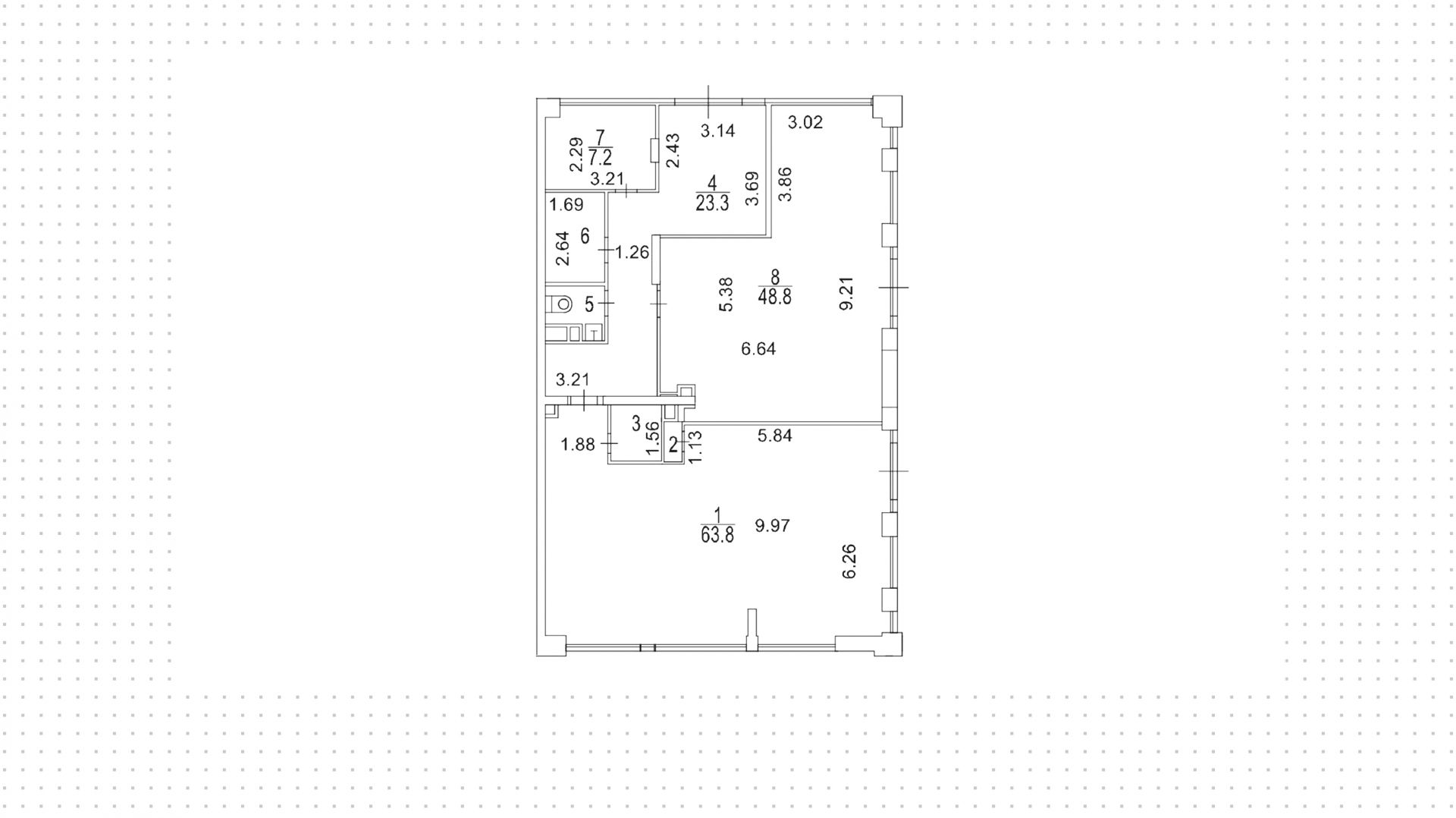
Площадь: 153 м²
Назначение: магазин шоурум бижутерия сувениры
Высота потолков: 5.5 метров
Отделка: С отделкой
Парковка: городская платная перед фасадом
Электрическая мощность (кВт): 40
Зона разгрузки: Есть
Линия: Первая
Тип входа: Отдельный с улицы
Витрины есть

Готовый арендный бизнес на первой линии улицы Архитектора Мельникова в Даниловском районе. Ритейл находится в жилом комплексе бизнес-класса «Зиларт», возле музея «Зиларт» и парка «Тюфелева роща». Обеспечен интенсивный пешеходный трафик. Окружение — пекарня «Буханка», кафе Piatto, супермаркет «Пятёрочка», пункты выдачи Wildberries и OZON. За 8 минут можно дойти до станции метро «ЗИЛ».

Угловое помещение с открытой планировкой площадью 153 м² расположено на первом этаже в жилом доме. Арендатор — магазин мебели SKDESIGN. Можно увеличить площадь до 218 м² с помощью надстройки антресоли. Объект оснащён центральными коммуникациями, системами приточно-вытяжной вентиляции, кондиционирования, видеонаблюдения, пожарной сигнализации и интернетом. Три отдельных входа с улицы с зоной разгрузки, витринное остекление. На фасаде предусмотрено место для рекламы. Городская платная парковка организована возле дома.

130 000 000 ₽

850 000 ₽ за м²

Метро:
ЗИЛ :
pedestrian  8 минут пешком
Район/округ: Даниловский / ЮАО
Адрес: Архитектора Щусева, 5с2
Площадь: 153 м²
Назначение: магазин шоурум бижутерия сувениры
Высота потолков: 5.5 метров
Отделка: С отделкой
Парковка: городская платная перед фасадом
Электрическая мощность (кВт): 40
Зона разгрузки: Есть
Линия: Первая
Тип входа: Отдельный с улицы
Витрины есть
expert

Александр

Руководитель проекта

Для уточнения и фиксирования цены можно связаться напрямую с брокером

+7 (495) 106-19-99

Расположение на карте

Похожие лоты

Мы включили в наш каталог лучшие предложения по коммерческой недвижимости в Москве.

Новинка
lot-15444
lot-15444
lot-15444
lot-15444
lot-15444
lot-15444
6
Помещение под сувениры, 837 м²

Продажа | Лот 42800

Москва Крылатские Холмы, 7с2

Коммерческое помещение на первой линии улицы Крылатские Холмы в Крылатском районе. Близость Москворецкого парка и остановки общественного...

130 000 000 ₽

155 000 ₽ за м²

Новинка
lot-16125
lot-16125
lot-16125
3
Помещение под сувениры, 838 м²

Продажа | Лот 47635

Москва деревня Поярково, Клушинская, с1

Площадь: 838 м²

Назначение: Торговое помещение под  магазин супермаркет бижутерия сувениры

Отдельное здание на 1 линии Клушинской улицы в деревне Поярково. Рядом остановка общественного транспорта, обеспечен интенсивный...

130 000 000 ₽

155 000 ₽ за м²

Новинка
lot-15702
lot-15702
2
Помещение под сувениры, 237 м²

Продажа | Лот 44768

Москва Нижние Мнёвники, 39/41

Площадь: 237 м²

129 876 000 ₽

548 000 ₽ за м²

Новинка
lot-9995
lot-9995
2
Помещение под сувениры, 153 м²

Аренда | Лот 11588

Москва проспект Магеллана, 1

306 000 ₽ / месяц

24 000 ₽ за м² / год

Новинка
lot-9996
lot-9996
2
Помещение под сувениры, 153 м²

Аренда | Лот 11589

Москва проспект Магеллана, 1

306 000 ₽ / месяц

24 000 ₽ за м² / год

Новинка
lot-16114
lot-16114
lot-16114
lot-16114
4
Помещение под сувениры, 153 м²

Продажа | Лот 47574

Москва деревня Богданиха, Ленина, с7.3

Площадь: 153 м²

Назначение: Торговое помещение под  магазин бижутерия сувениры аптека пункт выдачи

Готовый арендный бизнес в Богданихе. Ритейл находится в жилом комплексе «Богдановский Лес» на 26 750 человек, в проекте спланированы...

49 000 000 ₽

320 000 ₽ за м²

Вы уже смотрели
Посмотреть все лоты
Позвонить эксперту max whatsapp telegram
Каширская
Академический
ЦАО
Академический