Арендный бизнес в Сапроново, 286 м², лот - 49592

Продажа | Лот 49592

Image 0
Image 1
Image 2
Image 3
4
Image 0 Image 1 Image 2 Image 3
132000000 RUB

132 000 000 ₽

462 000 ₽ за м²

Арендаторы: Газпромбанк
МАП: 1 050 000 ₽
ГАП: 12 600 000 ₽
Окупаемость:
11 лет
Доходность:
10%
Адрес: деревня Сапроново, Калиновая, 1с1
Площадь: 286 м²
Назначение: банк
Высота потолков: 3.9 метра
Отделка: С отделкой
Парковка: наземная многоуровневая парковка и гостевая парковка у здания на 38 мест
Зона разгрузки: Есть
Линия: Первая
Тип входа: Отдельный с улицы
Витрины есть

Готовый арендный бизнес на первой линии улицы Калиновая в деревне Сапроново. Разивающийся район, строятся жилые комплексы «Видный Берег», «1-й Донской». Выезд на Южно-Лыткаринскую автодорогу и остановка общественного транспорта возле объекта обеспечивает интенсивный автомобильный и пешеходный трафик. Окружение — супермаркет «Перекрёсток», пункт выдачи OZON, аптека «Горздрав», ресторан «Мими».

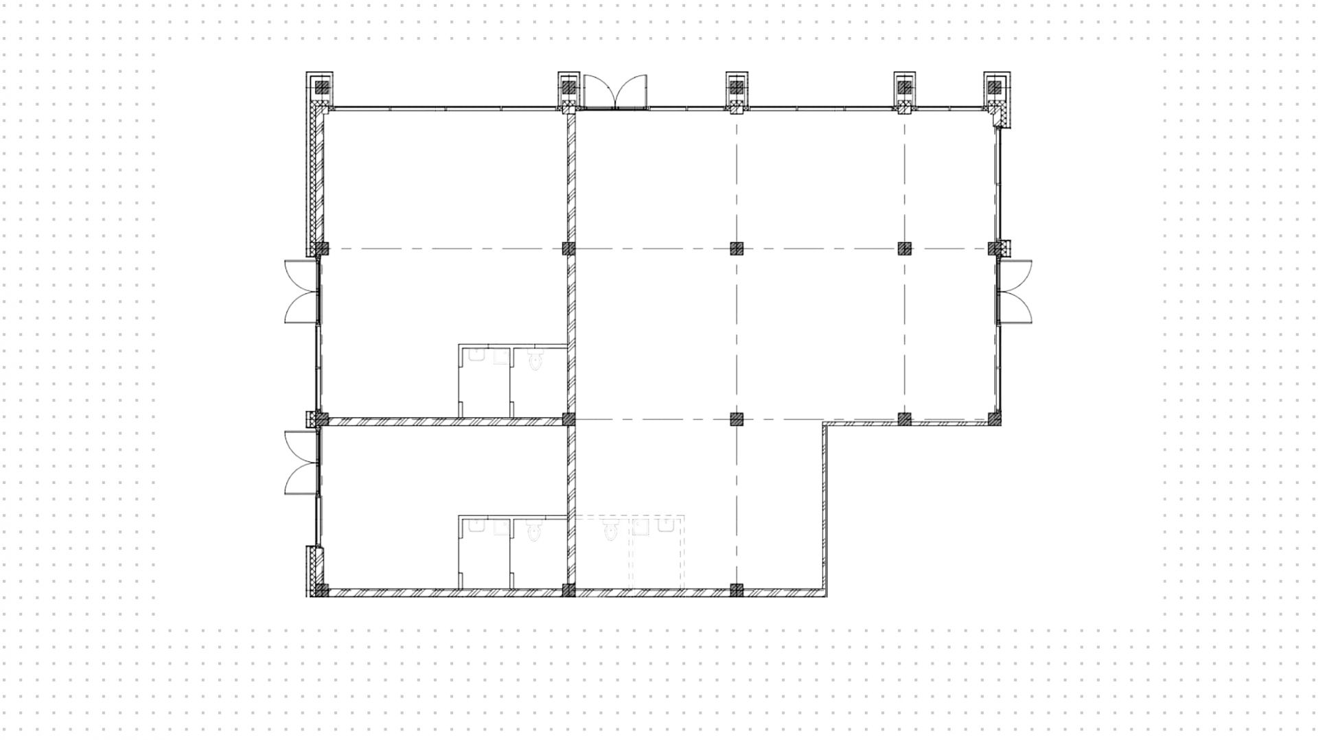
Угловое помещение площадью 286 м² расположено на первом этаже в здании многоуровневой парковки в жилом комплексе «Первый квартал». Арендатор — «Газпромбанк». Объект оснащен инженерными коммуникациями, организована вытяжка с выходом на кровлю. Четыре отдельных входа с улицы с зоной разгрузки, витринное остекление. Спланировано место для рекламы на фасаде. Возле здания предусмотрена гостевая парковка на 38 мест.

132 000 000 ₽

462 000 ₽ за м²

Арендаторы: Газпромбанк
МАП: 1 050 000 ₽
ГАП: 12 600 000 ₽
Окупаемость:
11 лет
Доходность:
10%
Адрес: деревня Сапроново, Калиновая, 1с1
Площадь: 286 м²
Назначение: банк
Высота потолков: 3.9 метра
Отделка: С отделкой
Парковка: наземная многоуровневая парковка и гостевая парковка у здания на 38 мест
Зона разгрузки: Есть
Линия: Первая
Тип входа: Отдельный с улицы
Витрины есть
expert

Артём

Эксперт

Для уточнения и фиксирования цены можно связаться напрямую с брокером

+7 (495) 106-19-99

Расположение на карте

Назначения
Похожие лоты

Мы включили в наш каталог лучшие предложения по коммерческой недвижимости в Москве.

Новинка
lot-14742
lot-14742
lot-14742
lot-14742
lot-14742
lot-14742
lot-14742
7
Помещение под банк, 136 м²

Продажа | Лот 30987

Марьина Роща 3 мин

Москва Сущёвский Вал, 53

Площадь: 136 м²

Назначение: Торговое помещение под  магазин супермаркет бижутерия сувениры

Арендаторы: заряд от магнита

Доходность: 10%, 1 100 000 ₽/мес

Окупаемость: 10 лет

Готовый арендный бизнес на 1-й линии улицы Сущёвский Вал в районе Марьина Роща. В радиусе 500 метров проживает более 16 275 человек, в ближайших...

132 000 000 ₽

971 000 ₽ за м²

Новинка
lot-4978
lot-4978
lot-4978
3
Помещение под банк, 178 м²

Продажа | Лот 7573

Тушинская 1 мин

Москва Тушинская, 24с15

Площадь: 178 м²

Назначение: Торговое помещение под  магазин бижутерия сувениры продуктовый магазин продукты супермаркет

Доходность: 10%, 1 100 000 ₽/мес

Окупаемость: 10 лет

Готовый арендный бизнес в районе Покровское-Стрешнево. Близость к стадиону «Красный Октябрь» обеспечивает интенсивный пешеходный...

132 000 000 ₽

742 000 ₽ за м²

Новинка
lot-15696
lot-15696
2
Помещение под банк, 243 м²

Продажа | Лот 44756

Москва Нижние Мнёвники, 39/41

Площадь: 243 м²

131 949 000 ₽

543 000 ₽ за м²

Новинка
lot-12098
lot-12098
lot-12098
lot-12098
lot-12098
lot-12098
lot-12098
7
Помещение под банк, 286 м²

Аренда | Лот 6264

Парк культуры 10 мин

Москва Зубовская, 7

Угловое коммерческое помещение на первой линии Зубовской улицы в районе Хамовники. Близость сквера Девичьего поля и остановки общественного...

2 860 000 ₽ / месяц

120 000 ₽ за м² / год

lot-12603
lot-12603
2
Помещение под банк, 286 м²

Аренда | Лот 163655

Площадь: 286 м²

Этаж: 1 этаж

Коммерческое помещение площадью 286 м² в башне «IQ Квартал» на 1 этаже. Помещение с готовой отделкой расположено по пути ко входу в метро...

1 860 000 ₽ / месяц

78 000 ₽ за м² / год

Новинка
lot-15106
lot-15106
2
Помещение под банк, 285 м²

Продажа | Лот 9024

Павелецкая 15 мин

Москва Дербеневская, 1

Площадь: 285 м²

Назначение: Торговое помещение под  офис рабочее место

174 782 000 ₽

613 000 ₽ за м²

Позвонить эксперту max whatsapp telegram
Каширская
Академический
ЦАО
Академический