Помещение в Одинцово, 446 м², лот - 9682

Продажа | Лот 9682

Image 0
Image 1
Image 2
Image 3
Image 4
Image 5
Image 6
7
Image 0 Image 1 Image 2 Image 3 Image 4 Image 5 Image 6
80000000 RUB

80 000 000 ₽

179 000 ₽ за м²

Адрес: Одинцово, Можайское шоссе, 122
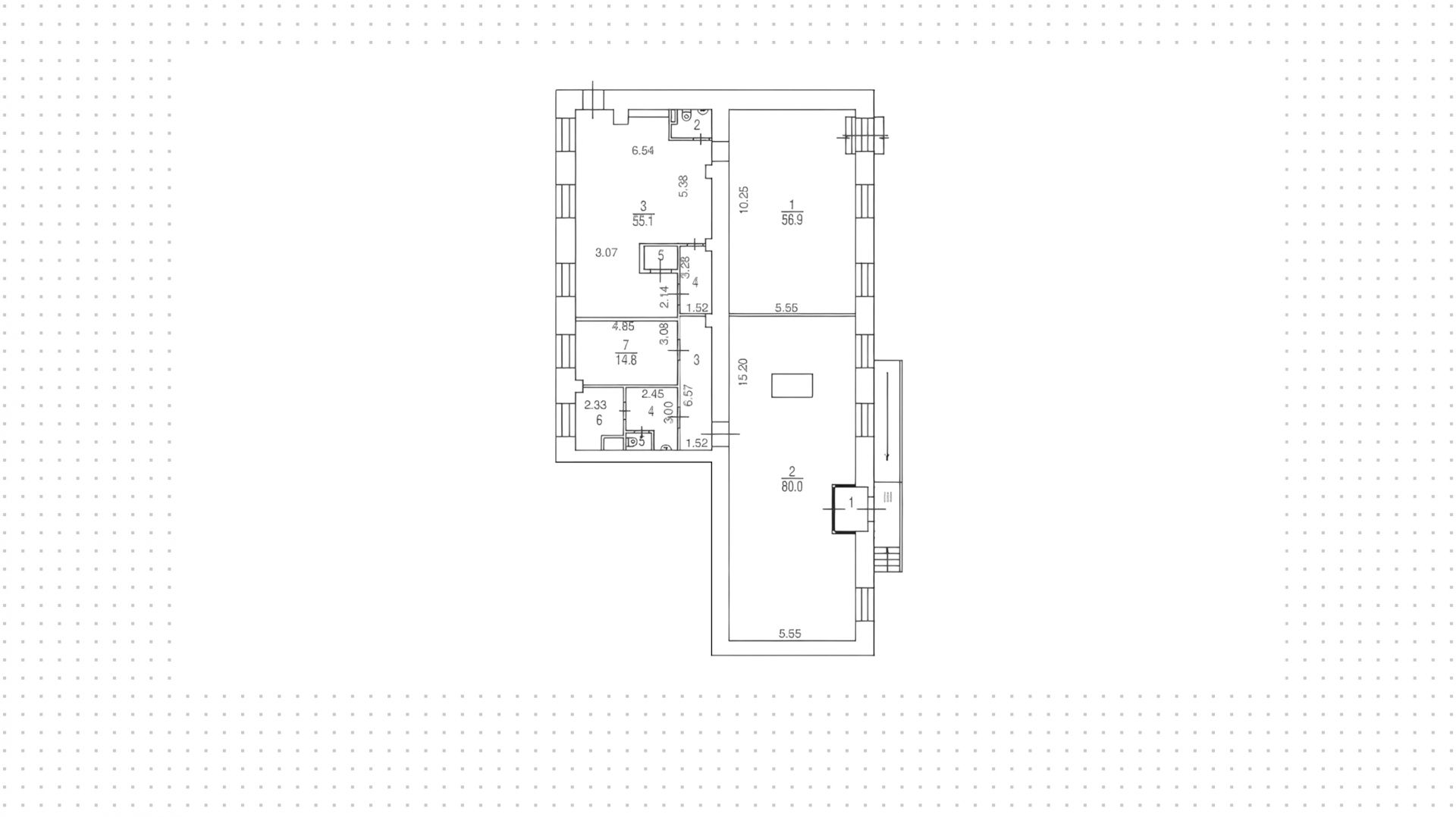
Площадь: 446 м²
Назначение: кафе офис магазин свободное супермаркет спортзал бижутерия бизнес рабочее место сувениры
Высота потолков: 3.5 метра
Отделка: С отделкой
Парковка: городская бесплатная парковка перед фасадом
Электрическая мощность (кВт): 140
Зона разгрузки: Есть
Линия: Первая
Тип входа: Отдельный со двора
Витрины есть

Коммерческое помещение на 1-й линии домов в Одинцово. Жилой район, большой поток пешеходного и автомобильного трафика, рядом остановка общественного транспорта. Окружение — супермаркеты «Пятёрочка», «ВкусВилл», ресторан «Тануки», фитнес-клуб «ГородЪ», алкомаркет «Ароматный мир». В четырёх минутах ходьбы находится станция МЦД «Баковка».

Объект с открытой планировкой площадью 446 м² расположено на -1-м этаже в стилобате жилого комплекса «Да Винчи». Выполнена отделка за выездом детского развлекательного клуба с кафе «Кит». Отдельные входы с улицы и со двора, витринное остекление. Предусмотрены отдельное вводно-распределительное устройство, зона разгрузки. Спланированы место для рекламы на фасаде, городская бесплатная парковка у комплекса.

При необходимости мы поможем с поиском арендатора для вашего помещения.

80 000 000 ₽

179 000 ₽ за м²

Адрес: Одинцово, Можайское шоссе, 122
Площадь: 446 м²
Назначение: кафе офис магазин свободное супермаркет спортзал бижутерия бизнес рабочее место сувениры
Высота потолков: 3.5 метра
Отделка: С отделкой
Парковка: городская бесплатная парковка перед фасадом
Электрическая мощность (кВт): 140
Зона разгрузки: Есть
Линия: Первая
Тип входа: Отдельный со двора
Витрины есть
expert

Александр

Руководитель проекта

Для уточнения и фиксирования цены можно связаться напрямую с брокером

+7 (495) 106-19-99

Расположение на карте

Похожие лоты

Мы включили в наш каталог лучшие предложения по коммерческой недвижимости в Москве.

Новинка
lot-14168
lot-14168
lot-14168
lot-14168
4
Помещение под сувениры, 295 м²

Продажа | Лот 4893

Тимирязевская 9 мин

Москва Тимирязевская, 16

Площадь: 295 м²

Назначение: Торговое помещение под  магазин салон красоты цветы бижутерия парикмахерская сувениры микрокредит алко-маркет

Арендаторы: салон красоты, ателье, химчистка, магазин с цветами, магазин табака, магазин с овощами, магазин с мясом и рыбой, хозяйственный магазин, хлебный магазин, кофе с собой, сервис по ремонту смартфонов, постаматы

Доходность: 11%, 667 000 ₽/мес

Окупаемость: 10 лет

Готовый арендный бизнес на 1-й линии Тимирязевской улицы в Тимирязевском районе. Жилой район, большой поток пешеходного и автомобильного...

80 000 000 ₽

271 000 ₽ за м²

Новинка
lot-7769
lot-7769
lot-7769
lot-7769
4
Готовый арендный бизнес рядом с метро «Перово»

Продажа | Лот 9273

Перово 7 мин

Москва Перовская, 49/53

Площадь: 193 м²

Назначение: Торговое помещение под  магазин продуктовый магазин бижутерия продукты сувениры

Арендаторы: гастроном

Доходность: 7%, 476 000 ₽/мес

Окупаемость: 14 лет

Готовый арендный бизнес на 1-й линии Перовской улицы в Новогиреево. Большой поток пешеходного и автомобильного трафика, рядом пешеходный...

80 000 000 ₽

415 000 ₽ за м²

Новинка
lot-15194
lot-15194
2
Помещение под сувениры, 95 м²

Продажа | Лот 40986

Маяковская 7 мин Пушкинская 6 мин

Москва Дегтярный переулок, 15с1

Площадь: 95 м²

Назначение: Торговое помещение под  клиника лаборатория

Арендаторы: клиника по сдаче анализов

Доходность: 6%, 392 000 ₽/мес

Окупаемость: 17 лет

Готовый арендный бизнес на первой линии Дегтярного переулка в Тверском районе. Интенсивный пешеходный и автомобильный трафик. Окружение...

80 000 000 ₽

842 000 ₽ за м²

Новинка
lot-7842
lot-7842
lot-7842
lot-7842
lot-7842
lot-7842
6
Коммерческое помещение с зальной планировкой в Раменках

Продажа | Лот 9370

Ломоносовский проспект 3 мин

Москва Ломоносовский проспект, 29с3

Площадь: 447 м²

Назначение: Торговое помещение под  офис рабочее место

Доходность: 4%, 670 000 ₽/мес

Окупаемость: 28 лет

Готовый арендный бизнес в районе Раменки. Интенсивный поток пешеходного трафика, рядом остановка общественного транспорта. Окружение...

225 000 000 ₽

503 000 ₽ за м²

Новинка
lot-9249
lot-9249
2
Помещение под сувениры, 447 м²

Продажа | Лот 10722

Москва на Пресненской набережной, 6с2

Площадь: 447 м²

Назначение: Торговое помещение под  офис рабочее место

313 558 000 ₽

701 000 ₽ за м²

Новинка
lot-11966
lot-11966
lot-11966
lot-11966
4
Помещение под сувениры, 445 м²

Продажа | Лот 14974

Москва проспект Куприна, 11с1

Площадь: 445 м²

Назначение: Торговое помещение под  магазин супермаркет бижутерия сувениры

Арендаторы: Магнит

Доходность: 10%, 1 326 000 ₽/мес

Окупаемость: 11 лет

Готовый арендный бизнес на 1-й линии проспекта Куприна в Коммунарке. Объект находится в жилом развивающимся комплексе «Бунинские...

175 000 000 ₽

393 000 ₽ за м²

Позвонить эксперту whatsapp telegram
Каширская
Академический
ЦАО
Академический