Помещение в Измайловском проезде, 80 м², лот - 28645

Продажа | Лот 28645

Image 0
Image 1
Image 2
Image 3
4
Image 0 Image 1 Image 2 Image 3
33000000 RUB

33 000 000 ₽

413 000 ₽ за м²

Адрес: Измайловский проезд, 5А
Площадь: 80 м²
Назначение: магазин свободное салон красоты аптека пункт выдачи алко-маркет продуктовый магазин бижутерия бизнес парикмахерская продукты сувениры
Высота потолков: 3.5 метра
Отделка: С отделкой
Парковка: бесплатная парковка перед зданием, подземный паркинг на территории комплекса
Электрическая мощность (кВт): 16
Тип входа: Отдельный с улицы
Витрины есть

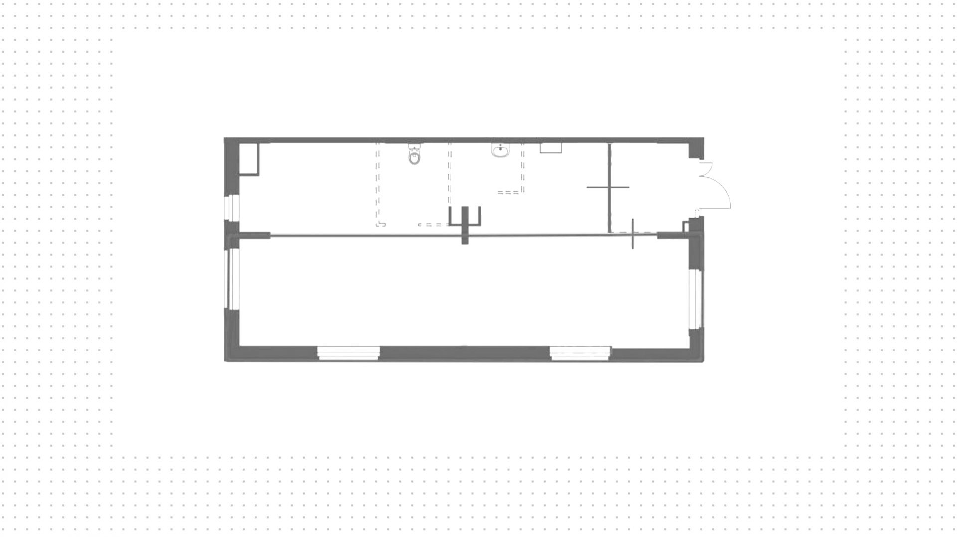
Коммерческое помещение в Измайлово. Жилой развивающийся район, обеспечен интенсивный автомобильный и пешеходный трафик. Окружение — супермаркет «ВкусВилл», кондитерская «Мануфактура», пекарня «Буханка», алкомаркет «Винлаб», пункты выдачи OZON и Wildberries. Организован выезд на МСД.

Объект с открытой планировкой площадью 80 м² расположен на 1-м этаже в жилом комплексе «Измайловский 11». Ритейл подойдет под размещение продуктового магазина, алкомаркета, аптеки или салона красоты. В помещении с витринным остеклением организован отдельный вход с улицы. Перед зданием находится бесплатная парковка, также на территории комплекса спланирован подземный паркинг.

При необходимости мы поможем с поиском арендатора для вашего помещения.

33 000 000 ₽

413 000 ₽ за м²

Адрес: Измайловский проезд, 5А
Площадь: 80 м²
Назначение: магазин свободное салон красоты аптека пункт выдачи алко-маркет продуктовый магазин бижутерия бизнес парикмахерская продукты сувениры
Высота потолков: 3.5 метра
Отделка: С отделкой
Парковка: бесплатная парковка перед зданием, подземный паркинг на территории комплекса
Электрическая мощность (кВт): 16
Тип входа: Отдельный с улицы
Витрины есть
expert

Руслан

Эксперт проекта

Для уточнения и фиксирования цены можно связаться напрямую с брокером

+7 (495) 106-19-99

Расположение на карте

Похожие лоты

Мы включили в наш каталог лучшие предложения по коммерческой недвижимости в Москве.

Новинка
lot-14923
lot-14923
2
Помещение под сувениры, 68 м²

Продажа | Лот 33868

Москва Трёхполье, 6с1

Коммерческое угловое помещение на улице Трёхполье в Коммунарке. Объект находится в жилом комплексе «Саларьево парк», возле школы...

33 000 000 ₽

485 000 ₽ за м²

Новинка
lot-14605
lot-14605
lot-14605
lot-14605
4
Помещение под сувениры, 77 м²

Продажа | Лот 29414

Верхние Котлы 2 мин

Москва Варшавское шоссе, 18с2

Площадь: 77 м²

Назначение: Торговое помещение под  магазин алко-маркет бижутерия сувениры

Арендаторы: Красное и белое

Доходность: 9%, 250 000 ₽/мес

Окупаемость: 11 лет

Готовый арендный бизнес на Варшавском шоссе в Донском районе. Вдоль шоссе обеспечен интенсивный автомобильный трафик, рядом стадион...

33 000 000 ₽

429 000 ₽ за м²

Новинка
lot-9252
lot-9252
lot-9252
lot-9252
lot-9252
lot-9252
lot-9252
7
Помещение под сувениры, 49 м²

Продажа | Лот 10725

Шоссе Энтузиастов 5 мин

Москва Электродная, 2с32

Площадь: 49 м²

Назначение: Торговое помещение под  магазин фаст-фуд бижутерия сувениры

Арендаторы: магазин еды «МИЛТИ»

Доходность: 9%, 250 000 ₽/мес

Окупаемость: 11 лет

Готовый арендный бизнес на 1-й линии Электродной улицы в районе Перово. Благодаря расположению на территории Центра городской культуры...

33 000 000 ₽

673 000 ₽ за м²

Новинка
lot-14141
lot-14141
lot-14141
lot-14141
lot-14141
5
Помещение под сувениры, 80 м²

Аренда | Лот 16108

Электрозаводская 7 мин

Москва Большая Почтовая, 32с2

Коммерческое помещение в Басманном районе. Обеспечен интенсивный пешеходный трафик. Окружение — магазин «О'марель», магазин цветов,...

400 000 ₽ / месяц

60 000 ₽ за м² / год

Новинка
lot-14554
lot-14554
lot-14554
lot-14554
lot-14554
lot-14554
6
Помещение под сувениры, 80 м²

Аренда | Лот 29314

Марьина Роща 2 мин

Москва Шереметьевская, 5с1

Коммерческое торцевое помещение на 1-й линии Шереметьевской улицы в Марьиной Роще. Выезд на ТТК и близость торгового центра «Райкин...

430 000 ₽ / месяц

65 000 ₽ за м² / год

Новинка
lot-14648
lot-14648
lot-14648
lot-14648
lot-14648
lot-14648
6
Помещение под сувениры, 80 м²

Аренда | Лот 30191

Сходненская 4 мин

Москва Сходненская, 25

Коммерческое помещение на 1-й линии Нелидовской улицы в Южном Тушино. Жилой район, рядом остановка общественного транспорта, пешеходный...

495 000 ₽ / месяц

74 000 ₽ за м² / год

Позвонить эксперту whatsapp telegram
Каширская
Академический
ЦАО
Академический