Арендный бизнес в Холодильном переулке, 70 м², лот - 12311

Продажа | Лот 12311

Image 0
Image 1
Image 2
Image 3
4
Image 0 Image 1 Image 2 Image 3
71000000 RUB

71 000 000 ₽

1 014 000 ₽ за м²

МАП: 496 000 ₽
ГАП: 5 952 000 ₽
Окупаемость:
12 лет
Доходность:
8%
Метро:
Тульская :
pedestrian  2 минуты пешком
Район/округ: Даниловский / ЮАО
Адрес: Холодильный переулок, 2
Площадь: 70 м²
Назначение: ресторан кафе
Высота потолков: 3.4 метра
Отделка: С отделкой
Парковка: городская платная перед фасадом
Электрическая мощность (кВт): 45
Линия: Первая
Тип входа: Отдельный с улицы
Витрины есть

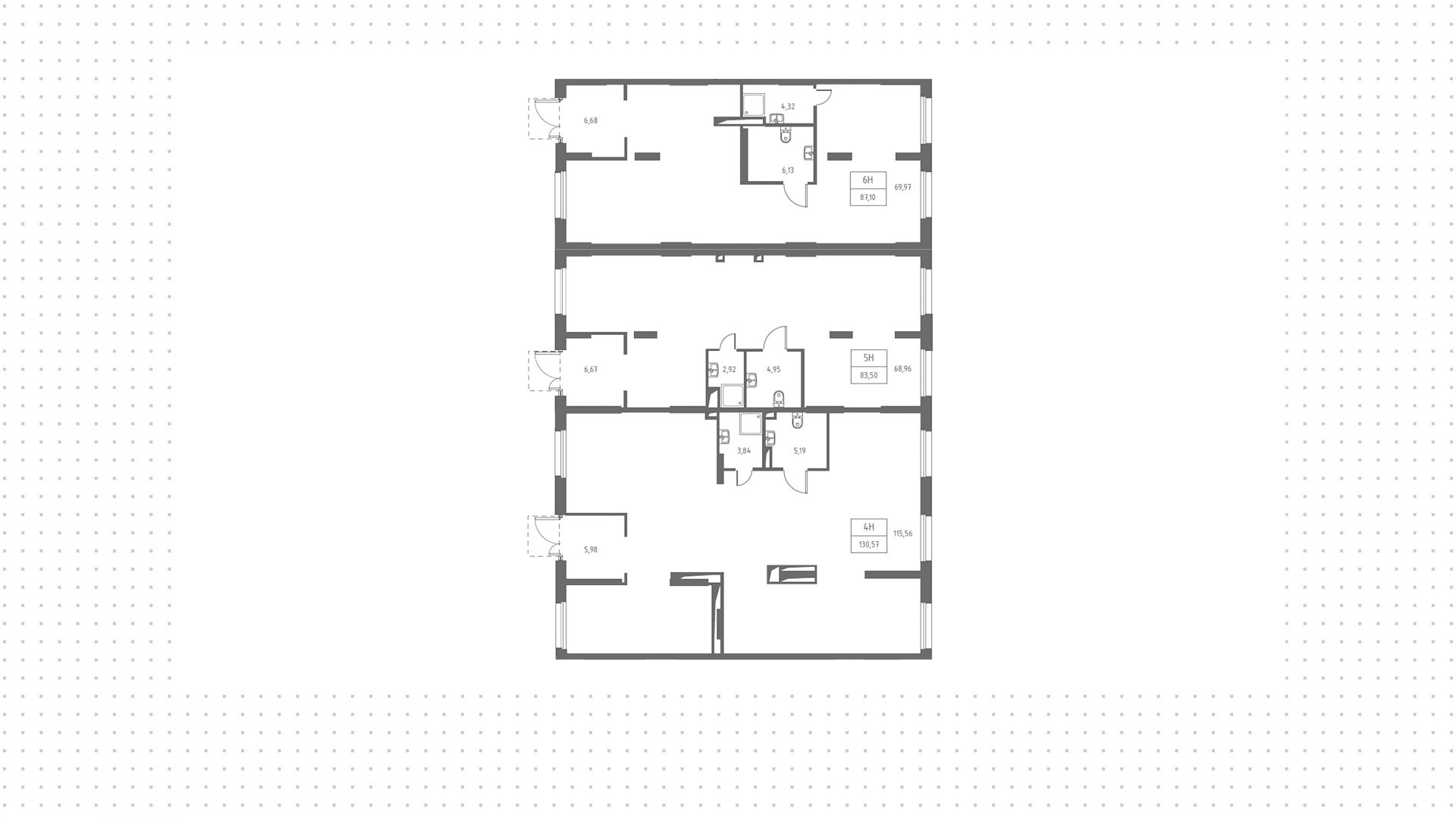
Готовый арендный бизнес на 1-й линии Холодильного переулка в Даниловском районе. Объект расположен напротив входа «Товарищества Рябовской Мануфактуры», рядом торговые центры «Тульский», «Ереван Плаза», обеспечен интенсивный пешеходный и автомобильный трафик. Окружение — кафе Prime, «Вах! Хинкали!», магазины цветов и табака. За 2 минуты можно пешком дойти до станции метро «Тульская».

Угловое помещение с открытой планировкой площадью 70 м² расположено на 1-м этаже в двухэтажном нежилом здании. Арендатор — ресторан «Ком 1989». Отдельный вход с улицы, витринное остекление. Предусмотрены вытяжка, место для размещения рекламы на фасаде. У здания организована городская платная парковка.

71 000 000 ₽

1 014 000 ₽ за м²

МАП: 496 000 ₽
ГАП: 5 952 000 ₽
Окупаемость:
12 лет
Доходность:
8%
Метро:
Тульская :
pedestrian  2 минуты пешком
Район/округ: Даниловский / ЮАО
Адрес: Холодильный переулок, 2
Площадь: 70 м²
Назначение: ресторан кафе
Высота потолков: 3.4 метра
Отделка: С отделкой
Парковка: городская платная перед фасадом
Электрическая мощность (кВт): 45
Линия: Первая
Тип входа: Отдельный с улицы
Витрины есть
expert

Евгений

Эксперт проекта

Для уточнения и фиксирования цены можно связаться напрямую с брокером

+7 (495) 106-19-99

Расположение на карте

Назначения
Похожие лоты

Мы включили в наш каталог лучшие предложения по коммерческой недвижимости в Москве.

Новинка
lot-14943
lot-14943
lot-14943
lot-14943
lot-14943
lot-14943
lot-14943
lot-14943
lot-14943
lot-14943
10
Помещение под кафе, 129 м²

Продажа | Лот 18210

Москва Лобненская, 13с4

Площадь: 129 м²

Назначение: Торговое помещение под  магазин супермаркет бижутерия сувениры

Арендаторы: Магнит

Доходность: 8%, 455 000 ₽/мес

Окупаемость: 13 лет

Готовый арендный бизнес на 1-й линии Ангарской улицы в Дмитровском районе. Объект находится в жилом комплексе комфорт-класса «Дмитровский...

71 000 000 ₽

550 000 ₽ за м²

Новинка
lot-7814
lot-7814
lot-7814
lot-7814
lot-7814
5
Помещение под кафе, 112 м²

Продажа | Лот 9337

Народного Ополчения 5 мин

Москва проспект Маршала Жукова, 17с1

Площадь: 112 м²

Назначение: Торговое помещение под  магазин бижутерия сувениры алко-маркет

Доходность: 11%, 592 000 ₽/мес

Окупаемость: 10 лет

Готовый арендный бизнес на 1-й линии проспекта Маршала Жукова в районе Хорошёво-Мнёвники. Большой поток пешеходного трафика, окружение...

71 000 000 ₽

634 000 ₽ за м²

Новинка
lot-9203
lot-9203
lot-9203
lot-9203
lot-9203
5
Помещение под кафе, 20 м²

Продажа | Лот 10688

Белорусская 1 мин

Москва Грузинский Вал, 28/45

Площадь: 20 м²

Назначение: Торговое помещение под  магазин бижутерия сувениры

Доходность: 10%, 538 000 ₽/мес

Окупаемость: 11 лет

Готовый арендный бизнес на 1 линии домов в Пресненском районе. Высокий поток автомобильного трафика, рядом пешеходный переход, окружение...

71 000 000 ₽

3 550 000 ₽ за м²

Новинка
lot-14831
lot-14831
lot-14831
lot-14831
lot-14831
5
Помещение под кафе, 70 м²

Аренда | Лот 32163

Москва Павла Андреева, 28с7

Коммерческое помещение на 1-й линии улицы Павла Андреева в Замоскворечье. Большой поток пешеходного и автомобильного трафика, рядом...

350 000 ₽ / месяц

60 000 ₽ за м² / год

Новинка
lot-15187
lot-15187
lot-15187
3
Помещение под кафе, 70 м²

Продажа | Лот 40895

Стахановская 4 мин

Москва Рязанский проспект, 10с2

Площадь: 70 м²

Назначение: Торговое помещение под  магазин пункт выдачи бижутерия сувениры

Арендаторы: wildberries

Доходность: 11%, 227 000 ₽/мес

Окупаемость: 9 лет

Готовый арендный бизнес на первой линии Рязанского проспекта в Рязанском районе. Обеспечен интенсивный автомобильный и пешеходный...

24 500 000 ₽

350 000 ₽ за м²

Новинка
lot-15314
lot-15314
lot-15314
lot-15314
4
Помещение под кафе, 70 м²

Продажа | Лот 33117

Москва Адмирала Корнилова, 76с2

Коммерческое помещение на 1-й линии улицы Адмирала Корнилова в Коммунарке. Ритейл находится в жилом комплексе «Квартал Румянцево»,...

31 595 000 ₽

451 000 ₽ за м²

Позвонить эксперту whatsapp telegram
Каширская
Академический
ЦАО
Академический