Помещение на Ясеневой, 135 м², лот - 10245

Продажа | Лот 10245

Image 0
Image 1
Image 2
Image 3
4
Image 0 Image 1 Image 2 Image 3
78500000 RUB

78 500 000 ₽

581 000 ₽ за м²

Адрес: Ясеневая, 12с2
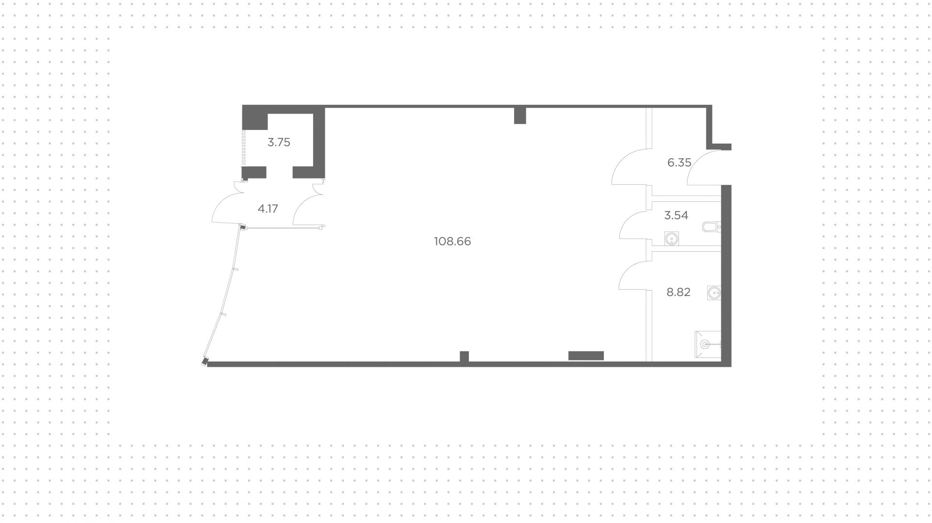
Площадь: 135 м²
Назначение: магазин бижутерия сувениры
Высота потолков: 4 метра
Отделка: С отделкой
Парковка: городская бесплатная перед фасадом
Электрическая мощность (кВт): 30
Линия: Первая
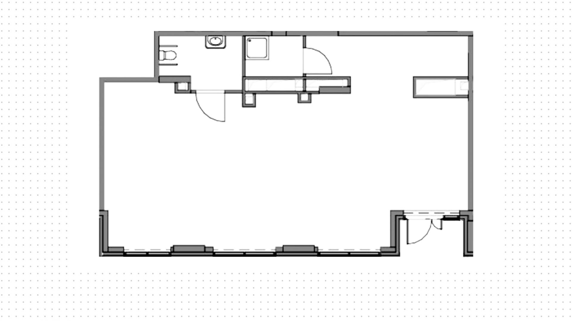
Тип входа: Отдельный с улицы
Витрины есть

Готовый арендный бизнес на 1-й линии Ясеневой улицы в Южном Орехово-Борисово. Жилой район, большой поток пешеходного и автомобильного трафика, рядом школа, детский сад, остановка общественного транспорта. Окружение — супермаркет «Пятёрочка», аптека «Вита Экспресс», пекарня «Буханка», алкомаркеты «Ароматный мир», «Красное&Белое».

Объект с комбинированной планировкой площадью 135 м² расположен на 1-м этаже в жилом комплексе «Ясеневая 14». Арендатор — магазин косметики «Улыбка радуги». Отдельный вход с улицы, витринное остекление со стороны двора. Предусмотрены место для размещения рекламы на фасаде, городская бесплатная парковка у дома.

78 500 000 ₽

581 000 ₽ за м²

Адрес: Ясеневая, 12с2
Площадь: 135 м²
Назначение: магазин бижутерия сувениры
Высота потолков: 4 метра
Отделка: С отделкой
Парковка: городская бесплатная перед фасадом
Электрическая мощность (кВт): 30
Линия: Первая
Тип входа: Отдельный с улицы
Витрины есть
expert

Павел

Эксперт

Для уточнения и фиксирования цены можно связаться напрямую с брокером

+7 (495) 106-19-99

Расположение на карте

Назначения
Похожие лоты

Мы включили в наш каталог лучшие предложения по коммерческой недвижимости в Москве.

Новинка
lot-13412
lot-13412
2
Помещение под сувениры, 157 м²

Продажа | Лот 13762

Площадь Ильича 9 мин Римская 9 мин

Москва Золоторожский Вал, 11/1

Площадь: 157 м²

Назначение: Торговое помещение под  офис рабочее место

Офис в комплексе Stone Римская. Офис площадью 158 м² расположен на 12 этаже из 18, без отделки. Предусмотрена терраса. Окна: панорамные, возможность...

78 563 000 ₽

500 000 ₽ за м²

Новинка
lot-13794
lot-13794
2
Помещение под сувениры, 126 м²

Продажа | Лот 17806

ЦСКА 5 мин

Москва Ходынский бульвар, 4/1

Площадь: 126 м²

Назначение: Торговое помещение под  офис рабочее место

Офис в комплексе AIR. Офис площадью 126 м² расположен на 9 этаже. Без отделки. Окна: панорамные с солнцезащитными свойствами, в каждом...

78 601 000 ₽

624 000 ₽ за м²

Новинка
lot-13410
lot-13410
2
Помещение под сувениры, 157 м²

Продажа | Лот 13760

Площадь Ильича 9 мин Римская 9 мин

Москва Золоторожский Вал, 11/1

Площадь: 157 м²

Назначение: Торговое помещение под  офис рабочее место

Офис в комплексе Stone Римская. Офис площадью 158 м² расположен на 11 этаже из 18, без отделки. Предусмотрена терраса. Окна: панорамные, возможность...

78 250 000 ₽

498 000 ₽ за м²

Новинка
lot-14376
lot-14376
lot-14376
lot-14376
4
Помещение под сувениры, 135 м²

Аренда | Лот 19300

Автозаводская 10 мин

Москва Эдуарда Стрельцова, 2с2

Коммерческое помещение в Даниловском районе. Жилой развивающийся район, обеспечен интенсивный автомобильный и пешеходный трафик....

600 000 ₽ / месяц

53 000 ₽ за м² / год

Новинка
lot-14612
lot-14612
2
Помещение под сувениры, 135 м²

Аренда | Лот 29419

Белорусская 5 мин Маяковская 7 мин

Москва 1-я Тверская-Ямская, 26

Коммерческое помещение в Тверском районе. Объект располагается на 1-й линии 1-й Тверской-Ямской улицы, обеспечен интенсивный автомобильный...

1 500 000 ₽ / месяц

133 000 ₽ за м² / год

Новинка
lot-14246
lot-14246
lot-14246
lot-14246
lot-14246
lot-14246
6
Помещение под сувениры, 135 м²

Продажа | Лот 18878

Москва Мытищи, 1-й Стрелковый переулок, 5с1

Коммерческое помещение в Мытищах. Жилой развивающийся район, обеспечен интенсивный автомобильный и пешеходный трафик. Окружение...

27 000 000 ₽

200 000 ₽ за м²

Позвонить эксперту max whatsapp telegram
Каширская
Академический
ЦАО
Академический