Помещение на Сельскохозяйственной, 145 м², лот - 49683

Продажа | Лот 49683

Image 0
Image 1
Image 2
Image 3
Image 4
Image 5
Image 6
7
Image 0 Image 1 Image 2 Image 3 Image 4 Image 5 Image 6
450000 RUB

450 000 ₽ в месяц

37 000 ₽ за м² в год

Район/округ: Останкинский / СВАО
Адрес: Сельскохозяйственная, 35
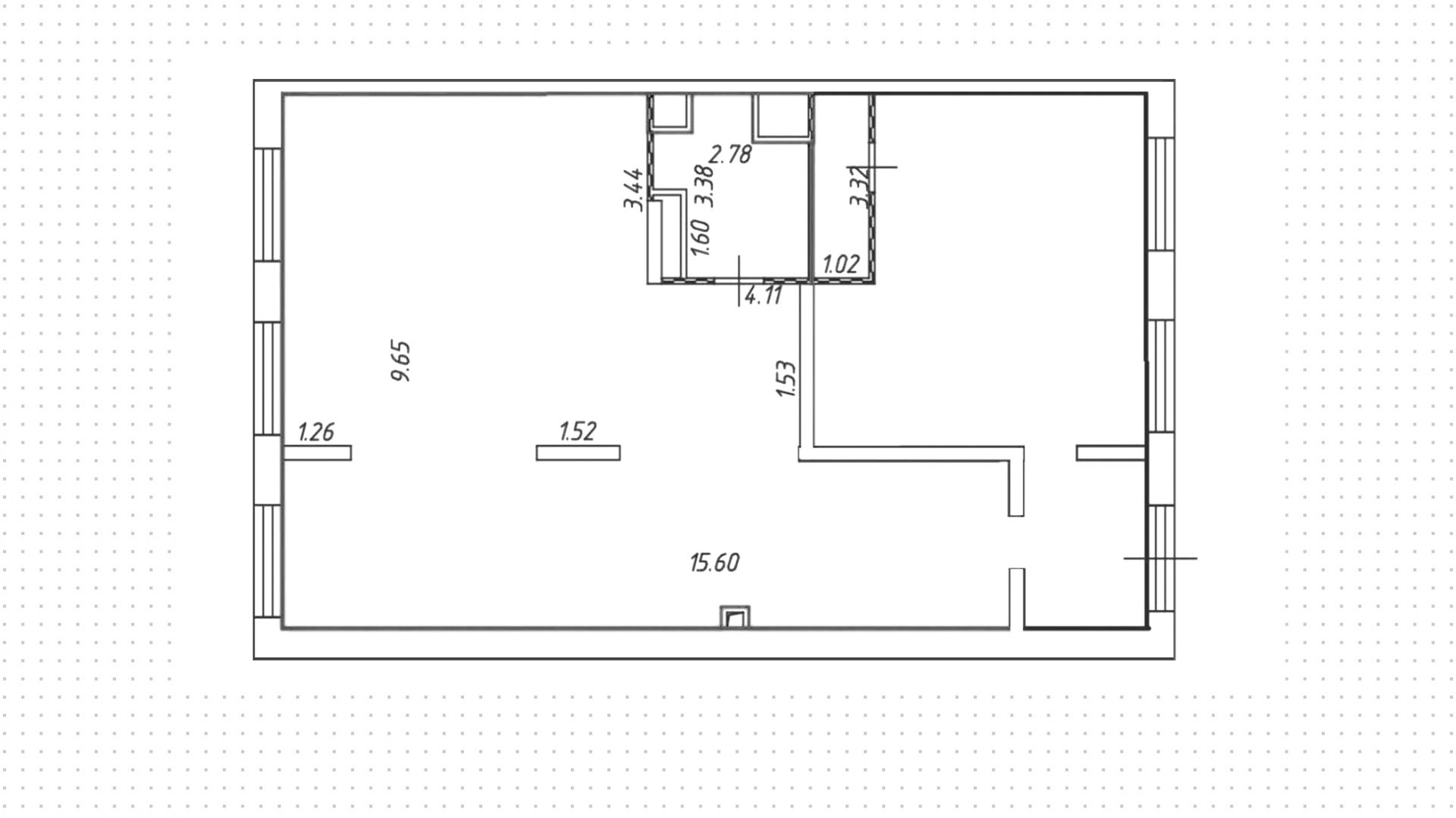
Площадь: 145 м²
Назначение: ресторан магазин свободное спортзал кафе общепит продуктовый магазин бижутерия бизнес продукты сувениры
Высота потолков: 5.6 метров
Отделка: С отделкой
Парковка: бесплатная перед домом на 50 мест
Электрическая мощность (кВт): 29
Линия: Первая
Тип входа: Отдельный с улицы
Витрины есть

Коммерческое помещение на первой линии Сельскохозяйственной улицы в Останкинском районе. Обеспечен интенсивный пешеходный и автомобильный трафик, рядом остановка общественного транспорта и подземный переход в сторону парка «Свибловские пруды». Окружение — алкомаркет «Винлаб», супермаркеты «Магнолия», «ВкусВилл», барбершоп «Алиби», суши-бар «Сибас суши».

Ритейл с открытой планировкой площадью 145 м² расположен на первом этаже в жилом комплексе «Грин парк». Выполнена отделка за выездом пекарни BunBuns и магазина мебели Lottahome, установлены вытяжка, пожарная и охранная сигнализации. Отдельный вход с улицы, витринное остекление, спланировано место для рекламы на фасаде. На территории комплекса организована охрана с видеонаблюдением, вдоль дома — бесплатная парковка на 50 мест.

450 000 ₽ в месяц

37 000 ₽ за м² в год

Район/округ: Останкинский / СВАО
Адрес: Сельскохозяйственная, 35
Площадь: 145 м²
Назначение: ресторан магазин свободное спортзал кафе общепит продуктовый магазин бижутерия бизнес продукты сувениры
Высота потолков: 5.6 метров
Отделка: С отделкой
Парковка: бесплатная перед домом на 50 мест
Электрическая мощность (кВт): 29
Линия: Первая
Тип входа: Отдельный с улицы
Витрины есть
expert

Елена

Эксперт проекта

Для уточнения и фиксирования цены можно связаться напрямую с брокером

+7 (495) 106-19-99

Расположение на карте

Похожие лоты

Мы включили в наш каталог лучшие предложения по коммерческой недвижимости в Москве.

Новинка
lot-10397
lot-10397
2
Помещение под сувениры, 32 м²

Продажа | Лот 11970

Москва поселение Сосенское

Площадь: 32 м²

10 210 000 ₽

319 000 ₽ за м²

Новинка
lot-11498
lot-11498
2
Помещение под сувениры, 38 м²

Продажа | Лот 11161

Москва Скотопрогонная, 31А

Площадь: 38 м²

12 573 000 ₽

331 000 ₽ за м²

Новинка
lot-11502
lot-11502
2
Помещение под сувениры, 39 м²

Продажа | Лот 11198

Москва Скотопрогонная, 31А

Площадь: 39 м²

13 002 000 ₽

333 000 ₽ за м²

Новинка
lot-14252
lot-14252
lot-14252
lot-14252
lot-14252
lot-14252
6
Помещение под сувениры, 145 м²

Продажа | Лот 19075

Москва Мытищи, Институтская, 6

Площадь: 145 м²

Назначение: Торговое помещение под  магазин бижутерия сувениры

Арендаторы: Салон Тортов

Доходность: 6%, 158 000 ₽/мес

Окупаемость: 19 лет

Готовый арендный бизнес в Мытищах. Жилой развивающийся район, обеспечен интенсивный автомобильный и пешеходный трафик. Окружение...

36 000 000 ₽

248 000 ₽ за м²

Новинка
lot-16598
lot-16598
lot-16598
3
Помещение под сувениры, 145 м²

Продажа | Лот 51271

Алтуфьево 3 мин

Москва Лескова, 6

Площадь: 145 м²

Назначение: Торговое помещение под  магазин аптека бижутерия сувениры

Готовый арендный бизнес на первой линии улицы Лескова в Бибирево. Обеспечен интенсивный автомобильный и пешеходный трафик. Окружение...

58 350 000 ₽

402 000 ₽ за м²

Новинка
lot-14285
lot-14285
lot-14285
3
Помещение под сувениры, 144 м²

Продажа | Лот 19158

Селигерская 2 мин

Москва Дмитровское шоссе, 89

Коммерческое помещение на 1-й линии Селигерской улицы в Бескудниковском районе. Объект находится возле парка имени Святослава Фёдорова...

108 300 000 ₽

752 000 ₽ за м²

Позвонить эксперту max whatsapp telegram
Каширская
Академический
ЦАО
Академический