Помещение на Лескова, 145 м², лот - 51271

Продажа | Лот 51271

Image 0
Image 1
Image 2
3
Image 0 Image 1 Image 2
58350000 RUB

58 350 000 ₽

402 000 ₽ за м²

Метро:
Алтуфьево :
pedestrian  3 минуты пешком
Адрес: Лескова, 6
Площадь: 145 м²
Назначение: магазин аптека бижутерия сувениры
Высота потолков: 3 метра
Отделка: С отделкой
Парковка: бесплатная перед зданием
Электрическая мощность (кВт): 60
Линия: Первая
Тип входа: Отдельный с улицы
Витрины есть

Готовый арендный бизнес на первой линии улицы Лескова в Бибирево. Обеспечен интенсивный автомобильный и пешеходный трафик. Окружение — фаст-фуд «Хочу шаурму», пункт выдачи «Яндекс Маркет», салон оптики «МосОптика». За 3 минуты пешком можно дойти до станции метро «Алтуфьево».

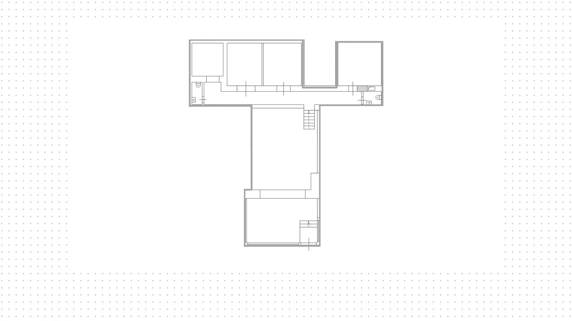
Объект с зальной планировкой площадью 145 м² расположен на 1 этаже во встроенно-пристроенном к жилому дому здании. Арендатор — аптека «Столички». В помещении с витринным остеклением организован отдельный вход с улицы. Перед зданием находится бесплатная парковка.

58 350 000 ₽

402 000 ₽ за м²

Метро:
Алтуфьево :
pedestrian  3 минуты пешком
Адрес: Лескова, 6
Площадь: 145 м²
Назначение: магазин аптека бижутерия сувениры
Высота потолков: 3 метра
Отделка: С отделкой
Парковка: бесплатная перед зданием
Электрическая мощность (кВт): 60
Линия: Первая
Тип входа: Отдельный с улицы
Витрины есть
expert

Александр

Руководитель проекта

Для уточнения и фиксирования цены можно связаться напрямую с брокером

+7 (495) 106-19-99

Расположение на карте

Похожие лоты

Мы включили в наш каталог лучшие предложения по коммерческой недвижимости в Москве.

Новинка
lot-14845
lot-14845
lot-14845
lot-14845
lot-14845
lot-14845
lot-14845
lot-14845
8
Помещение под сувениры, 151 м²

Продажа | Лот 32172

Москва Милашенкова, 22

Площадь: 151 м²

Назначение: Торговое помещение под  магазин стоматология бижутерия сувениры

Арендаторы: sg gental clinic

Доходность: 6%, 305 000 ₽/мес

Окупаемость: 16 лет

Готовый арендный бизнес на 1-й линии улицы Милашенкова в Бутырском районе. Большой пешеходный и автомобильный трафик, рядом остановка...

58 500 000 ₽

387 000 ₽ за м²

Новинка
lot-16944
lot-16944
lot-16944
lot-16944
4
Помещение под сувениры, 77 м²

Продажа | Лот 53933

Москва Ларионова, с6

Коммерческое угловое помещение в Даниловском районе. Ритейл находится в жилом комплексе «Шагал» на 20 000 жителей, в проекте спланированы...

58 500 000 ₽

760 000 ₽ за м²

Новинка
lot-12771
lot-12771
2
Помещение под сувениры, 66 м²

Продажа | Лот 16333

ЦСКА 1 мин

Москва Ходынское поле

Ритейл в комплексе Stone Ходынка. Ритейл площадью 66 м² расположен на 2 этаже из 18, без отделки. Окна: панорамные, энергоэффективный стеклопакет,...

58 299 000 ₽

883 000 ₽ за м²

Новинка
lot-16300
lot-16300
lot-16300
lot-16300
lot-16300
lot-16300
lot-16300
7
Помещение под сувениры, 145 м²

Аренда | Лот 49683

Москва Сельскохозяйственная, 35

Коммерческое помещение на первой линии Сельскохозяйственной улицы в Останкинском районе. Обеспечен интенсивный пешеходный и автомобильный...

450 000 ₽ / месяц

37 000 ₽ за м² / год

Новинка
lot-14252
lot-14252
lot-14252
lot-14252
lot-14252
lot-14252
6
Помещение под сувениры, 145 м²

Продажа | Лот 19075

Москва Мытищи, Институтская, 6

Площадь: 145 м²

Назначение: Торговое помещение под  магазин бижутерия сувениры

Арендаторы: Салон Тортов

Доходность: 6%, 157 000 ₽/мес

Окупаемость: 18 лет

Готовый арендный бизнес в Мытищах. Жилой развивающийся район, обеспечен интенсивный автомобильный и пешеходный трафик. Окружение...

34 000 000 ₽

234 000 ₽ за м²

Новинка
lot-14285
lot-14285
lot-14285
3
Помещение под сувениры, 144 м²

Продажа | Лот 19158

Селигерская 2 мин

Москва Дмитровское шоссе, 89

Коммерческое помещение на 1-й линии Селигерской улицы в Бескудниковском районе. Объект находится возле парка имени Святослава Фёдорова...

108 300 000 ₽

752 000 ₽ за м²

Позвонить эксперту max whatsapp telegram
Каширская
Академический
ЦАО
Академический