Арендный бизнес на Производственной, 475 м², лот - 44254

Продажа | Лот 44254

Image 0
Image 1
Image 2
Image 3
4
Image 0 Image 1 Image 2 Image 3
197000000 RUB

197 000 000 ₽

415 000 ₽ за м²

Арендаторы: магнит
МАП: 1 860 000 ₽
ГАП: 22 320 000 ₽
Окупаемость:
9 лет
Доходность:
11%
Метро:
Новопеределкино :
pedestrian  10 минут пешком
Район/округ: Солнцево / ЗАО
Адрес: Производственная, 19Ас2
Площадь: 475 м²
Назначение: магазин супермаркет бижутерия сувениры
Высота потолков: 4 метра
Отделка: С отделкой
Парковка: большая наземная парковка перед фасадом
Электрическая мощность (кВт): 94
Зона разгрузки: Есть
Тип входа: Отдельный с улицы
Витрины есть

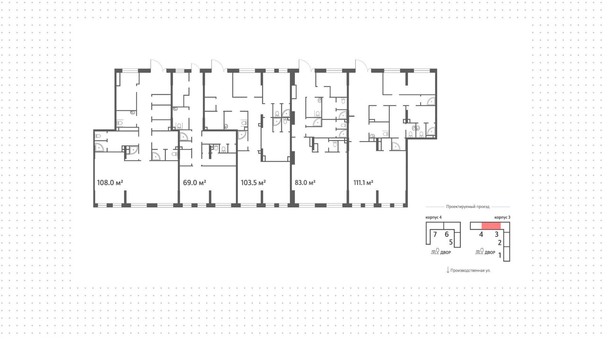
Готовый арендный бизнес на Производственной улице в Солнцево. Объект находится в жилом комплексе «Лучи», рядом школа с детским садом на 1 700 мест и железнодорожный переезд. Обеспечен интенсивный пешеходный и автомобильный трафик. Окружение — супермаркет «Пятёрочка», строительные магазины. За 10 минут можно пешком дойти до станции МЦД-4 «Новопеределкино».

Ритейл с открытой планировкой площадью 475 м² расположен на первом этаже в жилом доме. Помещение из блоков площадью 111, 108, 104, 83 и 69 м² занимает супермаркет «Магнит». Отдельные входы с улицы с зоной разгрузки, витринное остекление. Предусмотрено место для рекламы на фасаде. Возле дома организована большая наземная парковка.

197 000 000 ₽

415 000 ₽ за м²

Арендаторы: магнит
МАП: 1 860 000 ₽
ГАП: 22 320 000 ₽
Окупаемость:
9 лет
Доходность:
11%
Метро:
Новопеределкино :
pedestrian  10 минут пешком
Район/округ: Солнцево / ЗАО
Адрес: Производственная, 19Ас2
Площадь: 475 м²
Назначение: магазин супермаркет бижутерия сувениры
Высота потолков: 4 метра
Отделка: С отделкой
Парковка: большая наземная парковка перед фасадом
Электрическая мощность (кВт): 94
Зона разгрузки: Есть
Тип входа: Отдельный с улицы
Витрины есть
expert

Елена

Эксперт проекта

Для уточнения и фиксирования цены можно связаться напрямую с брокером

+7 (495) 106-19-99

Расположение на карте

Назначения
Похожие лоты

Мы включили в наш каталог лучшие предложения по коммерческой недвижимости в Москве.

Новинка
lot-15843
lot-15843
2
Помещение под сувениры, 329 м²

Продажа | Лот 45754

Москва Чечёрский проезд, 28с1

Площадь: 329 м²

Назначение: Торговое помещение под  магазин супермаркет бижутерия сувениры

Арендаторы: Магнит

Доходность: 11%, 1 642 000 ₽/мес

Окупаемость: 10 лет

Готовый арендный бизнес на первой линии Чечёрского проезда в Южном Бутово. Жилой район, рядом коттеджный посёлок, детские сады и остановка...

197 000 000 ₽

599 000 ₽ за м²

Новинка
lot-11798
lot-11798
lot-11798
lot-11798
lot-11798
lot-11798
6
Помещение под сувениры, 771 м²

Продажа | Лот 14403

ВДНХ 8 мин

Москва Цандера, 8

Площадь: 771 м²

Назначение: Торговое помещение под  магазин супермаркет общепит бижутерия сувениры

Арендаторы: “ВкусВилл”, офисные помещения, цех по приготовлению еды – dark kitchen, оборудование ПАО «МТС», ПАО «Вымпелком», ООО «Т2 мобайл» (крыша здания)

Доходность: 9%, 1 500 000 ₽/мес

Окупаемость: 11 лет

Готовый арендный бизнес на 1-й линии улицы Цандера в Останкинском районе. Интенсивный поток пешеходного и автомобильного трафика,...

198 000 000 ₽

257 000 ₽ за м²

Новинка
lot-12924
lot-12924
2
Помещение под сувениры, 401 м²

Продажа | Лот 9990

ЦСКА 1 мин

Москва Ходынское поле

Площадь: 401 м²

Назначение: Торговое помещение под  офис рабочее место

195 141 000 ₽

487 000 ₽ за м²

Новинка
lot-14898
lot-14898
lot-14898
3
Помещение под сувениры, 477 м²

Продажа | Лот 33680

Москва проспект Вернадского, 15

Площадь: 477 м²

Назначение: Торговое помещение под  магазин супермаркет бижутерия сувениры

Арендаторы: магнит

Доходность: 10%, 1 625 000 ₽/мес

Окупаемость: 10 лет

Готовый арендный бизнес на 1-й линии Крупской улицы в Ломоносовском районе. Вдоль проспекта Вернадского обеспечен интенсивный пешеходный...

195 000 000 ₽

409 000 ₽ за м²

Новинка
lot-14161
lot-14161
lot-14161
lot-14161
lot-14161
5
Помещение под сувениры, 478 м²

Продажа | Лот 18863

Москва Лесной Городок, Фасадная, 10B

Площадь: 478 м²

Назначение: Торговое помещение под  магазин супермаркет бижутерия сувениры

Доходность: 6%, 654 000 ₽/мес

Окупаемость: 17 лет

Готовый арендный бизнес на Фасадной улице в посёлке Лесной Городок. Жилой район, близость остановки общественного транспорта, школы,...

133 500 000 ₽

279 000 ₽ за м²

Новинка
lot-14953
lot-14953
lot-14953
lot-14953
lot-14953
lot-14953
lot-14953
lot-14953
8
Помещение под сувениры, 472 м²

Продажа | Лот 34202

Москва Вольная, 35с4

Площадь: 472 м²

Назначение: Торговое помещение под  магазин супермаркет бижутерия сувениры

Арендаторы: пятерочка

Доходность: 10%, 966 000 ₽/мес

Окупаемость: 11 лет

Готовый арендный бизнес на первой линии Вольной улицы в районе Соколиная Гора. Строится жилой комплекс «Семеновский Парк 2», рядом...

127 500 000 ₽

270 000 ₽ за м²

Позвонить эксперту whatsapp telegram
Каширская
Академический
ЦАО
Академический