Арендный бизнес на Лобненской, 685 м², лот - 40785

Продажа | Лот 40785

Image 0
Image 1
Image 2
3
Image 0 Image 1 Image 2
194830788 RUB

194 831 000 ₽

284 000 ₽ за м²

Арендаторы: ВкусВилл доставка
МАП: 1 709 000 ₽
ГАП: 20 509 000 ₽
Окупаемость:
10 лет
Доходность:
11%
Район/округ: Дмитровский / САО
Адрес: Лобненская, 14
Площадь: 685 м²
Назначение: магазин бижутерия сувениры
Высота потолков: 5 метров
Отделка: С отделкой
Парковка: перед фасадом на 22 места
Зона разгрузки: Есть
Линия: Первая
Тип входа: Отдельный с улицы
Витрины есть

Готовый арендный бизнес на первой линии Лобненской улицы в Дмитровском районе. Большой поток пешеходного и автомобильного трафика, рядом остановка общественного транспорта и детские сады. Окружение — пиццерия «Папа Джонс», супермаркеты «Пятёрочка», «Магнит», пункты выдачи Wildberries и OZON, аптека «Горздрав».

Объект с открытой планировкой площадью 685 м² расположен на первом этаже в торговом центре «Зодиак». Арендатор — даркстор «ВкусВилл». В помещении проведены центральные коммуникации. Три отдельных входа с улицы и один со стороны торговой зоны, предусмотрены зона разгрузки и место для рекламы на фасаде. Возле здания находится парковка на двадцать два места.

194 831 000 ₽

284 000 ₽ за м²

Арендаторы: ВкусВилл доставка
МАП: 1 709 000 ₽
ГАП: 20 509 000 ₽
Окупаемость:
10 лет
Доходность:
11%
Район/округ: Дмитровский / САО
Адрес: Лобненская, 14
Площадь: 685 м²
Назначение: магазин бижутерия сувениры
Высота потолков: 5 метров
Отделка: С отделкой
Парковка: перед фасадом на 22 места
Зона разгрузки: Есть
Линия: Первая
Тип входа: Отдельный с улицы
Витрины есть
expert

Александр

Руководитель проекта

Для уточнения и фиксирования цены можно связаться напрямую с брокером

+7 (495) 106-19-99

Расположение на карте

Назначения
Похожие лоты

Мы включили в наш каталог лучшие предложения по коммерческой недвижимости в Москве.

Новинка
lot-15184
lot-15184
lot-15184
lot-15184
lot-15184
5
Помещение под сувениры, 424 м²

Продажа | Лот 40908

Тульская 8 мин

Москва Самаринская, 1

Площадь: 424 м²

Назначение: Торговое помещение под  магазин супермаркет бижутерия сувениры

Арендаторы: пятерочка

Доходность: 9%, 1 354 000 ₽/мес

Окупаемость: 12 лет

Готовый арендный бизнес на первой линии Самаринской улицы в Даниловском районе. Обеспечен интенсивный автомобильный и пешеходный...

195 000 000 ₽

460 000 ₽ за м²

Новинка
lot-9829
lot-9829
lot-9829
lot-9829
4
Помещение под сувениры, 462 м²

Продажа | Лот 12256

Москва посёлок Заречье, Луговая, 3

Площадь: 462 м²

Назначение: Торговое помещение под  магазин супермаркет бижутерия сувениры

Доходность: 8%, 1 250 000 ₽/мес

Окупаемость: 13 лет

Готовый арендный бизнес в посёлке Заречье. Жилой развивающийся район, быстрый выезд на МКАД, рядом строительный гипермаркет и автосалоны...

195 000 000 ₽

422 000 ₽ за м²

Новинка
lot-12074
lot-12074
2
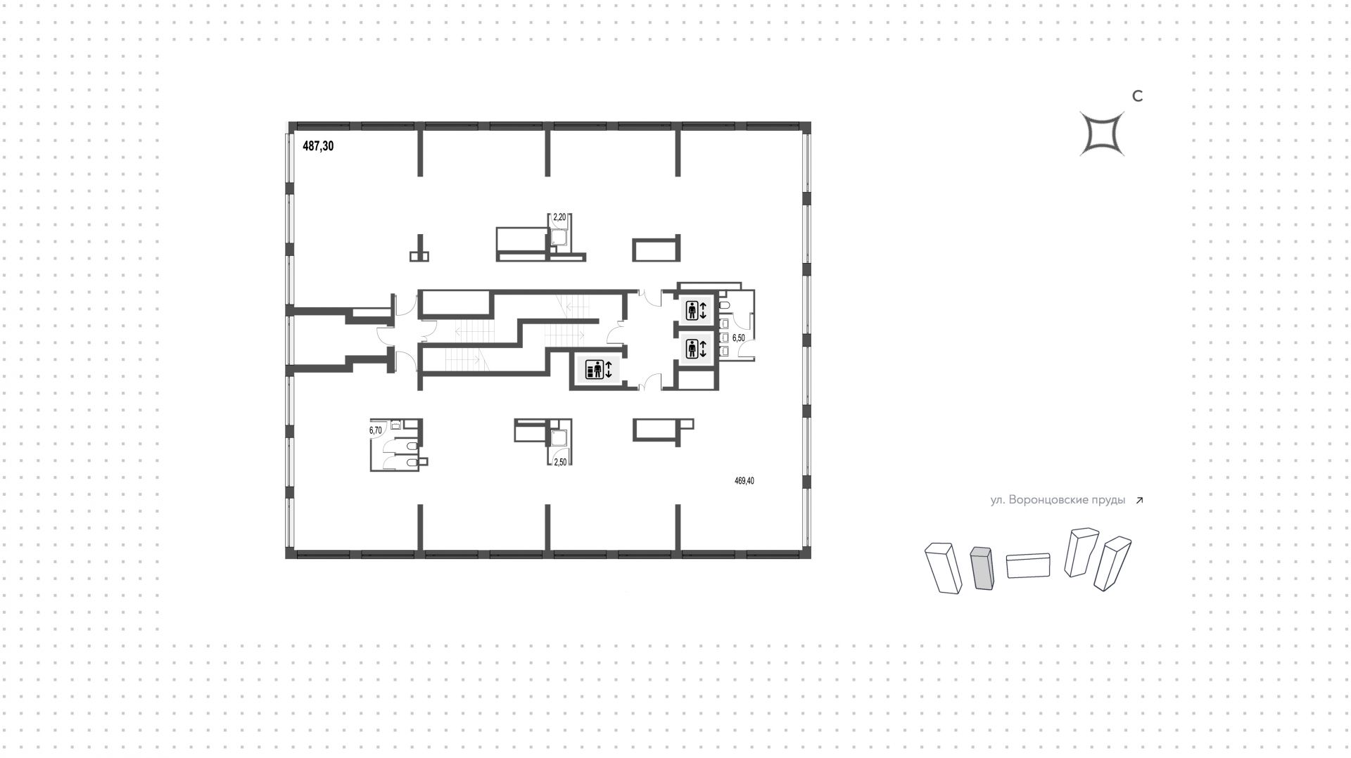
Помещение под сувениры, 487 м²

Продажа | Лот 15101

Калужская 14 мин

Москва Академика Челомея, 7

Площадь: 487 м²

Назначение: Торговое помещение под  офис рабочее место

194 239 000 ₽

399 000 ₽ за м²

Новинка
lot-14946
lot-14946
lot-14946
lot-14946
lot-14946
lot-14946
lot-14946
lot-14946
lot-14946
lot-14946
lot-14946
lot-14946
lot-14946
lot-14946
14
Помещение под сувениры, 692 м²

Аренда | Лот 34197

Добрынинская 6 мин Павелецкая 5 мин

Москва Валовая, 20

Коммерческое помещение на первой линии домов, на пересечении Валовой улицы и 3-го Монетчиковского переулка, в Замоскворечье. Близость...

3 116 000 ₽ / месяц

54 000 ₽ за м² / год

Новинка
lot-15504
lot-15504
lot-15504
3
Помещение под сувениры, 696 м²

Продажа | Лот 570

Москва Смирновская, 25с1

Площадь: 696 м²

Назначение: Торговое помещение под  магазин супермаркет пункт выдачи бижутерия сувениры

Арендаторы: супермаркет «Пятерочка»

Доходность: 8%, 705 000 ₽/мес

Окупаемость: 13 лет

Готовый арендный бизнес на первой линии Смирновской улицы в Нижегородском районе. Большой поток пешеходного и автомобильного трафика,...

110 000 000 ₽

158 000 ₽ за м²

Новинка
lot-14907
lot-14907
lot-14907
lot-14907
lot-14907
lot-14907
lot-14907
lot-14907
8
Помещение под сувениры, 683 м²

Аренда | Лот 33840

Жулебино 2 мин

Москва Авиаконструктора Миля, 7

Коммерческое помещение на 1-й линии улицы Авиаконструктора Миля в районе Выхино-Жулебино. Ритейл находится возле детской поликлиники...

1 500 000 ₽ / месяц

26 000 ₽ за м² / год

Позвонить эксперту whatsapp telegram
Каширская
Академический
ЦАО
Академический