Арендный бизнес на Летниковской, 62 м², лот - 16423

Продажа | Лот 16423

Image 0
Image 1
Image 2
Image 3
Image 4
Image 5
6
Image 0 Image 1 Image 2 Image 3 Image 4 Image 5
69700000 RUB

69 700 000 ₽

1 124 000 ₽ за м²

Арендаторы: кафе мармарис
МАП: 600 000 ₽
ГАП: 7 200 000 ₽
Окупаемость:
10 лет
Доходность:
10%
Метро:
Павелецкая :
pedestrian  9 минут пешком
Район/округ: Замоскворечье / ЦАО
Адрес: Летниковская, 4с3
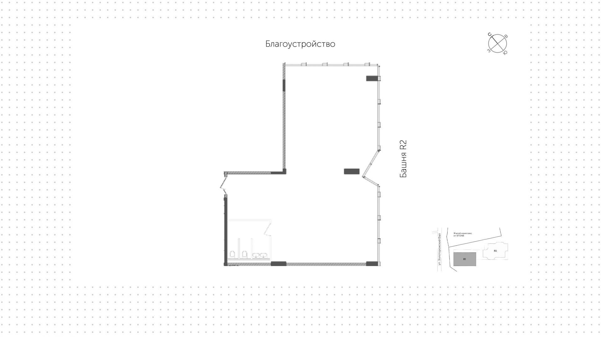
Площадь: 62 м²
Назначение: магазин кафе бижутерия сувениры
Высота потолков: 5.5 метров
Отделка: Без отделки
Парковка: городская платная парковка через дорогу
Линия: Первая
Тип входа: Отдельный с улицы
Витрины есть

Готовый арендный бизнес в Замоскворечье. Обеспечен интенсивный пешеходный трафик. Окружение — парикмахерская Unisexe, зоосалон Pets Zone, салон красоты Miy-Miy, лаборатория «Гемотест». За 9 минут пешком можно дойти до станции метро «Павелецкая».

Объект с открытой планировкой площадью 62 м² расположен на 1-м этаже в жилом комплексе Voxhall. Арендатор — кафе «Мармарис». У помещения витринное остекление, оборудована вытяжка, организован отдельный вход с улицы. Перед зданием находится бесплатная парковка.

69 700 000 ₽

1 124 000 ₽ за м²

Арендаторы: кафе мармарис
МАП: 600 000 ₽
ГАП: 7 200 000 ₽
Окупаемость:
10 лет
Доходность:
10%
Метро:
Павелецкая :
pedestrian  9 минут пешком
Район/округ: Замоскворечье / ЦАО
Адрес: Летниковская, 4с3
Площадь: 62 м²
Назначение: магазин кафе бижутерия сувениры
Высота потолков: 5.5 метров
Отделка: Без отделки
Парковка: городская платная парковка через дорогу
Линия: Первая
Тип входа: Отдельный с улицы
Витрины есть
expert

Наталья

Эксперт проекта

Для уточнения и фиксирования цены можно связаться напрямую с брокером

+7 (495) 106-19-99

Расположение на карте

Похожие лоты

Мы включили в наш каталог лучшие предложения по коммерческой недвижимости в Москве.

Новинка
lot-12910
lot-12910
lot-12910
3
Помещение под сувениры, 279 м²

Продажа | Лот 16891

Москва Развилка, Римский проезд, 15

Коммерческое помещение в посёлке Развилка. Жилой развивающийся район, обеспечен интенсивный пешеходный трафик. Окружение — пункты...

69 750 000 ₽

250 000 ₽ за м²

Новинка
lot-8868
lot-8868
lot-8868
lot-8868
4
Помещение под сувениры, 164 м²

Продажа | Лот 10372

Бульвар Рокоссовского 7 мин

Москва Тюменский проезд, 3с3

Площадь: 164 м²

Назначение: Торговое помещение под  магазин аптека бижутерия сувениры

Доходность: 8%, 448 000 ₽/мес

Окупаемость: 13 лет

Готовый арендный бизнес в Тюменском проезде в Богородском районе. Жилой развивающийся район, большой поток пешеходного и автомобильного...

69 900 000 ₽

426 000 ₽ за м²

Новинка
lot-13405
lot-13405
2
Помещение под сувениры, 144 м²

Продажа | Лот 13755

Площадь Ильича 9 мин Римская 9 мин

Москва Золоторожский Вал, 11/1

Площадь: 144 м²

Назначение: Торговое помещение под  офис рабочее место

69 695 000 ₽

484 000 ₽ за м²

Новинка
lot-10389
lot-10389
2
Помещение под сувениры, 62 м²

Продажа | Лот 11940

Москва поселение Сосенское

Площадь: 62 м²

13 962 000 ₽

225 000 ₽ за м²

Новинка
lot-15027
lot-15027
lot-15027
3
Помещение под сувениры, 62 м²

Продажа | Лот 34678

Москва Середнево, Братьев Бромлей, с4.3

Коммерческое помещение на первой линии домов в деревне Середнево. Жилой развивающийся район, обеспечен интенсивный автомобильный...

25 000 000 ₽

403 000 ₽ за м²

Новинка
lot-14730
lot-14730
lot-14730
3
Помещение под сувениры, 62 м²

Продажа | Лот 30983

Москва Новомихайловское шоссе, с2

Площадь: 62 м²

Назначение: Торговое помещение под  магазин аптека бижутерия сувениры

Арендаторы: Ригла

Доходность: 9%, 212 000 ₽/мес

Окупаемость: 11 лет

Готовый арендный бизнес в Коммунарке. Рядом школа, 2 детских сада, остановка общественного транспорта напротив помещения. Обеспечен...

28 000 000 ₽

452 000 ₽ за м²

Позвонить эксперту whatsapp telegram
Каширская
Академический
ЦАО
Академический