Помещение на Динамовской, 336 м², лот - 7048

Продажа | Лот 7048

Image 0
Image 1
Image 2
Image 3
Image 4
Image 5
Image 6
Image 7
Image 8
Image 9
Image 10
11
Image 0 Image 1 Image 2 Image 3 Image 4 Image 5 Image 6 Image 7 Image 8 Image 9 Image 10
1500000 RUB

1 500 000 ₽ в месяц

54 000 ₽ за м² в год

Метро:
Крестьянская застава :
pedestrian  1 минута пешком
Пролетарская :
pedestrian  1 минута пешком
Район/округ: Таганский / ЦАО
Адрес: Динамовская, 1А
Площадь: 336 м²
Назначение: ресторан магазин свободное супермаркет спортзал кафе общепит бижутерия бизнес сувениры
Высота потолков: 8 метров
Отделка: Без отделки
Парковка: платная напротив здания
Электрическая мощность (кВт): 46
Зона разгрузки: Есть
Линия: Первая
Тип входа: Отдельный с улицы
Витрины есть

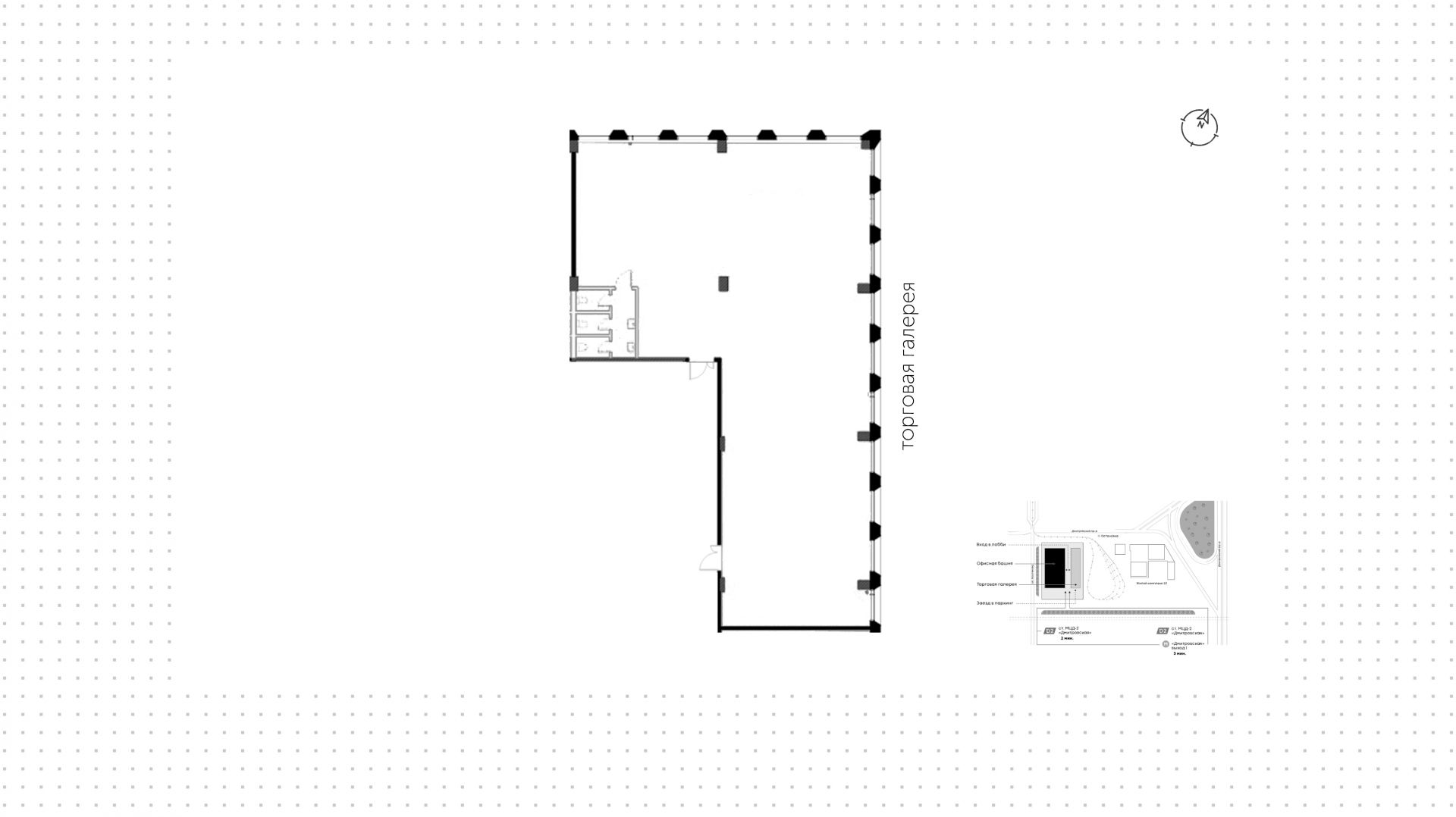
Коммерческое помещение на первой линии домов, на пересечении улиц Динамовская и Воронцовская, в Таганском районе. Большой поток пешеходного и автомобильного трафика, рядом остановка общественного транспорта и пешеходный переход. Окружение — торговый центр «Метромаркет», кафе «Вареничная № 1», фитнес-клуб «Йога». За одну минуту можно пешком дойти до станций метро «Крестьянская застава» и «Пролетарская».

Объект с открытой планировкой площадью 336 м² расположен на втором этаже с антресолью в нежилом здании. Первый этаж площадью 246 м², антpеcоль — 90 м², в помещении установлены лифт и вытяжка. Отдельный вход с улицы на второй этаж, можно организовать летнюю веранду на эксплуатируемой кровле. Предусмотрена возможность размещения рекламы на фасаде по периметру. Городская платная парковка находится перед зданием.

1 500 000 ₽ в месяц

54 000 ₽ за м² в год

Метро:
Крестьянская застава :
pedestrian  1 минута пешком
Пролетарская :
pedestrian  1 минута пешком
Район/округ: Таганский / ЦАО
Адрес: Динамовская, 1А
Площадь: 336 м²
Назначение: ресторан магазин свободное супермаркет спортзал кафе общепит бижутерия бизнес сувениры
Высота потолков: 8 метров
Отделка: Без отделки
Парковка: платная напротив здания
Электрическая мощность (кВт): 46
Зона разгрузки: Есть
Линия: Первая
Тип входа: Отдельный с улицы
Витрины есть
expert

Евгений

Эксперт проекта

Для уточнения и фиксирования цены можно связаться напрямую с брокером

+7 (495) 106-19-99

Расположение на карте

Похожие лоты

Мы включили в наш каталог лучшие предложения по коммерческой недвижимости в Москве.

Новинка
lot-10397
lot-10397
2
Помещение под сувениры, 32 м²

Продажа | Лот 11970

Москва поселение Сосенское

Площадь: 32 м²

10 210 000 ₽

319 000 ₽ за м²

Новинка
lot-11498
lot-11498
2
Помещение под сувениры, 38 м²

Продажа | Лот 11161

Москва Скотопрогонная, 31А

Площадь: 38 м²

12 573 000 ₽

331 000 ₽ за м²

Новинка
lot-11502
lot-11502
2
Помещение под сувениры, 39 м²

Продажа | Лот 11198

Москва Скотопрогонная, 31А

Площадь: 39 м²

13 002 000 ₽

333 000 ₽ за м²

Новинка
lot-10750
lot-10750
2
Помещение под сувениры, 336 м²

Продажа | Лот 12806

Дмитровская 5 мин

Москва Дмитровский проезд, 1Г

Площадь: 336 м²

Назначение: Торговое помещение под  офис рабочее место

143 851 000 ₽

428 000 ₽ за м²

Новинка
lot-10755
lot-10755
2
Помещение под сувениры, 336 м²

Продажа | Лот 12811

Дмитровская 5 мин

Москва Дмитровский проезд, 1Г

Площадь: 336 м²

Назначение: Торговое помещение под  офис рабочее место

145 531 000 ₽

433 000 ₽ за м²

Новинка
lot-14198
lot-14198
lot-14198
lot-14198
lot-14198
5
Помещение под сувениры, 335 м²

Продажа | Лот 18941

Москва Летний Отдых, Зелёная, 1А

Площадь: 335 м²

Назначение: Торговое помещение под  магазин супермаркет бижутерия сувениры

Арендаторы: Пятерочка

Доходность: 12%, 694 000 ₽/мес

Окупаемость: 9 лет

Готовый арендный бизнес в посёлке Летний Отдых. Объект располагается на 1-й линии Октябрьской улицы, обеспечен интенсивный автомобильный...

75 000 000 ₽

224 000 ₽ за м²

Позвонить эксперту whatsapp telegram
Каширская
Академический
ЦАО
Академический