Помещение на Берзарина, 137 м², лот - 6734

Продажа | Лот 6734

Image 0
Image 1
Image 2
Image 3
Image 4
Image 5
Image 6
Image 7
8
Image 0 Image 1 Image 2 Image 3 Image 4 Image 5 Image 6 Image 7
500000 RUB

500 000 ₽ в месяц

44 000 ₽ за м² в год

Район/округ: Щукино / СЗАО
Адрес: Берзарина, 30А
Площадь: 137 м²
Назначение: ресторан магазин свободное банк салон красоты супермаркет алко-маркет бижутерия бизнес парикмахерская сувениры
Высота потолков: 5 метров
Отделка: Без отделки
Парковка: перед фасадом здания
Электрическая мощность (кВт): 50
Зона разгрузки: Есть
Тип входа: Отдельный с улицы
Витрины есть

Коммерческое помещение в Щукино. Развивающийся район, ритейл находится около технопарка, рядом вход в офис управляющей компании, обеспечен большой пешеходный и автомобильный трафик. Окружение — пункт выдачи «Яндекс Маркет», алкомаркет «Красное&Белое», суши-бар Hatimaki, студия маникюра Fresh Nail Bar.

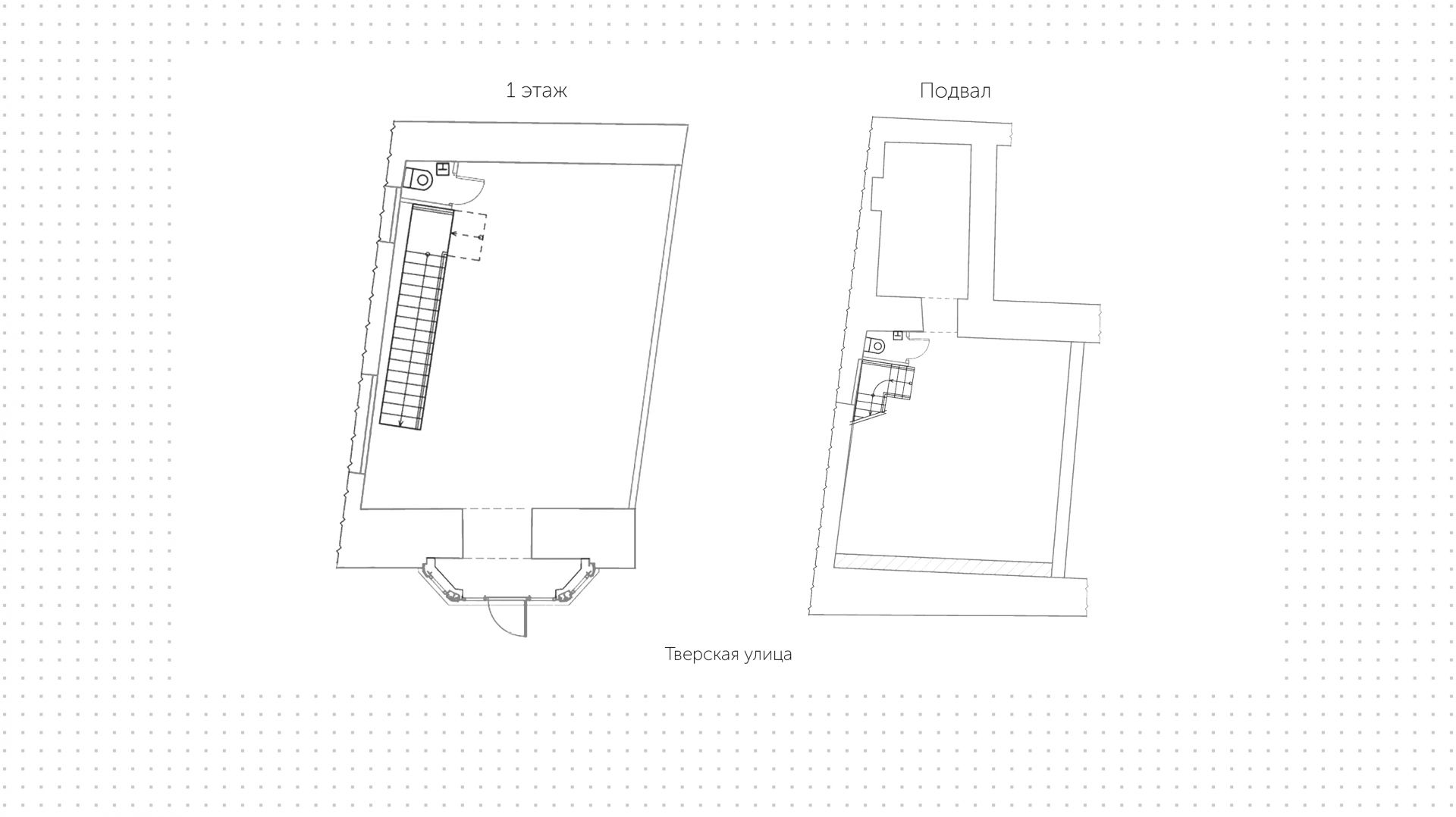
Объект с открытой планировкой площадью 137 м² расположен на 1-м этаже в жилом комплексе «Октябрьское поле». Установлена вытяжка, помещение подойдет под размещение ресторана, салона красоты или супермаркета. Два отдельных входа с улицы, витринное остекление, предусмотрена зона разгрузки. Парковка находится перед зданием.

500 000 ₽ в месяц

44 000 ₽ за м² в год

Район/округ: Щукино / СЗАО
Адрес: Берзарина, 30А
Площадь: 137 м²
Назначение: ресторан магазин свободное банк салон красоты супермаркет алко-маркет бижутерия бизнес парикмахерская сувениры
Высота потолков: 5 метров
Отделка: Без отделки
Парковка: перед фасадом здания
Электрическая мощность (кВт): 50
Зона разгрузки: Есть
Тип входа: Отдельный с улицы
Витрины есть
expert

Наталья

Эксперт проекта

Для уточнения и фиксирования цены можно связаться напрямую с брокером

+7 (495) 106-19-99

Расположение на карте

Похожие лоты

Мы включили в наш каталог лучшие предложения по коммерческой недвижимости в Москве.

Новинка
lot-10397
lot-10397
2
Помещение под сувениры, 32 м²

Продажа | Лот 11970

Москва поселение Сосенское

Площадь: 32 м²

10 210 000 ₽

319 000 ₽ за м²

Новинка
lot-11498
lot-11498
2
Помещение под сувениры, 38 м²

Продажа | Лот 11161

Москва Скотопрогонная, 31А

Площадь: 38 м²

12 573 000 ₽

331 000 ₽ за м²

Новинка
lot-11502
lot-11502
2
Помещение под сувениры, 39 м²

Продажа | Лот 11198

Москва Скотопрогонная, 31А

Площадь: 39 м²

13 002 000 ₽

333 000 ₽ за м²

Новинка
lot-14011
lot-14011
lot-14011
lot-14011
4
Помещение под сувениры, 137 м²

Продажа | Лот 18446

Москва Любучанская, 2с1

Коммерческое помещение на 1-й линии Любучанского переулка в Щербинке. Близость Остафьевского шоссе, остановки общественного транспорта...

34 325 000 ₽

251 000 ₽ за м²

Новинка
lot-14200
lot-14200
lot-14200
lot-14200
4
Помещение под сувениры, 137 м²

Продажа | Лот 18988

Войковская 10 мин

Москва Космонавта Волкова, 6А

Площадь: 137 м²

Назначение: Торговое помещение под  магазин бижутерия сувениры

Арендаторы: Яндекс еда

Доходность: 9%, 264 000 ₽/мес

Окупаемость: 12 лет

Готовый арендный бизнес в Войковском районе. Обеспечен интенсивный автомобильный и пешеходный трафик. Окружение — кафе «Вкусная...

37 985 000 ₽

277 000 ₽ за м²

Новинка
lot-14742
lot-14742
lot-14742
lot-14742
lot-14742
lot-14742
6
Помещение под сувениры, 136 м²

Продажа | Лот 30987

Марьина Роща 3 мин

Москва Сущёвский Вал, 53

Площадь: 136 м²

Назначение: Торговое помещение под  магазин супермаркет бижутерия сувениры

Арендаторы: заряд от магнита

Доходность: 10%, 1 563 000 ₽/мес

Окупаемость: 10 лет

Готовый арендный бизнес на 1-й линии улицы Сущёвский Вал в районе Марьина Роща. В радиусе 500 метров более 5 425 квартир, в ближайших бизнес-центрах...

187 542 000 ₽

1 379 000 ₽ за м²

Позвонить эксперту whatsapp telegram
Каширская
Академический
ЦАО
Академический