Помещение на Бехтерева, 81 м², лот - 15700

Продажа | Лот 15700

Image 0
Image 1
Image 2
Image 3
4
Image 0 Image 1 Image 2 Image 3
320000 RUB

320 000 ₽ в месяц

47 000 ₽ за м² в год

Адрес: Бехтерева, 41с1
Площадь: 81 м²
Назначение: магазин свободное салон красоты супермаркет кафе пункт выдачи алко-маркет бижутерия бизнес парикмахерская сувениры
Высота потолков: 3.7 метра
Отделка: Whitebox
Парковка: перед фасадом
Электрическая мощность (кВт): 100
Зона разгрузки: Есть
Линия: Первая
Тип входа: Отдельный со двора
Витрины есть

Коммерческое помещение на 1-й линии улицы Бехтерева в Царицыно. Жилой район, рядом парк «Аршиновский» и остановка общественного транспорта. Большой пешеходный и автомобильный трафик. Окружение — супермаркет «Магнит», алкомаркеты «Винлаб», «Красное&Белое», пункты выдачи «Яндекс Маркет», OZON, Wildberries.

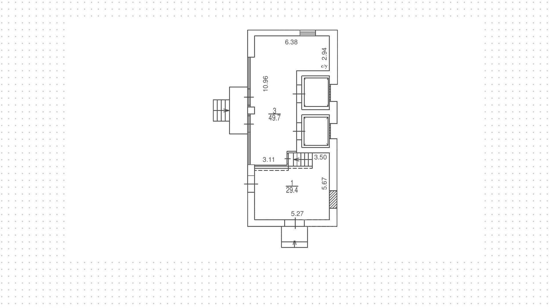
Объект с комбинированной планировкой площадью 81 м² расположен на 1-м этаже в жилом доме. В помещении проведены инженерные коммуникации. Возможно разделение на блоки, спланированы 5 отдельных входов с улицы и со двора с пандусом и зоной разгрузки, витринное остекление. Организовано место для рекламы на фасаде. Вдоль дома предусмотрена парковка.

320 000 ₽ в месяц

47 000 ₽ за м² в год

Адрес: Бехтерева, 41с1
Площадь: 81 м²
Назначение: магазин свободное салон красоты супермаркет кафе пункт выдачи алко-маркет бижутерия бизнес парикмахерская сувениры
Высота потолков: 3.7 метра
Отделка: Whitebox
Парковка: перед фасадом
Электрическая мощность (кВт): 100
Зона разгрузки: Есть
Линия: Первая
Тип входа: Отдельный со двора
Витрины есть
expert

Евгений

Эксперт проекта

Для уточнения и фиксирования цены можно связаться напрямую с брокером

+7 (495) 106-19-99

Расположение на карте

Похожие лоты

Мы включили в наш каталог лучшие предложения по коммерческой недвижимости в Москве.

Новинка
lot-10397
lot-10397
2
Помещение под сувениры, 32 м²

Продажа | Лот 11970

Москва поселение Сосенское

Площадь: 32 м²

10 210 000 ₽

319 000 ₽ за м²

Новинка
lot-11498
lot-11498
2
Помещение под сувениры, 38 м²

Продажа | Лот 11161

Москва Скотопрогонная, 31А

Площадь: 38 м²

12 573 000 ₽

331 000 ₽ за м²

Новинка
lot-11502
lot-11502
2
Помещение под сувениры, 39 м²

Продажа | Лот 11198

Москва Скотопрогонная, 31А

Площадь: 39 м²

13 002 000 ₽

333 000 ₽ за м²

Новинка
lot-15823
lot-15823
lot-15823
lot-15823
lot-15823
5
Помещение под сувениры, 81 м²

Аренда | Лот 45420

Локомотив 9 мин Черкизовская 9 мин

Москва Амурская, 2Ас2

Коммерческое помещение на Амурской улице в Гольяново. Развивающийся район, ритейл находится в жилом комплексе «Амурский парк», обеспечен...

340 000 ₽ / месяц

50 000 ₽ за м² / год

Новинка
lot-16596
lot-16596
lot-16596
lot-16596
lot-16596
lot-16596
lot-16596
7
Помещение под сувениры, 81 м²

Аренда | Лот 51294

Фрунзенская 2 мин

Москва Комсомольский проспект, 24с1

Коммерческое помещение на первой линии переулка Хользунова в Хамовниках. Благодаря близости Московского дворца молодёжи и парку...

977 000 ₽ / месяц

145 000 ₽ за м² / год

Новинка
lot-14453
lot-14453
2
Помещение под сувениры, 80 м²

Продажа | Лот 28612

Терехово 7 мин

Москва Нижние Мнёвники, 39/41

Ритейл в комплексе STONE Мневники. Ритейл площадью 80 м² расположен на 1 этаже из 12, без отделки. Окна: панорамные. Вид из окон: улица нижние...

111 918 000 ₽

1 399 000 ₽ за м²

Вы уже смотрели
Посмотреть все лоты
Позвонить эксперту max whatsapp telegram
Каширская
Академический
ЦАО
Академический