Арендный бизнес в поселении Коммунарка, 312 м², лот - 10082

Продажа | Лот 10082

Image 0
Image 1
Image 2
Image 3
Image 4
Image 5
Image 6
Image 7
Image 8
Image 9
Image 10
Image 11
12
Image 0 Image 1 Image 2 Image 3 Image 4 Image 5 Image 6 Image 7 Image 8 Image 9 Image 10 Image 11
82000000 RUB

82 000 000 ₽

263 000 ₽ за м²

Арендаторы: супермаркет «Верный»
МАП: 481 000 ₽
ГАП: 5 767 000 ₽
Окупаемость:
15 лет
Доходность:
7%
Адрес: Коммунарка, Александры Монаховой, 90с4
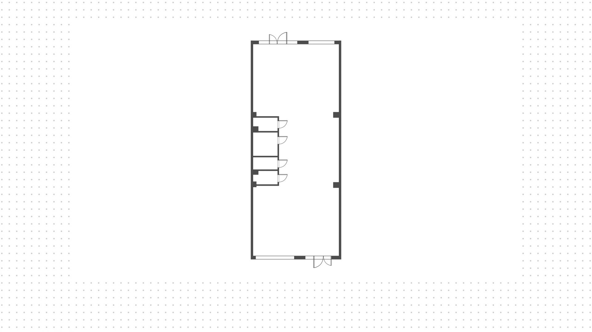
Площадь: 312 м²
Назначение: магазин продуктовый магазин бижутерия продукты сувениры
Высота потолков: 4.5 метра
Отделка: С отделкой
Парковка: бесплатная перед фасадом здания
Электрическая мощность (кВт): 62
Тип входа: Отдельный со двора
Витрины есть

Готовый арендный бизнес в посёлке Коммунарка. Жилой район, интенсивный поток пешеходного и автомобильного трафика, рядом школа и детские сады. Окружение — салон красоты Soda, супермаркет «Пятёрочка», спортивный центр «Счастливое время», аптеки «Здравсити» и «Горздрав».

Объект с открытой планировкой площадью 312 м² расположен на 1-м этаже жилого дома в центре комплекса «Бунинские луга». Арендатор — супермаркет «Верный». Предусмотрены два отдельных входа с улицы и один со двора, витринное остекление. Бесплатная парковка находится у здания.

82 000 000 ₽

263 000 ₽ за м²

Арендаторы: супермаркет «Верный»
МАП: 481 000 ₽
ГАП: 5 767 000 ₽
Окупаемость:
15 лет
Доходность:
7%
Адрес: Коммунарка, Александры Монаховой, 90с4
Площадь: 312 м²
Назначение: магазин продуктовый магазин бижутерия продукты сувениры
Высота потолков: 4.5 метра
Отделка: С отделкой
Парковка: бесплатная перед фасадом здания
Электрическая мощность (кВт): 62
Тип входа: Отдельный со двора
Витрины есть
expert

Алина

Брокер лота

Для уточнения и фиксирования цены можно связаться напрямую с брокером

+7 (495) 106-19-99

Расположение на карте

Назначения
Похожие лоты

Мы включили в наш каталог лучшие предложения по коммерческой недвижимости в Москве.

Новинка
lot-6896
lot-6896
lot-6896
lot-6896
lot-6896
5
Помещение под сувениры, 222 м²

Продажа | Лот 8600

Братиславская 5 мин Марьино 8 мин

Москва Перерва, 52

Площадь: 222 м²

Назначение: Торговое помещение под  магазин кафе пункт выдачи алко-маркет бижутерия сувениры

Арендаторы: алкомаркет «Винлаб», пункт выдачи OZON, мастерская «Дом Быта», кафе «Шаурма Пивасовна», магазин табака «Лавка Дыма»

Доходность: 9%, 621 000 ₽/мес

Окупаемость: 11 лет

Готовый арендный бизнес на 1-й линии улицы Перерва в Марьино. Жилой район, большой поток пешеходного и автомобильного трафика, рядом...

82 000 000 ₽

369 000 ₽ за м²

Новинка
lot-11573
lot-11573
lot-11573
lot-11573
4
Помещение под сувениры, 249 м²

Продажа | Лот 14054

Москва поселение Марушкинское, 33-й квартал, 3.3

Площадь: 249 м²

Назначение: Торговое помещение под  магазин супермаркет бижутерия сувениры

Арендаторы: Магнит

Доходность: 10%, 684 000 ₽/мес

Окупаемость: 10 лет

Готовый арендный бизнес во Внуково. Развивающийся район, в проекте предусмотрены детский сад и образовательный комплекс, обеспечен...

82 024 000 ₽

329 000 ₽ за м²

Новинка
lot-13775
lot-13775
2
Помещение под сувениры, 137 м²

Продажа | Лот 17788

ЦСКА 5 мин

Москва Ходынский бульвар, 4/1

Площадь: 137 м²

Назначение: Торговое помещение под  офис рабочее место

Офис в комплексе AIR. Офис площадью 137 м² расположен на 15 этаже. Без отделки. Окна: панорамные с солнцезащитными свойствами, в каждом...

81 987 000 ₽

598 000 ₽ за м²

Новинка
lot-6593
lot-6593
2
Просторное коммерческое помещение в 6 минутах от метро Кунцевская

Продажа | Лот 2223

Кунцевская 6 мин

Москва Багрицкого, 10с4

Ритейл в клубном доме Концепт House. Ритейл площадью 313 м² расположен на 1 этаже из 12, без отделки.

74 494 000 ₽

238 000 ₽ за м²

Новинка
lot-13838
lot-13838
lot-13838
3
Помещение под сувениры, 313 м²

Продажа | Лот 18036

Москва Мытищи, Юбилейная, 18

Площадь: 313 м²

Назначение: Торговое помещение под  магазин супермаркет бижутерия сувениры

Арендаторы: магнит

Доходность: 10%, 1 023 000 ₽/мес

Окупаемость: 11 лет

Готовый арендный бизнес в Мытищах. Жилой развивающийся район, обеспечен интенсивный автомобильный и пешеходный трафик. Окружение...

135 000 000 ₽

431 000 ₽ за м²

Новинка
lot-15312
lot-15312
lot-15312
lot-15312
lot-15312
5
Помещение под сувениры, 311 м²

Продажа | Лот 32813

Москва шоссе Энтузиастов, 55

Коммерческое помещение на первой линии шоссе Энтузиастов в районе Ивановское. Обеспечен интенсивный автомобильный и пешеходный...

77 750 000 ₽

250 000 ₽ за м²

Позвонить эксперту whatsapp telegram
Каширская
Академический
ЦАО
Академический