Арендный бизнес на 1-й Новокузьминской, 24 м², лот - 8458

Продажа | Лот 8458

Image 0
Image 1
Image 2
Image 3
4
Image 0 Image 1 Image 2 Image 3
37800000 RUB

37 800 000 ₽

1 575 000 ₽ за м²

МАП: 300 000 ₽
ГАП: 3 600 000 ₽
Окупаемость:
11 лет
Доходность:
10%
Метро:
Рязанский проспект :
pedestrian  2 минуты пешком
Адрес: 1-я Новокузьминская, 21с2
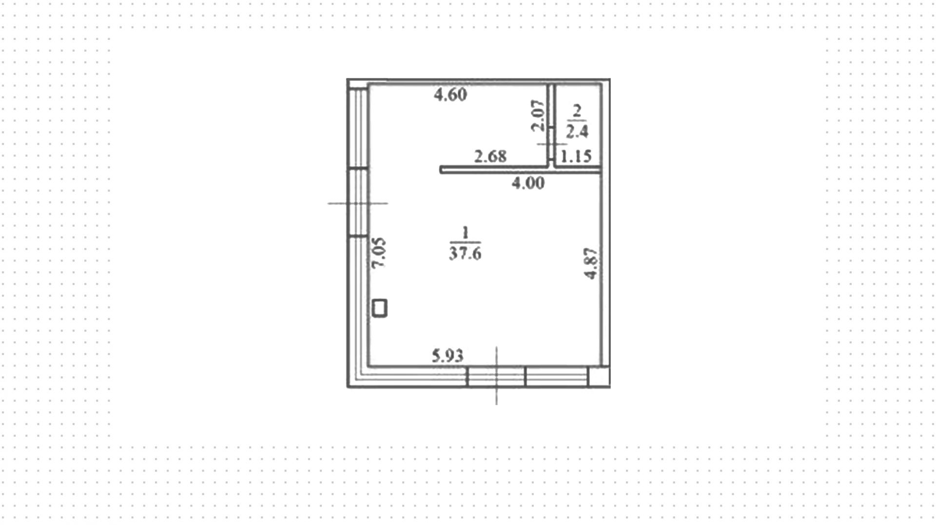
Площадь: 24 м²
Назначение: магазин бижутерия сувениры продуктовый магазин продукты
Высота потолков: 3.5 метра
Отделка: С отделкой
Парковка: перед фасадом
Линия: Первая
Тип входа: Отдельный с улицы
Витрины есть

Готовый арендный бизнес в Рязанском районе. Большой поток пешеходного и автомобильного трафика, рядом строится жилой комплекс «Первый Рязанский». Окружение — аптека «Ваша №1», ресторан «Зизифора», супермаркет «Пятёрочка», пекарня «Хлебница». За 2 минуты можно пешком дойти до станции метро «Рязанский проспект».

Объект с открытой планировкой площадью 24 м² расположен на 1 этаже во встроенно-пристроенном к жилому дому здании. Арендатор — магазин белорусских продуктов «ДАРЫ ВКУСА». В помещении проведены все центральные коммуникации. Отдельный вход с улицы, витринное остекление, на фасаде спланировано место для рекламы. Бесплатная парковка находится перед зданием.

37 800 000 ₽

1 575 000 ₽ за м²

МАП: 300 000 ₽
ГАП: 3 600 000 ₽
Окупаемость:
11 лет
Доходность:
10%
Метро:
Рязанский проспект :
pedestrian  2 минуты пешком
Адрес: 1-я Новокузьминская, 21с2
Площадь: 24 м²
Назначение: магазин бижутерия сувениры продуктовый магазин продукты
Высота потолков: 3.5 метра
Отделка: С отделкой
Парковка: перед фасадом
Линия: Первая
Тип входа: Отдельный с улицы
Витрины есть
expert

Алина

Брокер лота

Для уточнения и фиксирования цены можно связаться напрямую с брокером

+7 (495) 106-19-99

Расположение на карте

Назначения
Похожие лоты

Мы включили в наш каталог лучшие предложения по коммерческой недвижимости в Москве.

Новинка
lot-14959
lot-14959
lot-14959
lot-14959
lot-14959
5
Помещение под продукты, 40 м²

Продажа | Лот 10995

Теплый Стан 3 мин

Москва Профсоюзная, 152с1

Площадь: 40 м²

Назначение: Торговое помещение под  магазин пекарня кафе бижутерия сувениры

Доходность: 10%, 286 000 ₽/мес

Окупаемость: 11 лет

Готовый арендный бизнес на первой линии Профсоюзной улицы в Тёплом Стане. Жилой район, рядом идет реконструкция кинотеатра «Аврора»,...

37 800 000 ₽

945 000 ₽ за м²

Новинка
lot-12717
lot-12717
lot-12717
3
Помещение под продукты, 36 м²

Продажа | Лот 16244

Академическая 5 мин

Москва Дмитрия Ульянова, 10/1с1

Коммерческое помещение в Академическом районе. Объект располагается на 1 линии улицы Дмитрия Ульянова, что обеспечивает интенсивный...

37 800 000 ₽

1 050 000 ₽ за м²

Новинка
lot-14861
lot-14861
2
Помещение под продукты, 70 м²

Продажа | Лот 13220

Площадь Ильича 9 мин Римская 9 мин

Москва Золоторожский Вал, 11/1

Площадь: 70 м²

Назначение: Торговое помещение под  офис рабочее место

Офис в комплексе Stone Римская. Офис площадью 70 м² расположен на 12 этаже из 18, без отделки. Окна: панорамные, возможность естественного...

37 692 000 ₽

538 000 ₽ за м²

Новинка
lot-12626
lot-12626
lot-12626
lot-12626
lot-12626
5
Помещение под продукты, 24 м²

Продажа | Лот 8460

Рязанский проспект 2 мин

Москва 1-я Новокузьминская, 21с2

Площадь: 24 м²

Назначение: Торговое помещение под  магазин бижутерия сувениры

Доходность: 10%, 250 000 ₽/мес

Окупаемость: 10 лет

Готовый арендный бизнес в Рязанском районе. Большой поток пешеходного и автомобильного трафика, рядом строится жилой комплекс «Первый...

30 000 000 ₽

1 250 000 ₽ за м²

Новинка
lot-14636
lot-14636
lot-14636
lot-14636
4
Помещение под продукты, 24 м²

Продажа | Лот 8461

Рязанский проспект 2 мин

Москва 1-я Новокузьминская, 21с2

Площадь: 24 м²

Назначение: Торговое помещение под  магазин бижутерия сувениры

Доходность: 10%, 250 000 ₽/мес

Окупаемость: 10 лет

Готовый арендный бизнес в Рязанском районе. Большой поток пешеходного и автомобильного трафика, рядом строится жилой комплекс «Первый...

30 000 000 ₽

1 250 000 ₽ за м²

Новинка
lot-6740
lot-6740
lot-6740
lot-6740
lot-6740
5
Помещение под продукты, 24 м²

Продажа | Лот 8515

Рязанский проспект 2 мин

Москва 1-я Новокузьминская, 21с2

Коммерческое помещение в Рязанском районе. Большой поток пешеходного и автомобильного трафика, рядом строится жилой комплекс «Первый...

30 000 000 ₽

1 250 000 ₽ за м²

Позвонить эксперту whatsapp telegram
Каширская
Академический
ЦАО
Академический