Арендный бизнес на Большой Косинской, 3136 м², лот - 4428

Продажа | Лот 4428

Image 0
Image 1
2
Image 0 Image 1
500000000 RUB

500 000 000 ₽

159 000 ₽ за м²

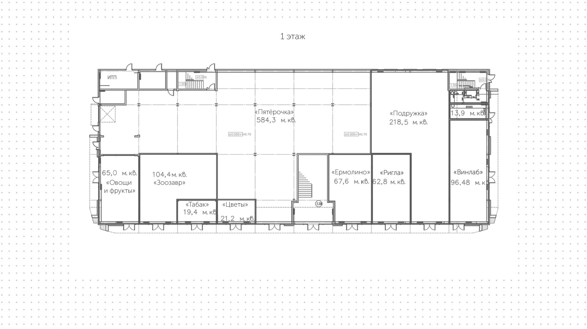
Арендаторы: пункт выдачи Wildberries, супермаркет «Пятерочка», магазины «Мясо», «Хлеб», «Пиво», «Табак», «Смешные цены», аптека
МАП: 4 000 000 ₽
ГАП: 48 000 000 ₽
Окупаемость:
11 лет
Доходность:
10%
Адрес: Большая Косинская, 18Г
Площадь: 3136 м²
Назначение: супермаркет магазин свободное бижутерия бизнес сувениры пункт выдачи
Высота потолков: 3 метра
Отделка: С отделкой
Парковка: перед фасадом
Электрическая мощность (кВт): 500
Линия: Первая

Готовый арендный бизнес на 1-й линии Большой Косинской улицы в районе Косино-Ухтомский. Остановка общественного транспорта обеспечивает интенсивный пешеходный трафик вдоль помещения. Окружение — пункты выдачи «СДЭК», «Яндекс Маркет», автосервис «АвтоКомплекс», шиномонтаж Kolesonsk, супермаркет «Чижик». Выезд на Московский скоростной диаметр осуществляется по прямой дороге через Проектируемый проезд.

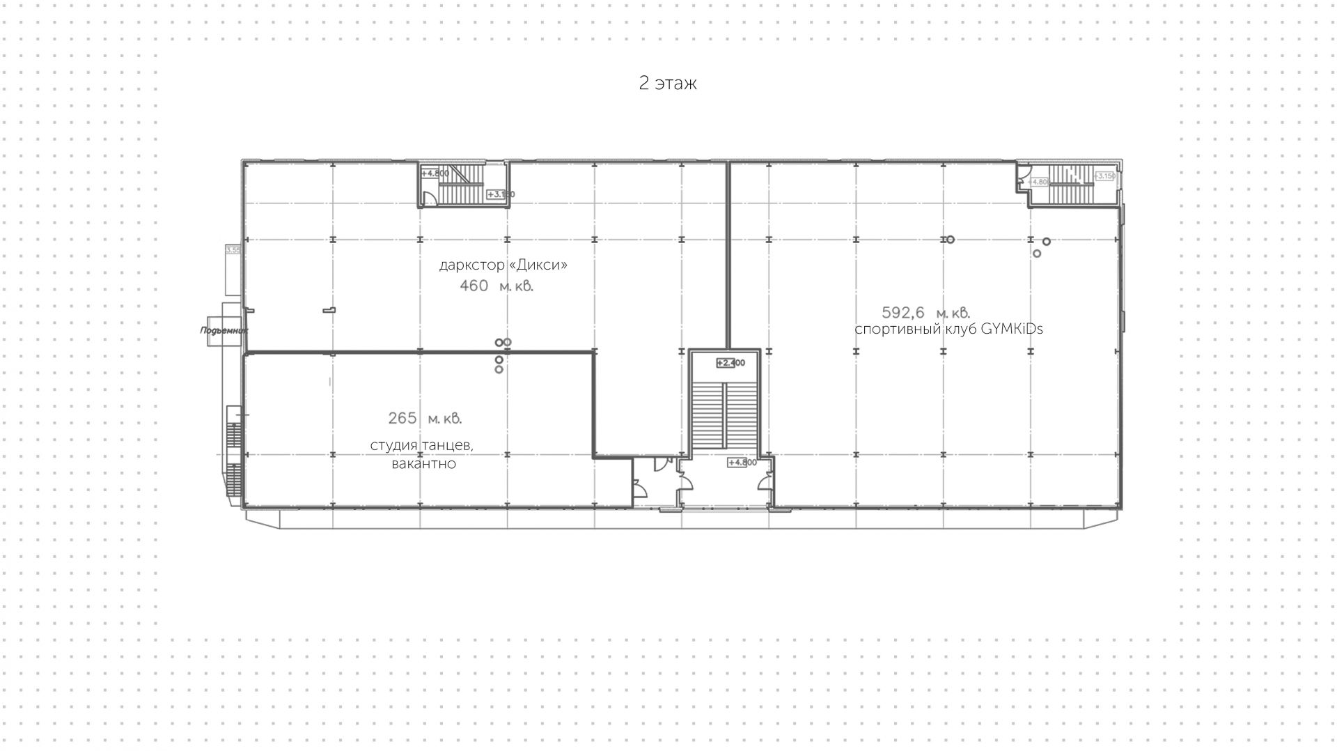
Объект состоит из 4-х нежилых зданий с открытой планировкой площадью 3 136 м². Строение №5 площадью 365 м² занимает пункт выдачи Wildberries. Строение №10 площадью 2 031 м² на 1-м этаже занимают супермаркет «Пятерочка», магазины «Мясо», «Хлеб», «Пиво», «Табак», «Смешные цены», аптека, 2-й этаж вакантен. Строение №3 площадью 369 м² и строение №4 площадью 371 м² не сданы. Бесплатная парковка находится перед зданием.

500 000 000 ₽

159 000 ₽ за м²

Арендаторы: пункт выдачи Wildberries, супермаркет «Пятерочка», магазины «Мясо», «Хлеб», «Пиво», «Табак», «Смешные цены», аптека
МАП: 4 000 000 ₽
ГАП: 48 000 000 ₽
Окупаемость:
11 лет
Доходность:
10%
Адрес: Большая Косинская, 18Г
Площадь: 3136 м²
Назначение: супермаркет магазин свободное бижутерия бизнес сувениры пункт выдачи
Высота потолков: 3 метра
Отделка: С отделкой
Парковка: перед фасадом
Электрическая мощность (кВт): 500
Линия: Первая
expert

Александр

Руководитель проекта

Для уточнения и фиксирования цены можно связаться напрямую с брокером

+7 (495) 106-19-99

Расположение на карте

Похожие лоты

Мы включили в наш каталог лучшие предложения по коммерческой недвижимости в Москве.

Новинка
lot-14456
lot-14456
lot-14456
lot-14456
lot-14456
lot-14456
lot-14456
lot-14456
lot-14456
lot-14456
10
Помещение под пункт выдачи, 1039 м²

Продажа | Лот 10091

Перово 1 мин

Москва Зелёный проспект, 19

Площадь: 1 039 м²

Назначение: Торговое помещение под  магазин банк пекарня кафе фаст-фуд бижутерия сувениры

Двухэтажное здание с цоколем на 1-й линии Зелёного проспекта в Перово. Жилой район, большой поток пешеходного и автомобильного трафика,...

500 000 000 ₽

481 000 ₽ за м²

Новинка
lot-16089
lot-16089
lot-16089
lot-16089
lot-16089
lot-16089
lot-16089
7
Помещение под пункт выдачи, 3206 м²

Продажа | Лот 47317

Каховская 10 мин Нахимовский проспект 4 мин

Москва Симферопольский бульвар, 4

Площадь: 3 206 м²

Назначение: Торговое помещение под  магазин пекарня салон красоты супермаркет аптека пункт выдачи продуктовый магазин бижутерия парикмахерская продукты сувениры

Арендаторы: дикси, фикс прайс, аптека, ермолино, вайлдберрис, пекарня, компьютерный клуб и т.д.

Доходность: 16%, 5 952 000 ₽/мес

Окупаемость: 7 лет

Торговый центр «ГринХаус» на 1 линии Симферопольского бульвара в Зюзино. Обеспечен интенсивный автомобильный и пешеходный трафик....

500 000 000 ₽

156 000 ₽ за м²

Новинка
lot-15415
lot-15415
2
Помещение под пункт выдачи, 1237 м²

Продажа | Лот 12078

Воронцовская 2 мин Калужская 6 мин

Москва Старокалужское шоссе, 64/1

Площадь: 1 237 м²

Назначение: Торговое помещение под  офис рабочее место

Офис в комплексе Stone Калужская. Офис площадью 1264 м² расположен на 13 этаже из 23, без отделки. Окна: панорамные, возможность естественного...

499 869 000 ₽

404 000 ₽ за м²

Новинка
lot-11838
lot-11838
lot-11838
lot-11838
lot-11838
lot-11838
lot-11838
7
Помещение под пункт выдачи, 3175 м²

Продажа | Лот 14456

Красные ворота 8 мин Сухаревская 7 мин

Москва Садовая-Спасская, 3с3

Здание на 1-й линии Садовой-Спасской улицы в Красносельском районе. Остановка общественного транспорта обеспечивает интенсивный трафик...

800 000 000 ₽

252 000 ₽ за м²

Новинка
lot-16089
lot-16089
lot-16089
lot-16089
lot-16089
lot-16089
lot-16089
7
Помещение под пункт выдачи, 3206 м²

Продажа | Лот 47317

Каховская 10 мин Нахимовский проспект 4 мин

Москва Симферопольский бульвар, 4

Площадь: 3 206 м²

Назначение: Торговое помещение под  магазин пекарня салон красоты супермаркет аптека пункт выдачи продуктовый магазин бижутерия парикмахерская продукты сувениры

Арендаторы: дикси, фикс прайс, аптека, ермолино, вайлдберрис, пекарня, компьютерный клуб и т.д.

Доходность: 16%, 5 952 000 ₽/мес

Окупаемость: 7 лет

Торговый центр «ГринХаус» на 1 линии Симферопольского бульвара в Зюзино. Обеспечен интенсивный автомобильный и пешеходный трафик....

500 000 000 ₽

156 000 ₽ за м²

Новинка
lot-12777
lot-12777
2
Помещение под пункт выдачи, 3135 м²

Продажа | Лот 16336

Терехово 7 мин

Москва Нижние Мнёвники, 39/41

Площадь: 3 135 м²

Назначение: Торговое помещение под  офис рабочее место

Офис в комплексе STONE Мневники. Офис площадью 3145 м² расположен на 10 этаже из 12, без отделки. Предусмотрена терраса. Окна: панорамные....

1 730 891 000 ₽

552 000 ₽ за м²

Позвонить эксперту whatsapp telegram
Каширская
Академический
ЦАО
Академический