Арендный бизнес в Сапроново, 163 м², лот - 49593

Продажа | Лот 49593

Image 0
Image 1
Image 2
3
Image 0 Image 1 Image 2
88200000 RUB

88 200 000 ₽

541 000 ₽ за м²

Арендаторы: МиМи ресторан
МАП: 700 000 ₽
ГАП: 8 400 000 ₽
Окупаемость:
11 лет
Доходность:
10%
Адрес: деревня Сапроново, Калиновая, 1с1
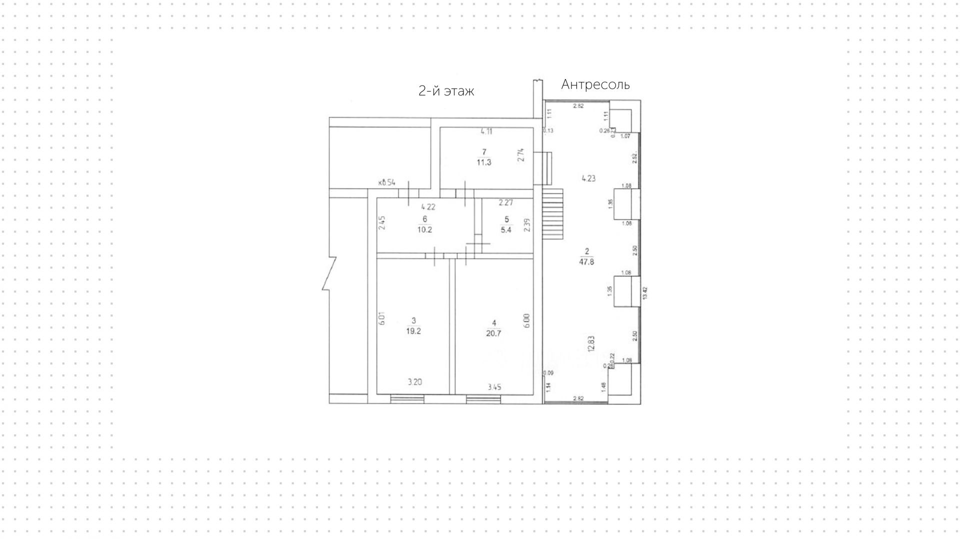
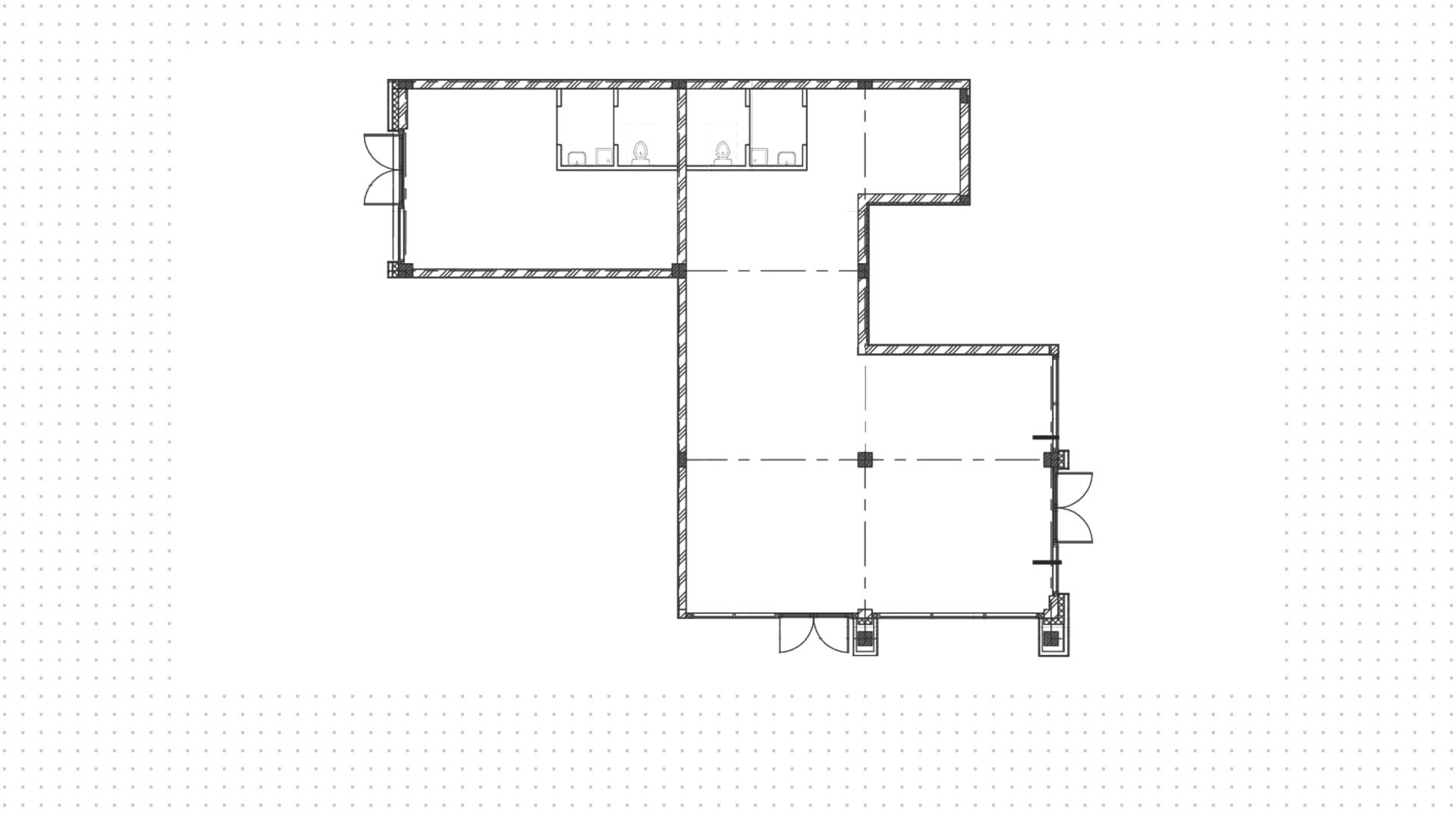
Площадь: 163 м²
Назначение: ресторан
Высота потолков: 5.2 метров
Отделка: С отделкой
Парковка: наземная многоуровневая парковка и гостевая парковка у здания на 38 мест
Зона разгрузки: Есть
Линия: Первая
Тип входа: Отдельный с улицы
Витрины есть

Готовый арендный бизнес на первой линии улицы Калиновая в деревне Сапроново. Разивающийся район, строятся жилые комплексы «Видный Берег», «1-й Донской». Выезд на Южно-Лыткаринскую автодорогу и остановка общественного транспорта возле объекта обеспечивает интенсивный автомобильный и пешеходный трафик. Окружение — супермаркет «Перекрёсток», пункт выдачи OZON, аптека «Горздрав», «Газпромбанк».

Угловое помещение площадью 163 м² расположено на первом этаже в здании многоуровневой парковки в жилом комплексе «Первый квартал». Арендатор — ресторан «МиМи». Объект оснащен инженерными коммуникациями, организована вытяжка с выходом на кровлю. Три отдельных входа с улицы с зоной разгрузки, витринное остекление. Спланированы места для летней веранды и рекламы на фасаде. Возле здания предусмотрена гостевая парковка на 38 мест.

88 200 000 ₽

541 000 ₽ за м²

Арендаторы: МиМи ресторан
МАП: 700 000 ₽
ГАП: 8 400 000 ₽
Окупаемость:
11 лет
Доходность:
10%
Адрес: деревня Сапроново, Калиновая, 1с1
Площадь: 163 м²
Назначение: ресторан
Высота потолков: 5.2 метров
Отделка: С отделкой
Парковка: наземная многоуровневая парковка и гостевая парковка у здания на 38 мест
Зона разгрузки: Есть
Линия: Первая
Тип входа: Отдельный с улицы
Витрины есть
expert

Артём

Эксперт

Для уточнения и фиксирования цены можно связаться напрямую с брокером

+7 (495) 106-19-99

Расположение на карте

Назначения
Похожие лоты

Мы включили в наш каталог лучшие предложения по коммерческой недвижимости в Москве.

Новинка
lot-16075
lot-16075
2
Помещение под ресторан, 233 м²

Продажа | Лот 47367

Москва Академика Челомея, 7

Площадь: 233 м²

88 571 000 ₽

380 000 ₽ за м²

Новинка
lot-14692
lot-14692
lot-14692
lot-14692
4
Помещение под ресторан, 115 м²

Продажа | Лот 5687

Сходненская 6 мин

Москва Химкинский бульвар, 13

Площадь: 115 м²

Назначение: Торговое помещение под  магазин алко-маркет бижутерия сувениры

Арендаторы: алкомаркет «Ароматный мир»

Доходность: 8%, 618 000 ₽/мес

Окупаемость: 12 лет

Готовый арендный бизнес на 1-й линии Химкинского бульвара в районе Южное Тушино. Большой поток пешеходного и автомобильного трафика....

89 000 000 ₽

774 000 ₽ за м²

Новинка
lot-16078
lot-16078
2
Помещение под ресторан, 230 м²

Продажа | Лот 47373

Москва Академика Челомея, 7

Площадь: 230 м²

88 046 000 ₽

383 000 ₽ за м²

Новинка
lot-16446
lot-16446
lot-16446
lot-16446
lot-16446
lot-16446
6
Помещение под ресторан, 163 м²

Аренда | Лот 16306

Кутузовская 10 мин Студенческая 10 мин

Москва Кутузовский проспект, 24

Коммерческое помещение в Дорогомилово. Объект располагается на первой линии Кутузовского проспекта, что обеспечивает интенсивный...

1 200 000 ₽ / месяц

88 000 ₽ за м² / год

Новинка
lot-11932
lot-11932
lot-11932
lot-11932
lot-11932
lot-11932
lot-11932
7
Помещение под ресторан, 163 м²

Продажа | Лот 14909

Москва Кулакова, 9с1

Площадь: 163 м²

Назначение: Торговое помещение под  магазин бижутерия сувениры

Арендаторы: Самокат

Доходность: 13%, 708 000 ₽/мес

Окупаемость: 8 лет

Готовый арендный бизнес на 1-й линии улицы Кулакова в Строгино. Жилой район, в зоне охвата около 66 000 людей, рядом перекрёсток с интенсивным...

68 000 000 ₽

417 000 ₽ за м²

Новинка
lot-10619
lot-10619
lot-10619
lot-10619
4
Помещение под ресторан, 163 м²

Продажа | Лот 12691

Аэропорт 2 мин

Москва Ленинградский проспект, 47с2

Площадь: 163 м²

Назначение: Торговое помещение под  магазин бижутерия бижутерия сувениры сувениры алко-маркет

Доходность: 8%, 506 000 ₽/мес

Окупаемость: 13 лет

Готовый арендный бизнес на 1-й линии Ленинградского проспекта в Хорошёвском районе. Большой поток пешеходного и автомобильного трафика,...

79 000 000 ₽

485 000 ₽ за м²

Вы уже смотрели
Посмотреть все лоты
Позвонить эксперту max whatsapp telegram
Каширская
Академический
ЦАО
Академический