Помещение в Люберцах, 148 м², лот - 12894

Продажа | Лот 12894

Image 0
Image 1
Image 2
Image 3
Image 4
5
Image 0 Image 1 Image 2 Image 3 Image 4
550000 RUB

550 000 ₽ в месяц

45 000 ₽ за м² в год

Метро:
Косино :
pedestrian  9 минут пешком
Лермонтовский проспект :
pedestrian  5 минут пешком
Адрес: Люберцы, Октябрьский проспект, 1с1
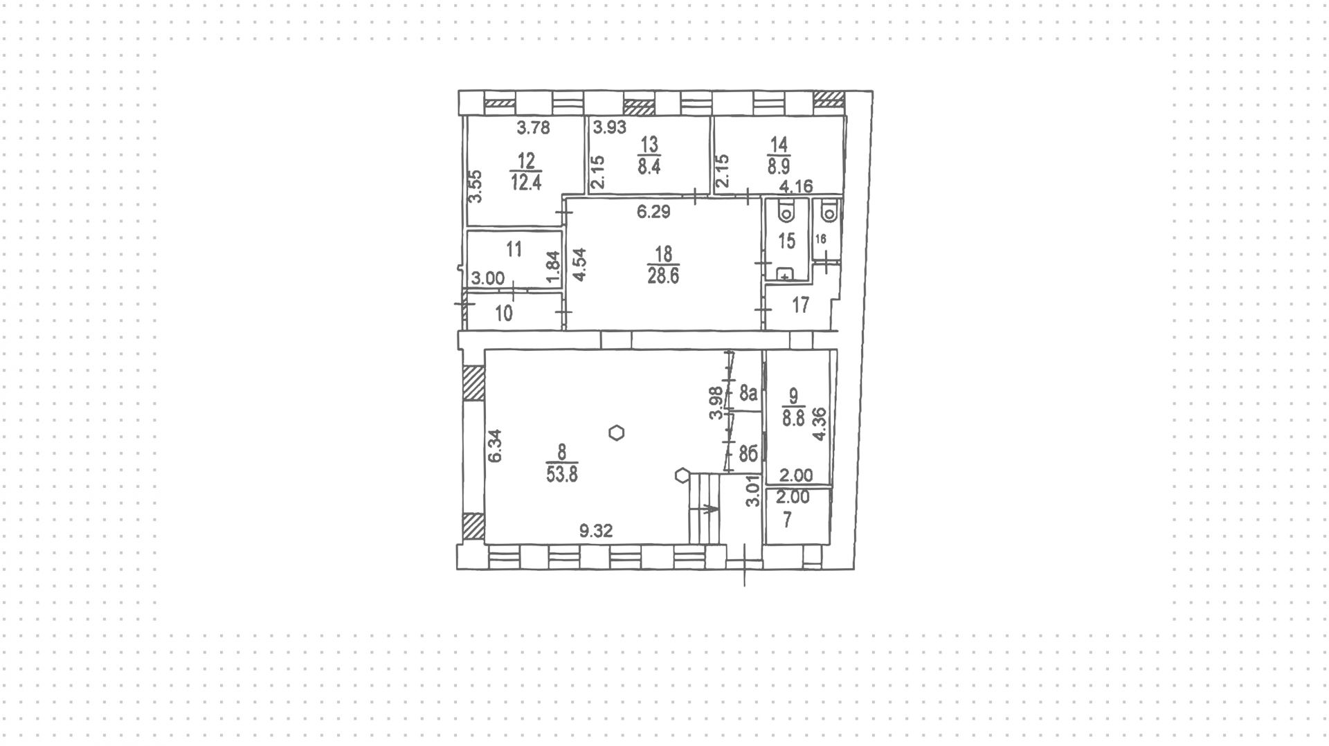
Площадь: 148 м²
Назначение: магазин свободное банк салон красоты супермаркет спортзал бижутерия бизнес парикмахерская сувениры
Высота потолков: 3.5 метра
Отделка: С отделкой
Парковка: бесплатная перед фасадом здания
Электрическая мощность (кВт): 10
Зона разгрузки: Есть
Линия: Первая
Тип входа: Отдельный со двора
Витрины есть

Коммерческое помещение на 1-й линии Октябрьского проспекта в Люберцах. Интенсивный поток пешеходного и автомобильного трафика. Окружение — супермаркет «Пятёрочка», аптека «Планета здоровья», алкомаркет «Красное&Белое». За 5 минут пешком можно дойти до станции метро «Лермонтовский проспект», за 9 минут — до станции метро «Косино».

Объект с открытой планировкой площадью 148 м² расположен на 1-м этаже в жилом доме. Помещение подойдет под размещение супермаркета, салона красоты, фитнес-клуба. Отдельные входы с улицы и со двора, витринное остекление. Предусмотрены зона разгрузки и место для рекламы на фасаде. Бесплатная парковка находится перед зданием.

550 000 ₽ в месяц

45 000 ₽ за м² в год

Метро:
Косино :
pedestrian  9 минут пешком
Лермонтовский проспект :
pedestrian  5 минут пешком
Адрес: Люберцы, Октябрьский проспект, 1с1
Площадь: 148 м²
Назначение: магазин свободное банк салон красоты супермаркет спортзал бижутерия бизнес парикмахерская сувениры
Высота потолков: 3.5 метра
Отделка: С отделкой
Парковка: бесплатная перед фасадом здания
Электрическая мощность (кВт): 10
Зона разгрузки: Есть
Линия: Первая
Тип входа: Отдельный со двора
Витрины есть
expert

Артём

Эксперт

Для уточнения и фиксирования цены можно связаться напрямую с брокером

+7 (495) 106-19-99

Расположение на карте

Похожие лоты

Мы включили в наш каталог лучшие предложения по коммерческой недвижимости в Москве.

Новинка
lot-10397
lot-10397
2
Помещение под сувениры, 32 м²

Продажа | Лот 11970

Москва поселение Сосенское

Площадь: 32 м²

10 210 000 ₽

319 000 ₽ за м²

Новинка
lot-11498
lot-11498
2
Помещение под сувениры, 38 м²

Продажа | Лот 11161

Москва Скотопрогонная, 31А

Площадь: 38 м²

12 573 000 ₽

331 000 ₽ за м²

Новинка
lot-11502
lot-11502
2
Помещение под сувениры, 39 м²

Продажа | Лот 11198

Москва Скотопрогонная, 31А

Площадь: 39 м²

13 002 000 ₽

333 000 ₽ за м²

Новинка
lot-14003
lot-14003
lot-14003
lot-14003
4
Помещение под сувениры, 148 м²

Продажа | Лот 18405

Москва деревня Юрлово, 2/2

Площадь: 148 м²

Назначение: Торговое помещение под  спортзал

Доходность: 10%, 292 000 ₽/мес

Окупаемость: 10 лет

Готовый арендный бизнес в деревне Юрлово. Ритейл находится в жилом комплексе «Пятницкие Луга» на 20 000 жителей, в проекте спланированы...

35 000 000 ₽

236 000 ₽ за м²

Новинка
lot-14688
lot-14688
lot-14688
lot-14688
lot-14688
lot-14688
lot-14688
7
Помещение под сувениры, 148 м²

Продажа | Лот 30657

Водный стадион 10 мин

Москва Конаковский проезд, 4с2

Площадь: 148 м²

Назначение: Торговое помещение под  магазин пункт выдачи бижутерия сувениры

Арендаторы: мульти пвз wildberries, ozon, яндекс

Доходность: 9%, 278 000 ₽/мес

Окупаемость: 12 лет

Готовый арендный бизнес в Конаковском проезде в Головинском районе. Близость школы и детского сада обеспечивает большой пешеходный...

40 000 000 ₽

270 000 ₽ за м²

Новинка
lot-11749
lot-11749
lot-11749
lot-11749
lot-11749
lot-11749
lot-11749
7
Помещение под сувениры, 147 м²

Продажа | Лот 14382

Смоленская 2 мин

Москва Новинский бульвар, 1/2

Площадь: 147 м²

Назначение: Торговое помещение под  магазин салон красоты бижутерия парикмахерская сувениры

Арендаторы: Фабрикат

Доходность: 7%, 744 000 ₽/мес

Окупаемость: 14 лет

Готовый арендный бизнес на 1-й линии Новинского бульвара в районе Арбат. Благодаря близости к бизнес-центру Lotte Plaza вдоль помещения...

125 000 000 ₽

850 000 ₽ за м²

Позвонить эксперту whatsapp telegram
Каширская
Академический
ЦАО
Академический