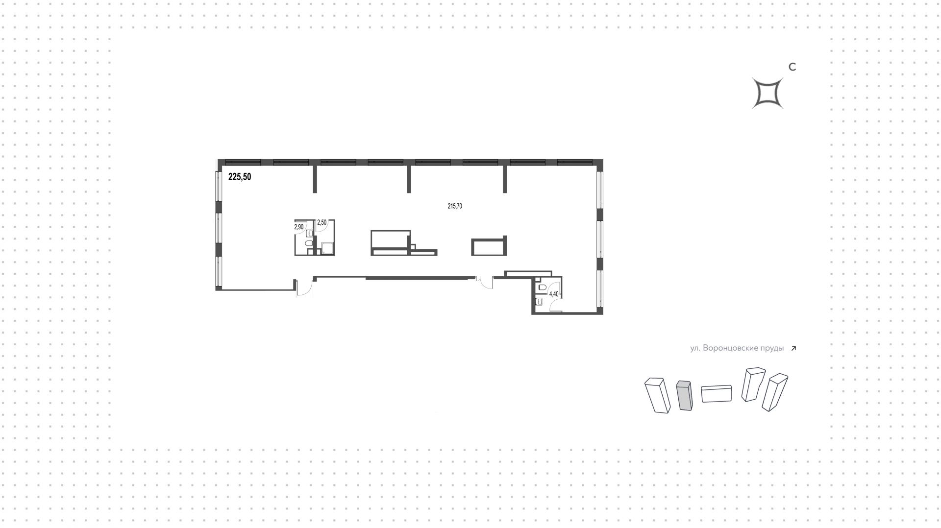
Помещение в БЦ AFI Park Воронцовский, 209 м², лот - 15099

Продажа | «AFI Park Воронцовский» | Лот 15099

Image 0
Image 1
2
Image 0 Image 1
76758728 RUB

76 759 000 ₽

367 000 ₽ за м²

Метро:
Калужская :
pedestrian  14 минут пешком ,
auto  5 минут на машине
Район/округ: Обручевский / ЮЗАО
Адрес: Академика Челомея, 7
Площадь: 209 м²
Тип здания: Жилой комплекс
Назначение: офис рабочее место
Высота потолков: 3.32 метра
Отделка: Без отделки
Парковка: подземный одноуровневый паркинг на 629 мест
Тип входа: Общий с улицы

Офис в комплексе AFI Park Воронцовский. Офис площадью 209 м² расположен на 9 этаже из 25, без отделки. Окна: Alutech, алюминий, центральная секция открывается полностью, у французских балконов выступ 50 см.

76 759 000 ₽

367 000 ₽ за м²

Метро:
Калужская :
pedestrian  14 минут пешком ,
auto  5 минут на машине
Район/округ: Обручевский / ЮЗАО
Адрес: Академика Челомея, 7
Площадь: 209 м²
Тип здания: Жилой комплекс
Назначение: офис рабочее место
Высота потолков: 3.32 метра
Отделка: Без отделки
Парковка: подземный одноуровневый паркинг на 629 мест
Тип входа: Общий с улицы
expert

Руслан

Эксперт проекта

Для уточнения и фиксирования цены можно связаться напрямую с брокером

+7 (495) 106-19-99

Расположение на карте

Назначения
Похожие лоты

Мы включили в наш каталог лучшие предложения по коммерческой недвижимости в Москве.

Новинка
lot-11865
lot-11865
2
Помещение под рабочее место, 226 м²

Продажа | Лот 14620

Калужская 14 мин

Москва Академика Челомея, 7

Площадь: 226 м²

Назначение: Торговое помещение под  магазин свободное бижутерия бизнес сувениры

Офис в комплексе AFI Park Воронцовский. Офис площадью 226 м² расположен на 14 этаже из 25, без отделки. Окна: Alutech, алюминий, центральная секция...

82 644 000 ₽

366 000 ₽ за м²

Новинка
lot-12074
lot-12074
2
Помещение под рабочее место, 487 м²

Продажа | Лот 15101

Калужская 14 мин

Москва Академика Челомея, 7

Площадь: 487 м²

Назначение: Торговое помещение под  офис рабочее место

Офис в комплексе AFI Park Воронцовский. Офис площадью 487 м² расположен на 17 этаже из 25, без отделки. Окна: Alutech, алюминий, центральная секция...

194 239 000 ₽

399 000 ₽ за м²

Новинка
lot-12070
lot-12070
2
Помещение под рабочее место, 158 м²

Продажа | Лот 15097

Калужская 14 мин

Москва Академика Челомея, 7

Площадь: 158 м²

Назначение: Торговое помещение под  офис рабочее место

Офис в комплексе AFI Park Воронцовский. Офис площадью 158 м² расположен на 6 этаже из 25, без отделки. Окна: Alutech, алюминий, центральная секция...

60 062 000 ₽

380 000 ₽ за м²

Новинка
lot-11865
lot-11865
2
Помещение под рабочее место, 226 м²

Продажа | Лот 14620

Калужская 14 мин

Москва Академика Челомея, 7

Площадь: 226 м²

Назначение: Торговое помещение под  магазин свободное бижутерия бизнес сувениры

Офис в комплексе AFI Park Воронцовский. Офис площадью 226 м² расположен на 14 этаже из 25, без отделки. Окна: Alutech, алюминий, центральная секция...

82 644 000 ₽

366 000 ₽ за м²

Новинка
lot-12074
lot-12074
2
Помещение под рабочее место, 487 м²

Продажа | Лот 15101

Калужская 14 мин

Москва Академика Челомея, 7

Площадь: 487 м²

Назначение: Торговое помещение под  офис рабочее место

Офис в комплексе AFI Park Воронцовский. Офис площадью 487 м² расположен на 17 этаже из 25, без отделки. Окна: Alutech, алюминий, центральная секция...

194 239 000 ₽

399 000 ₽ за м²

Новинка
lot-12070
lot-12070
2
Помещение под рабочее место, 158 м²

Продажа | Лот 15097

Калужская 14 мин

Москва Академика Челомея, 7

Площадь: 158 м²

Назначение: Торговое помещение под  офис рабочее место

Офис в комплексе AFI Park Воронцовский. Офис площадью 158 м² расположен на 6 этаже из 25, без отделки. Окна: Alutech, алюминий, центральная секция...

60 062 000 ₽

380 000 ₽ за м²

Позвонить эксперту whatsapp telegram
Каширская
Академический
ЦАО
Академический