Помещение на Мясницкой, 160 м², лот - 52334

Продажа | Лот 52334

Image 0
Image 1
Image 2
Image 3
Image 4
Image 5
6
Image 0 Image 1 Image 2 Image 3 Image 4 Image 5
900000 RUB

900 000 ₽ в месяц

68 000 ₽ за м² в год

Метро:
Лубянка :
pedestrian  8 минут пешком
Сретенский бульвар :
pedestrian  6 минут пешком
Тургеневская :
pedestrian  6 минут пешком
Чистые пруды :
pedestrian  6 минут пешком
Район/округ: Красносельский / ЦАО
Адрес: Мясницкая, 13с20
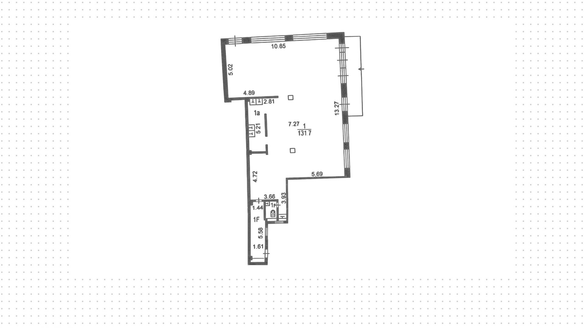
Площадь: 160 м²
Назначение: ресторан магазин свободное супермаркет шоурум спортзал кафе бижутерия бизнес сувениры
Высота потолков: 3.5 метра
Отделка: С отделкой
Парковка: перед фасадом
Зона разгрузки: Есть
Тип входа: Отдельный с улицы
Витрины есть

Коммерческое угловое помещение в Красносельском районе. Вдоль Мясницкой улицы обеспечен интенсивный пешеходный трафик. Окружение — кофейня YCP, пекарня «Зое», фотостудия UU, салон красоты Collective и шоурумы. В 6 минутах ходьбы находятся три станции метро — «Тургеневская», «Сретенский бульвар» и «Чистые пруды», в 8 минутах — «Лубянка».

Объект с открытой планировкой площадью 160 м² расположен на первом этаже в нежилом здании. В помещении выполнена отделка за выездом ресторана «Чихо», проведены все центральные коммуникации, установлена вытяжка. Два отдельных входа с улицы с зоной разгрузки, витринное остекление. Можно организовать летнюю веранду на 4-6 посадочных мест, на фасаде спланировано место для рекламы. Возле здания находится парковка.

900 000 ₽ в месяц

68 000 ₽ за м² в год

Метро:
Лубянка :
pedestrian  8 минут пешком
Сретенский бульвар :
pedestrian  6 минут пешком
Тургеневская :
pedestrian  6 минут пешком
Чистые пруды :
pedestrian  6 минут пешком
Район/округ: Красносельский / ЦАО
Адрес: Мясницкая, 13с20
Площадь: 160 м²
Назначение: ресторан магазин свободное супермаркет шоурум спортзал кафе бижутерия бизнес сувениры
Высота потолков: 3.5 метра
Отделка: С отделкой
Парковка: перед фасадом
Зона разгрузки: Есть
Тип входа: Отдельный с улицы
Витрины есть
expert

Елена

Эксперт проекта

Для уточнения и фиксирования цены можно связаться напрямую с брокером

+7 (495) 106-19-99

Расположение на карте

Похожие лоты

Мы включили в наш каталог лучшие предложения по коммерческой недвижимости в Москве.

Новинка
lot-10397
lot-10397
2
Помещение под сувениры, 32 м²

Продажа | Лот 11970

Москва поселение Сосенское

Площадь: 32 м²

10 210 000 ₽

319 000 ₽ за м²

Новинка
lot-11498
lot-11498
2
Помещение под сувениры, 38 м²

Продажа | Лот 11161

Москва Скотопрогонная, 31А

Площадь: 38 м²

12 573 000 ₽

331 000 ₽ за м²

Новинка
lot-11502
lot-11502
2
Помещение под сувениры, 39 м²

Продажа | Лот 11198

Москва Скотопрогонная, 31А

Площадь: 39 м²

13 002 000 ₽

333 000 ₽ за м²

Новинка
lot-13851
lot-13851
lot-13851
lot-13851
lot-13851
lot-13851
lot-13851
lot-13851
lot-13851
lot-13851
lot-13851
lot-13851
12
Помещение под сувениры, 160 м²

Аренда | Лот 10361

Москва Новомихайловское шоссе, 1с5

Коммерческое помещение на 1-й линии домов в Коммунарке. Развивающийся район, рядом детский сад, строится жилой комплекс «1-й Ясеневский»....

321 000 ₽ / месяц

24 000 ₽ за м² / год

Новинка
lot-16925
lot-16925
lot-16925
lot-16925
lot-16925
lot-16925
lot-16925
lot-16925
lot-16925
9
Помещение под сувениры, 160 м²

Аренда | Лот 53895

Москва Вадковский переулок, 24/35с1

Коммерческое помещение на первой линии Вадковского переулка в Тверском районе. Близость остановки общественного транспорта обеспечивает...

600 000 ₽ / месяц

45 000 ₽ за м² / год

Позвонить эксперту max whatsapp telegram
Каширская
Академический
ЦАО
Академический